|
|
|
| Larry Stein Oklahoma County Assessor (405) 713-1200 - Public Access System |
|
|
|
|
|
|
| Real Property Display - Screen Produced 3/13/2026 12:43:13 AM | ||||
|---|---|---|---|---|
| Account: R074531455 | Type: Residential | Location: |
2125 SW 65TH ST |
|
| Building Name/Occupant: |
|
OKLAHOMA CITY |
||
| Owner Name 1: | FIREFLY INVESTMENTS LLC |
Parcel PIN#: |
1717-07-453-1455 |
|
| Owner Name 2: | 1/4 section #: |
1717 |
||
| Owner Name 3: | Parent Acct: |
|
||
| Billing Address: | 2805 SW 91ST ST | Tax District: |
|
|
| City, State, Zip | OKLAHOMA CITY, OK 73159 | School System: |
Oklahoma City #89 |
|
|
Country: (If noted) |
Land Size: |
0.1804 Acres |
||
|
Land Value: 23,973 |
|
|||
|
Sect 30-T11N-R3W Qtr NE |
HILLCREST HEIGHTS 5TH ADD
Block
015
Lot
014
|
|||
| Full Legal Description: HILLCREST HEIGHTS 5TH ADD 015 014 |
| Photo & Sketch (if available) | Comp Sales (ordered by relevancy) |
|
||||||||||||||||||
|
||||||||||||||||||||
| Value History (*The County Treasurer 405-713-1300 posts & collects actual tax amounts. Contact information HERE) | |||||||||||||
|---|---|---|---|---|---|---|---|---|---|---|---|---|---|
| Year | Market Value | Taxable Mkt Value | Gross Assessed | Exemption | Net Assessed | Millage | Est. Tax | Tax Savings | |||||
|
2025 |
132,500 |
96,356 |
10,598 |
0 |
10,598 |
119.02 |
$1,262 |
$473 |
|||||
|
2024 |
122,000 |
91,768 |
10,093 |
0 |
10,093 |
119.70 |
$1,208 |
$398 |
|||||
|
2023 |
112,000 |
87,399 |
9,613 |
0 |
9,613 |
118.33 |
$1,138 |
$320 |
|||||
|
2022 |
95,500 |
83,238 |
9,156 |
0 |
9,156 |
112.69 |
$1,032 |
$152 |
|||||
|
2021 |
83,500 |
79,275 |
8,720 |
0 |
8,720 |
112.29 |
$979 |
$52 |
|||||
| Property Account Status/Adjustments/Exemptions | ||
|---|---|---|
| Account # | Exemption Description | Amount |
|
R074531455 |
5% Capped Account |
0 |
| Property Deed Transaction History (Recorded in the County Clerk's Office) | ||||||||||
|---|---|---|---|---|---|---|---|---|---|---|
| Date | Type | Book | Page | Price | Grantor | Grantee | ||||
|
1/14/2020 |
|
Hmstd Off & |
$0 |
BUIE DONALD E |
FIREFLY INVESTMENTS LLC |
|||||
|
7/16/2011 |
|
Deeds |
$0 |
BUIE DONALD & ESTHER L |
BUIE DONALD E |
|||||
|
5/26/1999 |
|
Deeds |
$49,500 |
SMIRCICH ELIZABETH J TRS |
BUIE DONALD & ESTHER L |
|||||
|
10/25/1996 |
|
Historical |
$0 |
SMIRCICH ELIZABETH J |
SMIRCICH ELIZABETH J TRS |
|||||
|
9/3/1996 |
|
Historical |
$0 |
SMIRCICH ELIZABETH J |
SMIRCICH ELIZABETH J |
|||||
| Last Mailed Notice of Value (N.O.V.) Information/History | ||||||||
|---|---|---|---|---|---|---|---|---|
| Year | Date | Market Value | Taxable Market Value | Gross Assessed | Exemption | Net Assessed | ||
|
2026 |
02/06/2026 |
134,500 |
101,173 |
11,128 |
0 |
11,128 |
||
|
2025 |
01/31/2025 |
132,500 |
96,356 |
10,598 |
0 |
10,598 |
||
|
2024 |
01/22/2024 |
122,000 |
91,768 |
10,093 |
0 |
10,093 |
||
|
2023 |
01/23/2023 |
112,000 |
87,399 |
9,613 |
0 |
9,613 |
||
|
2022 |
02/22/2022 |
95,500 |
83,238 |
9,156 |
0 |
9,156 |
||
| Property Building Permit History | |||||||||||
|---|---|---|---|---|---|---|---|---|---|---|---|
| Issued | Permit # | Provided by | Bldg # | Description | Est Construction Cost | Status | |||||
| No Building Permit records returned. | |||||||||||
| Click button on building number to access detailed information: | ||||||
|---|---|---|---|---|---|---|
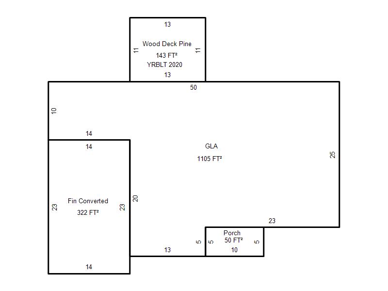
| Bldg # | Vacant/Improved Land | Bldg Description | Year Built | SqFt | # Stories | |
|
1 |
Improved |
Ranch 1 Story |
1954 |
1,105 |
1 Stories |
|