|
|
|
| Larry Stein Oklahoma County Assessor (405) 713-1200 - Public Access System |
|
|
|
|
|
|
| Real Property Display - Screen Produced 3/13/2026 12:43:14 AM | ||||
|---|---|---|---|---|
| Account: R074531575 | Type: Residential | Location: |
2120 SW 65TH ST |
|
| Building Name/Occupant: |
|
OKLAHOMA CITY |
||
| Owner Name 1: | GONZALEZ JOSE L LEONA |
Parcel PIN#: |
1717-07-453-1575 |
|
| Owner Name 2: | 1/4 section #: |
1717 |
||
| Owner Name 3: | Parent Acct: |
|
||
| Billing Address: | 2120 SW 65TH ST | Tax District: |
|
|
| City, State, Zip | OKLAHOMA CITY, OK 73159-2922 | School System: |
Oklahoma City #89 |
|
|
Country: (If noted) |
Land Size: |
0.1801 Acres |
||
|
Land Value: 23,933 |
|
|||
|
Sect 30-T11N-R3W Qtr NE |
HILLCREST HEIGHTS 5TH ADD
Block
018
Lot
006
|
|||
| Full Legal Description: HILLCREST HEIGHTS 5TH ADD 018 006 |
| Photo & Sketch (if available) | Comp Sales (ordered by relevancy) |
|
||||||||||||||||||
|
||||||||||||||||||||
| Value History (*The County Treasurer 405-713-1300 posts & collects actual tax amounts. Contact information HERE) | |||||||||||||
|---|---|---|---|---|---|---|---|---|---|---|---|---|---|
| Year | Market Value | Taxable Mkt Value | Gross Assessed | Exemption | Net Assessed | Millage | Est. Tax | Tax Savings | |||||
|
2025 |
122,500 |
95,081 |
10,458 |
0 |
10,458 |
119.02 |
$1,245 |
$359 |
|||||
|
2024 |
113,000 |
90,554 |
9,960 |
0 |
9,960 |
119.70 |
$1,192 |
$296 |
|||||
|
2023 |
103,500 |
86,242 |
9,485 |
0 |
9,485 |
118.33 |
$1,123 |
$225 |
|||||
|
2022 |
94,000 |
82,136 |
9,034 |
0 |
9,034 |
112.69 |
$1,018 |
$147 |
|||||
|
2021 |
82,500 |
78,225 |
8,604 |
0 |
8,604 |
112.29 |
$966 |
$53 |
|||||
| Property Account Status/Adjustments/Exemptions | ||
|---|---|---|
| Account # | Exemption Description | Amount |
|
R074531575 |
5% Capped Account |
0 |
| Property Deed Transaction History (Recorded in the County Clerk's Office) | |||||||
|---|---|---|---|---|---|---|---|
| Date | Type | Book | Page | Price | Grantor | Grantee | |
|
6/25/2010 |
|
Deeds |
$77,000 |
VARGAS LORENA MACHADO |
GONZALEZ JOSE L LEONA |
||
|
7/8/1998 |
|
Historical |
$47,000 |
TYLER ERIC L |
VARGAS LORENA MACHADO |
||
|
8/31/1994 |
|
Historical |
$37,500 |
DIXON ELIZABETH A |
TYLER ERIC L |
||
|
1/18/1990 |
|
Historical |
$0 |
DIXON THOMAS P & ELIZABETH A |
DIXON ELIZABETH A |
||
|
5/1/1982 |
|
Historical |
$0 |
|
DIXON THOMAS P & ELIZABETH A |
||
| Last Mailed Notice of Value (N.O.V.) Information/History | ||||||||
|---|---|---|---|---|---|---|---|---|
| Year | Date | Market Value | Taxable Market Value | Gross Assessed | Exemption | Net Assessed | ||
|
2026 |
02/06/2026 |
125,000 |
99,835 |
10,980 |
0 |
10,980 |
||
|
2025 |
01/31/2025 |
122,500 |
95,081 |
10,458 |
0 |
10,458 |
||
|
2024 |
01/22/2024 |
113,000 |
90,554 |
9,960 |
0 |
9,960 |
||
|
2023 |
01/23/2023 |
103,500 |
86,242 |
9,485 |
0 |
9,485 |
||
|
2022 |
02/22/2022 |
94,000 |
82,136 |
9,034 |
0 |
9,034 |
||
| Property Building Permit History | |||||||||||
|---|---|---|---|---|---|---|---|---|---|---|---|
| Issued | Permit # | Provided by | Bldg # | Description | Est Construction Cost | Status | |||||
| No Building Permit records returned. | |||||||||||
| Click button on building number to access detailed information: | ||||||
|---|---|---|---|---|---|---|
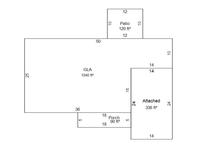
| Bldg # | Vacant/Improved Land | Bldg Description | Year Built | SqFt | # Stories | |
|
1 |
Improved |
Ranch 1 Story |
1954 |
1,040 |
1 Stories |
|