|
|
|
| Larry Stein Oklahoma County Assessor (405) 713-1200 - Public Access System |
|
|
|
|
|
|
| Real Property Display - Screen Produced 3/13/2026 12:50:43 AM | ||||
|---|---|---|---|---|
| Account: R074531715 | Type: Residential | Location: |
2105 SW 66TH ST |
|
| Building Name/Occupant: |
|
OKLAHOMA CITY |
||
| Owner Name 1: | HARCO INVESTMENTS LLC |
Parcel PIN#: |
1717-07-453-1715 |
|
| Owner Name 2: | 1/4 section #: |
1717 |
||
| Owner Name 3: | Parent Acct: |
|
||
| Billing Address: | 2836 SW 42ND ST | Tax District: |
|
|
| City, State, Zip | OKLAHOMA CITY, OK 73119-3329 | School System: |
Oklahoma City #89 |
|
|
Country: (If noted) |
Land Size: |
0.1832 Acres |
||
|
Land Value: 24,339 |
|
|||
|
Sect 30-T11N-R3W Qtr NE |
HILLCREST HEIGHTS 5TH ADD
Block
018
Lot
020
|
|||
| Full Legal Description: HILLCREST HEIGHTS 5TH ADD 018 020 |
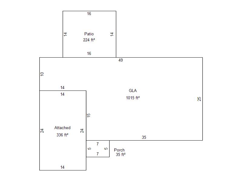
| Photo & Sketch (if available) | Comp Sales (ordered by relevancy) |
|
||||||||||||||||||
|
||||||||||||||||||||
| Value History (*The County Treasurer 405-713-1300 posts & collects actual tax amounts. Contact information HERE) | |||||||||||||
|---|---|---|---|---|---|---|---|---|---|---|---|---|---|
| Year | Market Value | Taxable Mkt Value | Gross Assessed | Exemption | Net Assessed | Millage | Est. Tax | Tax Savings | |||||
|
2025 |
120,500 |
93,804 |
10,318 |
0 |
10,318 |
119.02 |
$1,228 |
$350 |
|||||
|
2024 |
111,500 |
89,338 |
9,826 |
0 |
9,826 |
119.70 |
$1,176 |
$292 |
|||||
|
2023 |
103,000 |
85,084 |
9,358 |
0 |
9,358 |
118.33 |
$1,107 |
$233 |
|||||
|
2022 |
92,500 |
81,033 |
8,913 |
0 |
8,913 |
112.69 |
$1,004 |
$142 |
|||||
|
2021 |
80,500 |
77,175 |
8,489 |
0 |
8,489 |
112.29 |
$953 |
$41 |
|||||
| Property Account Status/Adjustments/Exemptions | ||
|---|---|---|
| Account # | Exemption Description | Amount |
|
R074531715 |
5% Capped Account |
0 |
| Property Deed Transaction History (Recorded in the County Clerk's Office) | |||||||
|---|---|---|---|---|---|---|---|
| Date | Type | Book | Page | Price | Grantor | Grantee | |
|
8/6/1996 |
|
Historical |
$0 |
HICKS BETTY R |
HARCO INVESTMENTS LLC |
||
|
8/1/1996 |
|
Historical |
$0 |
HICKS BETTY R |
HICKS BETTY R |
||
|
6/12/1996 |
|
Historical |
$0 |
HICKS E L |
HICKS BETTY R |
||
|
11/11/1911 |
|
Historical |
$0 |
|
HICKS E L |
||
| Last Mailed Notice of Value (N.O.V.) Information/History | ||||||||
|---|---|---|---|---|---|---|---|---|
| Year | Date | Market Value | Taxable Market Value | Gross Assessed | Exemption | Net Assessed | ||
|
2026 |
02/06/2026 |
123,500 |
98,494 |
10,833 |
0 |
10,833 |
||
|
2025 |
01/31/2025 |
120,500 |
93,804 |
10,318 |
0 |
10,318 |
||
|
2024 |
01/22/2024 |
111,500 |
89,338 |
9,826 |
0 |
9,826 |
||
|
2023 |
01/23/2023 |
103,000 |
85,084 |
9,358 |
0 |
9,358 |
||
|
2022 |
02/22/2022 |
92,500 |
81,033 |
8,913 |
0 |
8,913 |
||
| Property Building Permit History | |||||||||||
|---|---|---|---|---|---|---|---|---|---|---|---|
| Issued | Permit # | Provided by | Bldg # | Description | Est Construction Cost | Status | |||||
| No Building Permit records returned. | |||||||||||
| Click button on building number to access detailed information: | ||||||
|---|---|---|---|---|---|---|
| Bldg # | Vacant/Improved Land | Bldg Description | Year Built | SqFt | # Stories | |
|
1 |
Improved |
Ranch 1 Story |
1954 |
1,015 |
1 Stories |
|