|
|
|
| Larry Stein Oklahoma County Assessor (405) 713-1200 - Public Access System |
|
|
|
|
|
|
| Real Property Display - Screen Produced 3/20/2026 5:50:01 AM | ||||
|---|---|---|---|---|
| Account: R113375050 | Type: Residential | Location: |
7112 S MILLER BLVD |
|
| Building Name/Occupant: |
|
OKLAHOMA CITY |
||
| Owner Name 1: | MORRIS DONALD GORDON |
Parcel PIN#: |
1719-11-337-5050 |
|
| Owner Name 2: | 1/4 section #: |
1719 |
||
| Owner Name 3: | Parent Acct: |
|
||
| Billing Address: | 7112 S MILLER BLVD | Tax District: |
|
|
| City, State, Zip | OKLAHOMA CITY, OK 73159-2626 | School System: |
Oklahoma City #89 |
|
|
Country: (If noted) |
Land Size: |
0.1768 Acres |
||
|
Land Value: 25,028 |
|
|||
|
Sect 30-T11N-R3W Qtr SW |
HILLCREST HEIGHTS ADD
Block
074
Lot
016
|
|||
| Full Legal Description: HILLCREST HEIGHTS ADD 074 016 |
| Photo & Sketch (if available) | Comp Sales (ordered by relevancy) |
|
||||||||||||||||||
|
||||||||||||||||||||
| Value History (*The County Treasurer 405-713-1300 posts & collects actual tax amounts. Contact information HERE) | |||||||||||||
|---|---|---|---|---|---|---|---|---|---|---|---|---|---|
| Year | Market Value | Taxable Mkt Value | Gross Assessed | Exemption | Net Assessed | Millage | Est. Tax | Tax Savings | |||||
|
2025 |
153,500 |
108,481 |
11,932 |
0 |
11,932 |
119.02 |
$1,420 |
$589 |
|||||
|
2024 |
145,500 |
103,316 |
11,364 |
0 |
11,364 |
119.70 |
$1,360 |
$555 |
|||||
|
2023 |
127,500 |
98,397 |
10,823 |
0 |
10,823 |
118.33 |
$1,281 |
$379 |
|||||
|
2022 |
115,000 |
93,712 |
10,307 |
0 |
10,307 |
112.69 |
$1,162 |
$264 |
|||||
|
2021 |
96,000 |
89,250 |
9,817 |
0 |
9,817 |
112.29 |
$1,102 |
$83 |
|||||
| Property Account Status/Adjustments/Exemptions | ||
|---|---|---|
| Account # | Exemption Description | Amount |
|
R113375050 |
5% Capped Account |
0 |
| Property Deed Transaction History (Recorded in the County Clerk's Office) | ||||||||||
|---|---|---|---|---|---|---|---|---|---|---|
| Date | Type | Book | Page | Price | Grantor | Grantee | ||||
|
5/21/2004 |
|
Deeds |
$83,500 |
PLUMLEE ROBERT F II & BRANDI D |
MORRIS DONALD GORDON |
|||||
|
10/9/2003 |
|
Deeds |
$0 |
PLUMLEE ROBERT FRANK II |
PLUMLEE ROBERT F II & BRANDI D |
|||||
|
11/24/1999 |
|
Deeds |
$59,500 |
SAUER RICHARD W & LAURIE L |
PLUMLEE ROBERT FRANK II |
|||||
|
1/3/1996 |
|
Historical |
$0 |
SAUER RICHARD W & LAURIE L |
SAUER RICHARD W & LAURIE L |
|||||
|
12/4/1995 |
|
Historical |
$45,500 |
ZIEGENHORN CLIFTON T III |
SAUER RICHARD W & LAURIE L |
|||||
| Last Mailed Notice of Value (N.O.V.) Information/History | ||||||||
|---|---|---|---|---|---|---|---|---|
| Year | Date | Market Value | Taxable Market Value | Gross Assessed | Exemption | Net Assessed | ||
|
2026 |
02/06/2026 |
150,000 |
113,905 |
12,528 |
0 |
12,528 |
||
|
2025 |
01/31/2025 |
153,500 |
108,481 |
11,932 |
0 |
11,932 |
||
|
2024 |
01/22/2024 |
145,500 |
103,316 |
11,364 |
0 |
11,364 |
||
|
2023 |
01/23/2023 |
127,500 |
98,397 |
10,823 |
0 |
10,823 |
||
|
2022 |
02/22/2022 |
115,000 |
93,712 |
10,307 |
0 |
10,307 |
||
| Property Building Permit History | |||||||||||
|---|---|---|---|---|---|---|---|---|---|---|---|
| Issued | Permit # | Provided by | Bldg # | Description | Est Construction Cost | Status | |||||
| No Building Permit records returned. | |||||||||||
| Click button on building number to access detailed information: | ||||||
|---|---|---|---|---|---|---|
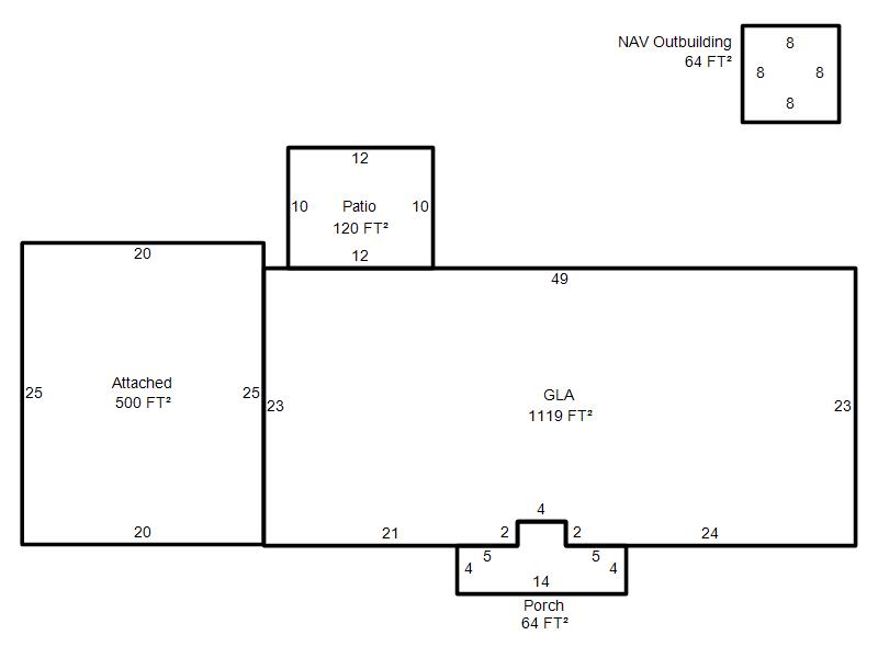
| Bldg # | Vacant/Improved Land | Bldg Description | Year Built | SqFt | # Stories | |
|
1 |
Improved |
Ranch 1 Story |
1964 |
1,119 |
1 Stories |
|