|
|
|
| Larry Stein Oklahoma County Assessor (405) 713-1200 - Public Access System |
|
|
|
|
|
|
| Real Property Display - Screen Produced 3/20/2026 5:45:20 AM | ||||
|---|---|---|---|---|
| Account: R113371105 | Type: Residential | Location: |
2741 SW 60TH PL |
|
| Building Name/Occupant: |
|
OKLAHOMA CITY |
||
| Owner Name 1: | HERNANDEZ FIDEL A |
Parcel PIN#: |
1720-11-337-1105 |
|
| Owner Name 2: | GONZALEZ BEATRIZ A | 1/4 section #: |
1720 |
|
| Owner Name 3: | Parent Acct: |
|
||
| Billing Address: | 2741 SW 60TH PL | Tax District: |
|
|
| City, State, Zip | OKLAHOMA CITY, OK 73159-1601 | School System: |
Oklahoma City #89 |
|
|
Country: (If noted) |
Land Size: |
0.1460 Acres |
||
|
Land Value: 19,080 |
|
|||
|
Sect 30-T11N-R3W Qtr NW |
HILLCREST HEIGHTS ADD
Block
055
Lot
011
|
|||
| Full Legal Description: HILLCREST HEIGHTS ADD 055 011 |
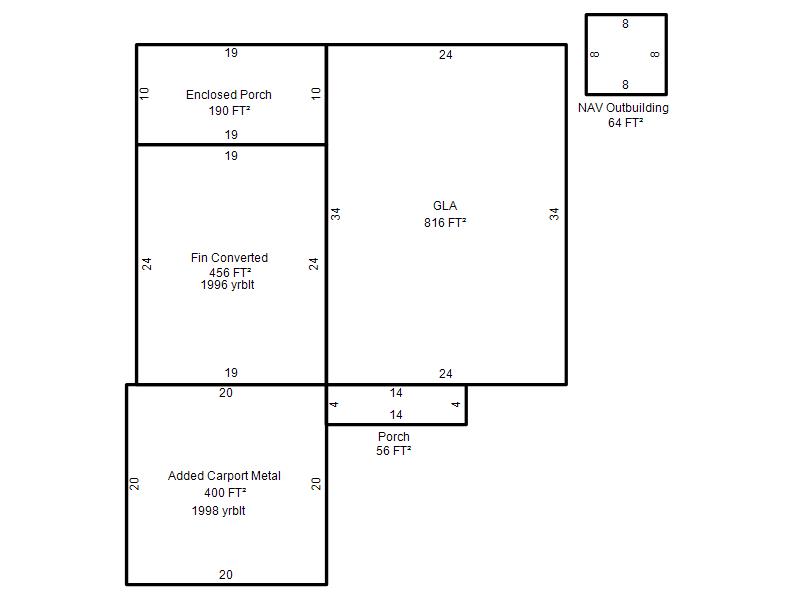
| Photo & Sketch (if available) | Comp Sales (ordered by relevancy) |
|
||||||||||||||||||
|
||||||||||||||||||||
| Value History (*The County Treasurer 405-713-1300 posts & collects actual tax amounts. Contact information HERE) | |||||||||||||
|---|---|---|---|---|---|---|---|---|---|---|---|---|---|
| Year | Market Value | Taxable Mkt Value | Gross Assessed | Exemption | Net Assessed | Millage | Est. Tax | Tax Savings | |||||
|
2025 |
127,500 |
53,669 |
5,902 |
1,000 |
4,902 |
119.02 |
$584 |
$1,086 |
|||||
|
2024 |
117,500 |
52,106 |
5,730 |
1,000 |
4,730 |
119.70 |
$566 |
$981 |
|||||
|
2023 |
103,500 |
50,589 |
5,564 |
1,000 |
4,564 |
118.33 |
$540 |
$807 |
|||||
|
2022 |
49,116 |
49,116 |
5,402 |
1,000 |
4,402 |
112.69 |
$496 |
$113 |
|||||
|
2021 |
49,116 |
49,116 |
5,402 |
1,000 |
4,402 |
112.29 |
$494 |
$112 |
|||||
| Property Account Status/Adjustments/Exemptions | ||
|---|---|---|
| Account # | Exemption Description | Amount |
|
R113371105 |
3% Cap Homestead |
0 |
|
R113371105 |
Homestead |
1,000 |
| Property Deed Transaction History (Recorded in the County Clerk's Office) | ||||||||||
|---|---|---|---|---|---|---|---|---|---|---|
| Date | Type | Book | Page | Price | Grantor | Grantee | ||||
|
11/25/2014 |
|
Deeds |
$49,000 |
BBH RENTALS LLC |
HERNANDEZ FIDEL A |
|||||
|
10/19/2012 |
|
Other |
$0 |
HUTCHESON BONNIE L TRS HUTCHESON BONNIE LIVING TRUST |
BBH RENTALS LLC |
|||||
|
4/15/1998 |
|
Historical |
$24,000 |
VILLA LINDA KAY |
HUTCHESON BONNIE L TRS |
|||||
|
7/29/1993 |
|
Historical |
$0 |
VILLA LINDA |
VILLA LINDA KAY |
|||||
|
3/30/1987 |
|
Historical |
$0 |
VILLA FRANK A JR & LINDA |
VILLA LINDA |
|||||
| Last Mailed Notice of Value (N.O.V.) Information/History | ||||||||
|---|---|---|---|---|---|---|---|---|
| Year | Date | Market Value | Taxable Market Value | Gross Assessed | Exemption | Net Assessed | ||
|
2026 |
02/06/2026 |
119,500 |
55,279 |
6,080 |
1,000 |
5,080 |
||
|
2025 |
01/31/2025 |
127,500 |
53,669 |
5,902 |
1,000 |
4,902 |
||
|
2024 |
01/22/2024 |
117,500 |
52,106 |
5,730 |
1,000 |
4,730 |
||
|
2023 |
01/23/2023 |
103,500 |
50,589 |
5,564 |
1,000 |
4,564 |
||
|
2013 |
03/01/2013 |
64,891 |
64,891 |
7,137 |
0 |
7,137 |
||
| Property Building Permit History | |||||||||||
|---|---|---|---|---|---|---|---|---|---|---|---|
| Issued | Permit # | Provided by | Bldg # | Description | Est Construction Cost | Status | |||||
| No Building Permit records returned. | |||||||||||
| Click button on building number to access detailed information: | ||||||
|---|---|---|---|---|---|---|
| Bldg # | Vacant/Improved Land | Bldg Description | Year Built | SqFt | # Stories | |
|
1 |
Improved |
Ranch 1 Story |
1958 |
816 |
1 Stories |
|