|
|
|
| Larry Stein Oklahoma County Assessor (405) 713-1200 - Public Access System |
|
|
|
|
|
|
| Real Property Display - Screen Produced 3/20/2026 6:03:03 AM | ||||
|---|---|---|---|---|
| Account: R113371825 | Type: Residential | Location: |
2741 SW 61ST ST |
|
| Building Name/Occupant: |
|
OKLAHOMA CITY |
||
| Owner Name 1: | TORRES GABRIEL VELARDE |
Parcel PIN#: |
1720-11-337-1825 |
|
| Owner Name 2: | SOSA MARIA FELIX BARRAZA | 1/4 section #: |
1720 |
|
| Owner Name 3: | Parent Acct: |
|
||
| Billing Address: | 2741 SW 61ST ST | Tax District: |
|
|
| City, State, Zip | OKLAHOMA CITY, OK 73159-1612 | School System: |
Oklahoma City #89 |
|
|
Country: (If noted) |
Land Size: |
0.1488 Acres |
||
|
Land Value: 19,440 |
|
|||
|
Sect 30-T11N-R3W Qtr NW |
HILLCREST HEIGHTS ADD
Block
057
Lot
037
|
|||
| Full Legal Description: HILLCREST HEIGHTS ADD 057 037 |
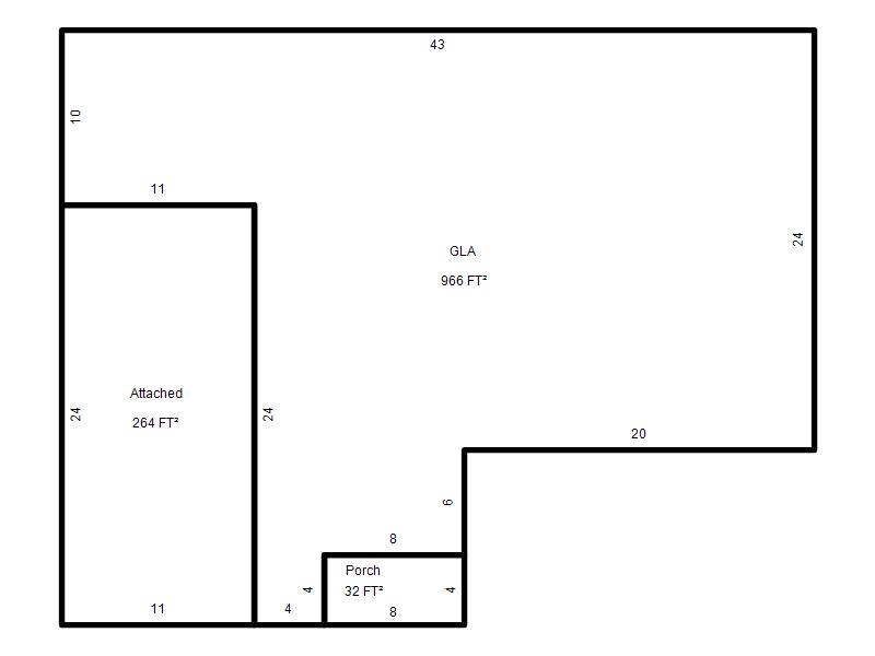
| Photo & Sketch (if available) | Comp Sales (ordered by relevancy) |
|
||||||||||||||||||
|
||||||||||||||||||||
| Value History (*The County Treasurer 405-713-1300 posts & collects actual tax amounts. Contact information HERE) | |||||||||||||
|---|---|---|---|---|---|---|---|---|---|---|---|---|---|
| Year | Market Value | Taxable Mkt Value | Gross Assessed | Exemption | Net Assessed | Millage | Est. Tax | Tax Savings | |||||
|
2025 |
165,000 |
99,115 |
10,902 |
1,000 |
9,902 |
119.02 |
$1,179 |
$982 |
|||||
|
2024 |
155,000 |
96,229 |
10,584 |
1,000 |
9,584 |
119.70 |
$1,147 |
$894 |
|||||
|
2023 |
132,000 |
93,427 |
10,276 |
1,000 |
9,276 |
118.33 |
$1,098 |
$620 |
|||||
|
2022 |
119,000 |
90,706 |
9,977 |
1,000 |
8,977 |
112.69 |
$1,012 |
$463 |
|||||
|
2021 |
100,000 |
88,065 |
9,687 |
1,000 |
8,687 |
112.29 |
$975 |
$260 |
|||||
| Property Account Status/Adjustments/Exemptions | ||
|---|---|---|
| Account # | Exemption Description | Amount |
|
R113371825 |
3% Cap Homestead |
0 |
|
R113371825 |
Homestead |
1,000 |
| Property Deed Transaction History (Recorded in the County Clerk's Office) | |||||||
|---|---|---|---|---|---|---|---|
| Date | Type | Book | Page | Price | Grantor | Grantee | |
|
9/30/2016 |
|
Deeds |
$87,000 |
MAZEL BRUCHER LTD |
TORRES GABRIEL VELARDE |
||
|
2/11/2016 |
|
Hmstd Off & |
$0 |
ROZIN LEONARD W TRS ROZIN LEONARD W REV TRUST |
MAZEL BRUCHER LTD |
||
|
5/12/2004 |
|
Deeds |
$0 |
ROZIN LEONARD & ZELDA S |
ROZIN LEONARD TRS ROZIN LEONARD W REV TRUST |
||
|
7/1/1986 |
|
Historical |
$36,000 |
CAWYER TERRY |
ROZIN LEONARD W & ZELDA S |
||
|
10/1/1979 |
|
Historical |
$0 |
|
CAWYER TERRY |
||
| Last Mailed Notice of Value (N.O.V.) Information/History | ||||||||
|---|---|---|---|---|---|---|---|---|
| Year | Date | Market Value | Taxable Market Value | Gross Assessed | Exemption | Net Assessed | ||
|
2026 |
02/06/2026 |
160,000 |
102,088 |
11,229 |
1,000 |
10,229 |
||
|
2025 |
01/31/2025 |
165,000 |
99,115 |
10,902 |
1,000 |
9,902 |
||
|
2024 |
01/22/2024 |
155,000 |
96,229 |
10,584 |
1,000 |
9,584 |
||
|
2023 |
01/23/2023 |
132,000 |
93,427 |
10,276 |
1,000 |
9,276 |
||
|
2022 |
02/22/2022 |
119,000 |
90,706 |
9,977 |
1,000 |
8,977 |
||
| Property Building Permit History | |||||||||||
|---|---|---|---|---|---|---|---|---|---|---|---|
| Issued | Permit # | Provided by | Bldg # | Description | Est Construction Cost | Status | |||||
| No Building Permit records returned. | |||||||||||
| Click button on building number to access detailed information: | ||||||
|---|---|---|---|---|---|---|
| Bldg # | Vacant/Improved Land | Bldg Description | Year Built | SqFt | # Stories | |
|
1 |
Improved |
Ranch 1 Story |
1958 |
966 |
1 Stories |
|