|
|
|
| Larry Stein Oklahoma County Assessor (405) 713-1200 - Public Access System |
|
|
|
|
|
|
| Real Property Display - Screen Produced 3/16/2026 2:18:40 PM | ||||
|---|---|---|---|---|
| Account: R113401365 | Type: Residential | Location: |
2649 SW 60TH ST |
|
| Building Name/Occupant: |
|
OKLAHOMA CITY |
||
| Owner Name 1: | JOHN OLUSOLA S & MARIAM B CO TRS |
Parcel PIN#: |
1720-11-340-1365 |
|
| Owner Name 2: | JOHN OLUSOLA & MARIAM REV TRUST | 1/4 section #: |
1720 |
|
| Owner Name 3: | Parent Acct: |
|
||
| Billing Address: | 8508 DAMAN PL | Tax District: |
|
|
| City, State, Zip | OKLAHOMA CITY, OK 73159 | School System: |
Oklahoma City #89 |
|
|
Country: (If noted) |
Land Size: |
0.1880 Acres |
||
|
Land Value: 24,570 |
|
|||
|
Sect 30-T11N-R3W Qtr NW |
HILLCREST HEIGHTS 6TH ADD
Block
044
Lot
025
|
|||
| Full Legal Description: HILLCREST HEIGHTS 6TH ADD 044 025 |
| Photo & Sketch (if available) | Comp Sales (ordered by relevancy) |
|
||||||||||||||||||
|
||||||||||||||||||||
| Value History (*The County Treasurer 405-713-1300 posts & collects actual tax amounts. Contact information HERE) | |||||||||||||
|---|---|---|---|---|---|---|---|---|---|---|---|---|---|
| Year | Market Value | Taxable Mkt Value | Gross Assessed | Exemption | Net Assessed | Millage | Est. Tax | Tax Savings | |||||
|
2025 |
150,500 |
110,397 |
12,143 |
0 |
12,143 |
119.02 |
$1,445 |
$525 |
|||||
|
2024 |
139,500 |
105,140 |
11,564 |
0 |
11,564 |
119.70 |
$1,384 |
$452 |
|||||
|
2023 |
126,000 |
100,134 |
11,014 |
0 |
11,014 |
118.33 |
$1,303 |
$337 |
|||||
|
2022 |
114,000 |
95,366 |
10,489 |
0 |
10,489 |
112.69 |
$1,182 |
$231 |
|||||
|
2021 |
99,000 |
90,825 |
9,990 |
0 |
9,990 |
112.29 |
$1,122 |
$101 |
|||||
| Property Account Status/Adjustments/Exemptions | ||||||
|---|---|---|---|---|---|---|
| Account # | Exemption Description | Amount | ||||
| No adjustment/exemption records returned. | ||||||
| Property Deed Transaction History (Recorded in the County Clerk's Office) | ||||||||||
|---|---|---|---|---|---|---|---|---|---|---|
| Date | Type | Book | Page | Price | Grantor | Grantee | ||||
|
8/11/2022 |
|
Hmstd Off & |
$0 |
JOHN MARIAM B & OLUSOLA S |
JOHN OLUSOLA SUNDAY & MARIAM BOLANLE AJOKE CO TRS |
|||||
|
4/26/2011 |
|
Deeds |
$52,000 |
KELLY MICHAEL |
JOHN MARIAM B & OLUSOLA S |
|||||
|
2/17/2011 |
|
Deeds |
$0 |
KELLY JULIE MARIE KELLY MICHAEL SHEA |
KELLY MICHAEL |
|||||
|
4/25/2005 |
|
Deeds |
$0 |
KELLY JULIE MARIE |
KELLY JULIE & KELLY MICHAEL SHEA |
|||||
|
3/31/2005 |
|
Deeds |
$0 |
KELLY JULIA M |
KELLEY JULIE MARIE KELLY MICHAEL SHEA |
|||||
| Last Mailed Notice of Value (N.O.V.) Information/History | ||||||||
|---|---|---|---|---|---|---|---|---|
| Year | Date | Market Value | Taxable Market Value | Gross Assessed | Exemption | Net Assessed | ||
|
2026 |
02/06/2026 |
148,500 |
115,916 |
12,750 |
0 |
12,750 |
||
|
2025 |
01/31/2025 |
150,500 |
110,397 |
12,143 |
0 |
12,143 |
||
|
2024 |
01/22/2024 |
139,500 |
105,140 |
11,564 |
0 |
11,564 |
||
|
2023 |
01/23/2023 |
126,000 |
100,134 |
11,014 |
0 |
11,014 |
||
|
2022 |
02/22/2022 |
114,000 |
95,366 |
10,489 |
0 |
10,489 |
||
| Property Building Permit History | |||||||||||
|---|---|---|---|---|---|---|---|---|---|---|---|
| Issued | Permit # | Provided by | Bldg # | Description | Est Construction Cost | Status | |||||
| No Building Permit records returned. | |||||||||||
| Click button on building number to access detailed information: | ||||||
|---|---|---|---|---|---|---|
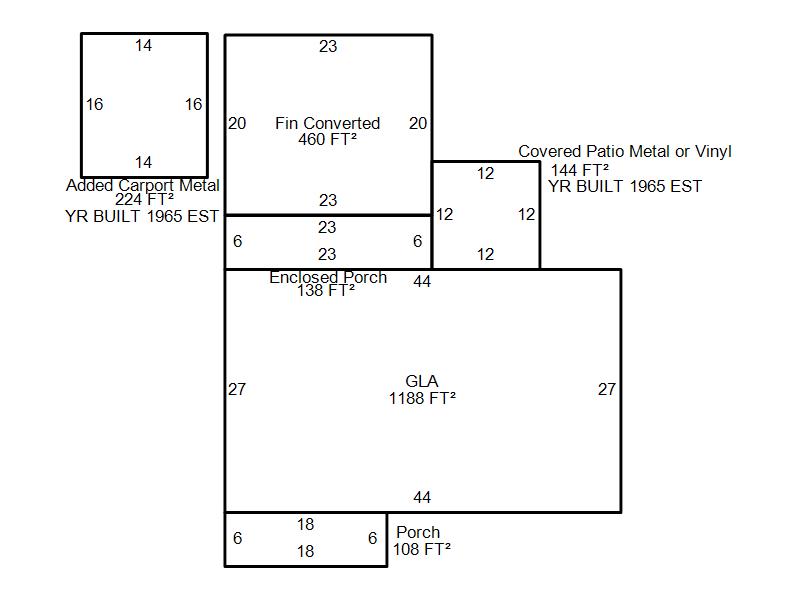
| Bldg # | Vacant/Improved Land | Bldg Description | Year Built | SqFt | # Stories | |
|
1 |
Improved |
Ranch 1 Story |
1955 |
1,188 |
1 Stories |
|