|
|
|
| Larry Stein Oklahoma County Assessor (405) 713-1200 - Public Access System |
|
|
|
|
|
|
| Real Property Display - Screen Produced 3/16/2026 2:18:41 PM | ||||
|---|---|---|---|---|
| Account: R113401915 | Type: Residential | Location: |
2608 SW 61ST ST |
|
| Building Name/Occupant: |
|
OKLAHOMA CITY |
||
| Owner Name 1: | WRIGHT TOMARA |
Parcel PIN#: |
1720-11-340-1915 |
|
| Owner Name 2: | 1/4 section #: |
1720 |
||
| Owner Name 3: | Parent Acct: |
|
||
| Billing Address: | 2608 SW 61ST ST | Tax District: |
|
|
| City, State, Zip | OKLAHOMA CITY, OK 73159-1706 | School System: |
Oklahoma City #89 |
|
|
Country: (If noted) |
Land Size: |
0.1985 Acres |
||
|
Land Value: 25,935 |
|
|||
|
Sect 30-T11N-R3W Qtr NW |
HILLCREST HEIGHTS 6TH ADD
Block
046
Lot
006
|
|||
| Full Legal Description: HILLCREST HEIGHTS 6TH ADD 046 006 |
| Photo & Sketch (if available) | Comp Sales (ordered by relevancy) |
|
||||||||||||||||||
|
||||||||||||||||||||
| Value History (*The County Treasurer 405-713-1300 posts & collects actual tax amounts. Contact information HERE) | |||||||||||||
|---|---|---|---|---|---|---|---|---|---|---|---|---|---|
| Year | Market Value | Taxable Mkt Value | Gross Assessed | Exemption | Net Assessed | Millage | Est. Tax | Tax Savings | |||||
|
2025 |
148,000 |
93,468 |
10,281 |
1,000 |
9,281 |
119.02 |
$1,105 |
$833 |
|||||
|
2024 |
138,000 |
90,746 |
9,981 |
1,000 |
8,981 |
119.70 |
$1,075 |
$742 |
|||||
|
2023 |
121,500 |
88,103 |
9,691 |
1,000 |
8,691 |
118.33 |
$1,028 |
$553 |
|||||
|
2022 |
109,000 |
85,537 |
9,409 |
1,000 |
8,409 |
112.69 |
$948 |
$404 |
|||||
|
2021 |
93,500 |
83,046 |
9,135 |
1,000 |
8,135 |
112.29 |
$913 |
$241 |
|||||
| Property Account Status/Adjustments/Exemptions | ||
|---|---|---|
| Account # | Exemption Description | Amount |
|
R113401915 |
3% Cap Homestead |
0 |
|
R113401915 |
Homestead |
1,000 |
| Property Deed Transaction History (Recorded in the County Clerk's Office) | ||||||||||
|---|---|---|---|---|---|---|---|---|---|---|
| Date | Type | Book | Page | Price | Grantor | Grantee | ||||
|
8/15/2017 |
|
Deeds |
$81,000 |
WILSON TERRY J |
WRIGHT TOMARA |
|||||
|
10/26/2000 |
|
Deeds |
$51,500 |
BRENNAN JEFFREY SCOTT |
WILSON TERRY J |
|||||
|
10/25/1996 |
|
Historical |
$46,000 |
OGLE RICHARD L & VONNA D |
BRENNAN JEFFREY SCOTT |
|||||
|
3/11/1992 |
|
Historical |
$0 |
OGLE MARTHA J |
OGLE RICHARD L & VONNA D |
|||||
|
8/12/1987 |
|
Historical |
$0 |
OGLE MACK L & MARTHA |
OGLE MARTHA J |
|||||
| Last Mailed Notice of Value (N.O.V.) Information/History | ||||||||
|---|---|---|---|---|---|---|---|---|
| Year | Date | Market Value | Taxable Market Value | Gross Assessed | Exemption | Net Assessed | ||
|
2026 |
02/06/2026 |
145,500 |
96,272 |
10,589 |
1,000 |
9,589 |
||
|
2025 |
01/31/2025 |
148,000 |
93,468 |
10,281 |
1,000 |
9,281 |
||
|
2024 |
01/22/2024 |
138,000 |
90,746 |
9,981 |
1,000 |
8,981 |
||
|
2023 |
01/23/2023 |
121,500 |
88,103 |
9,691 |
1,000 |
8,691 |
||
|
2022 |
02/22/2022 |
109,000 |
85,537 |
9,409 |
1,000 |
8,409 |
||
| Property Building Permit History | |||||||||||
|---|---|---|---|---|---|---|---|---|---|---|---|
| Issued | Permit # | Provided by | Bldg # | Description | Est Construction Cost | Status | |||||
| No Building Permit records returned. | |||||||||||
| Click button on building number to access detailed information: | ||||||
|---|---|---|---|---|---|---|
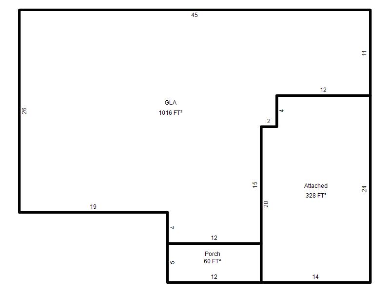
| Bldg # | Vacant/Improved Land | Bldg Description | Year Built | SqFt | # Stories | |
|
1 |
Improved |
Ranch 1 Story |
1955 |
1,016 |
1 Stories |
|