|
|
|
| Larry Stein Oklahoma County Assessor (405) 713-1200 - Public Access System |
|
|
|
|
|
|
| Real Property Display - Screen Produced 4/4/2026 2:02:10 PM | ||||
|---|---|---|---|---|
| Account: R048051295 | Type: Residential | Location: |
2133 SW 79TH ST |
|
| Building Name/Occupant: |
|
OKLAHOMA CITY |
||
| Owner Name 1: | WADDLE JUDITH M |
Parcel PIN#: |
1721-04-805-1295 |
|
| Owner Name 2: | 1/4 section #: |
1721 |
||
| Owner Name 3: | Parent Acct: |
|
||
| Billing Address: | 2133 SW 79TH ST | Tax District: |
|
|
| City, State, Zip | OKLAHOMA CITY, OK 73159-5135 | School System: |
Oklahoma City #89 |
|
|
Country: (If noted) |
Land Size: |
0.1761 Acres |
||
|
Land Value: 27,996 |
|
|||
|
Sect 31-T11N-R3W Qtr NE |
SOCHOR HILLCREST HTS 2ND
Block
005
Lot
042
|
|||
| Full Legal Description: SOCHOR HILLCREST HTS 2ND 005 042 |
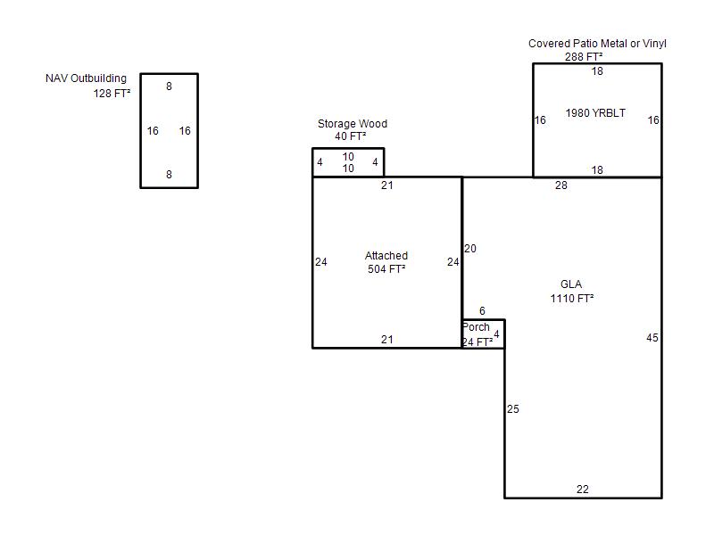
| Photo & Sketch (if available) | Comp Sales (ordered by relevancy) |
|
||||||||||||||||||
|
||||||||||||||||||||
| Value History (*The County Treasurer 405-713-1300 posts & collects actual tax amounts. Contact information HERE) | |||||||||||||
|---|---|---|---|---|---|---|---|---|---|---|---|---|---|
| Year | Market Value | Taxable Mkt Value | Gross Assessed | Exemption | Net Assessed | Millage | Est. Tax | Tax Savings | |||||
|
2026 |
147,000 |
76,543 |
8,419 |
1,000 |
7,419 |
119.02 |
$883 |
$1,041 |
|||||
|
2025 |
146,000 |
76,543 |
8,419 |
1,000 |
7,419 |
119.02 |
$883 |
$1,028 |
|||||
|
2024 |
139,500 |
76,543 |
8,419 |
1,000 |
7,419 |
119.70 |
$888 |
$949 |
|||||
|
2023 |
131,000 |
76,543 |
8,419 |
1,000 |
7,419 |
118.33 |
$878 |
$827 |
|||||
|
2022 |
117,000 |
76,543 |
8,419 |
1,000 |
7,419 |
112.69 |
$836 |
$614 |
|||||
| Property Account Status/Adjustments/Exemptions | ||
|---|---|---|
| Account # | Exemption Description | Amount |
|
R048051295 |
Freeze Senior Valuation |
0 |
|
R048051295 |
Homestead |
1,000 |
|
R048051295 |
3% Cap Homestead |
0 |
| Property Deed Transaction History (Recorded in the County Clerk's Office) | |||||||
|---|---|---|---|---|---|---|---|
| Date | Type | Book | Page | Price | Grantor | Grantee | |
|
3/31/2014 |
|
Deeds |
$0 |
WADDLE CARL W & JUDITH M |
WADDLE JUDITH M |
||
|
11/1/1975 |
|
Historical |
$0 |
|
WADDLE CARL W & JUDITH M |
||
| Last Mailed Notice of Value (N.O.V.) Information/History | ||||||||
|---|---|---|---|---|---|---|---|---|
| Year | Date | Market Value | Taxable Market Value | Gross Assessed | Exemption | Net Assessed | ||
|
2026 |
02/06/2026 |
147,000 |
76,543 |
8,419 |
1,000 |
7,419 |
||
|
2025 |
01/31/2025 |
146,000 |
76,543 |
8,419 |
1,000 |
7,419 |
||
|
2024 |
01/22/2024 |
139,500 |
76,543 |
8,419 |
1,000 |
7,419 |
||
|
2023 |
01/23/2023 |
131,000 |
76,543 |
8,419 |
1,000 |
7,419 |
||
|
2022 |
02/22/2022 |
117,000 |
76,543 |
8,419 |
1,000 |
7,419 |
||
| Property Building Permit History | |||||||||||
|---|---|---|---|---|---|---|---|---|---|---|---|
| Issued | Permit # | Provided by | Bldg # | Description | Est Construction Cost | Status | |||||
| No Building Permit records returned. | |||||||||||
| Click button on building number to access detailed information: | ||||||
|---|---|---|---|---|---|---|
| Bldg # | Vacant/Improved Land | Bldg Description | Year Built | SqFt | # Stories | |
|
1 |
Improved |
Ranch 1 Story |
1961 |
1,110 |
1 Stories |
|