|
|
|
| Larry Stein Oklahoma County Assessor (405) 713-1200 - Public Access System |
|
|
|
|
|
|
| Real Property Display - Screen Produced 3/20/2026 1:47:16 PM | ||||
|---|---|---|---|---|
| Account: R143211055 | Type: Residential | Location: |
8408 S YOUNGS BLVD |
|
| Building Name/Occupant: |
|
OKLAHOMA CITY |
||
| Owner Name 1: | MEDRANO FERNANDO JR |
Parcel PIN#: |
1722-14-321-1055 |
|
| Owner Name 2: | MEDRANO JOYCE C | 1/4 section #: |
1722 |
|
| Owner Name 3: | Parent Acct: |
|
||
| Billing Address: | 8408 S YOUNGS BLVD | Tax District: |
|
|
| City, State, Zip | OKLAHOMA CITY, OK 73159 | School System: |
Moore #2 |
|
|
Country: (If noted) |
Land Size: |
0.1653 Acres |
||
|
Land Value: 26,640 |
|
|||
|
Sect 31-T11N-R3W Qtr SE |
P B ODOM S PENN 2ND
Block
004
Lot
022
|
|||
| Full Legal Description: P B ODOM S PENN 2ND 004 022 |
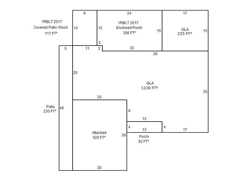
| Photo & Sketch (if available) | Comp Sales (ordered by relevancy) |
|
||||||||||||||||||
|
||||||||||||||||||||
| Value History (*The County Treasurer 405-713-1300 posts & collects actual tax amounts. Contact information HERE) | |||||||||||||
|---|---|---|---|---|---|---|---|---|---|---|---|---|---|
| Year | Market Value | Taxable Mkt Value | Gross Assessed | Exemption | Net Assessed | Millage | Est. Tax | Tax Savings | |||||
|
2025 |
228,500 |
202,153 |
22,236 |
1,000 |
21,236 |
120.83 |
$2,566 |
$471 |
|||||
|
2024 |
215,500 |
196,266 |
21,588 |
1,000 |
20,588 |
119.82 |
$2,467 |
$373 |
|||||
|
2023 |
195,000 |
190,550 |
20,960 |
1,000 |
19,960 |
119.00 |
$2,375 |
$177 |
|||||
|
2022 |
185,000 |
185,000 |
20,350 |
1,000 |
19,350 |
121.59 |
$2,353 |
$122 |
|||||
|
2021 |
128,000 |
116,905 |
12,859 |
1,000 |
11,859 |
120.72 |
$1,432 |
$268 |
|||||
| Property Account Status/Adjustments/Exemptions | ||
|---|---|---|
| Account # | Exemption Description | Amount |
|
R143211055 |
3% Cap Homestead |
0 |
|
R143211055 |
Homestead |
1,000 |
| Property Deed Transaction History (Recorded in the County Clerk's Office) | |||||||
|---|---|---|---|---|---|---|---|
| Date | Type | Book | Page | Price | Grantor | Grantee | |
|
10/13/2021 |
|
Deeds |
$187,000 |
WALDEN WILLIAM |
MEDRANO FERNANDO JR |
||
|
8/6/2009 |
|
Deeds |
$94,500 |
HUGHES JOHN B & NANCY |
WALDEN WILLIAM |
||
|
11/1/1984 |
|
Historical |
$0 |
|
HUGHES JOHN B & NANCY |
||
| Last Mailed Notice of Value (N.O.V.) Information/History | ||||||||
|---|---|---|---|---|---|---|---|---|
| Year | Date | Market Value | Taxable Market Value | Gross Assessed | Exemption | Net Assessed | ||
|
2026 |
02/06/2026 |
222,000 |
208,217 |
22,903 |
1,000 |
21,903 |
||
|
2025 |
01/31/2025 |
228,500 |
202,153 |
22,236 |
1,000 |
21,236 |
||
|
2024 |
01/22/2024 |
215,500 |
196,266 |
21,588 |
1,000 |
20,588 |
||
|
2023 |
01/23/2023 |
195,000 |
190,550 |
20,960 |
1,000 |
19,960 |
||
|
2022 |
02/22/2022 |
185,000 |
185,000 |
20,350 |
0 |
20,350 |
||
| Property Building Permit History | |||||||||||
|---|---|---|---|---|---|---|---|---|---|---|---|
| Issued | Permit # | Provided by | Bldg # | Description | Est Construction Cost | Status | |||||
| No Building Permit records returned. | |||||||||||
| Click button on building number to access detailed information: | ||||||
|---|---|---|---|---|---|---|
| Bldg # | Vacant/Improved Land | Bldg Description | Year Built | SqFt | # Stories | |
|
1 |
Improved |
Ranch 1 Story |
1963 |
1,485 |
1 Stories |
|