|
|
|
| Larry Stein Oklahoma County Assessor (405) 713-1200 - Public Access System |
|
|
|
|
|
|
| Real Property Display - Screen Produced 3/20/2026 1:47:16 PM | ||||
|---|---|---|---|---|
| Account: R143211075 | Type: Residential | Location: |
8500 S YOUNGS BLVD |
|
| Building Name/Occupant: |
|
OKLAHOMA CITY |
||
| Owner Name 1: | HOGAN BONITA J |
Parcel PIN#: |
1722-14-321-1075 |
|
| Owner Name 2: | 1/4 section #: |
1722 |
||
| Owner Name 3: | Parent Acct: |
|
||
| Billing Address: | 8500 S YOUNGS BLVD | Tax District: |
|
|
| City, State, Zip | OKLAHOMA CITY, OK 73159 | School System: |
Moore #2 |
|
|
Country: (If noted) |
Land Size: |
0.1653 Acres |
||
|
Land Value: 26,640 |
|
|||
|
Sect 31-T11N-R3W Qtr SE |
P B ODOM S PENN 2ND
Block
004
Lot
024
|
|||
| Full Legal Description: P B ODOM S PENN 2ND 004 024 |
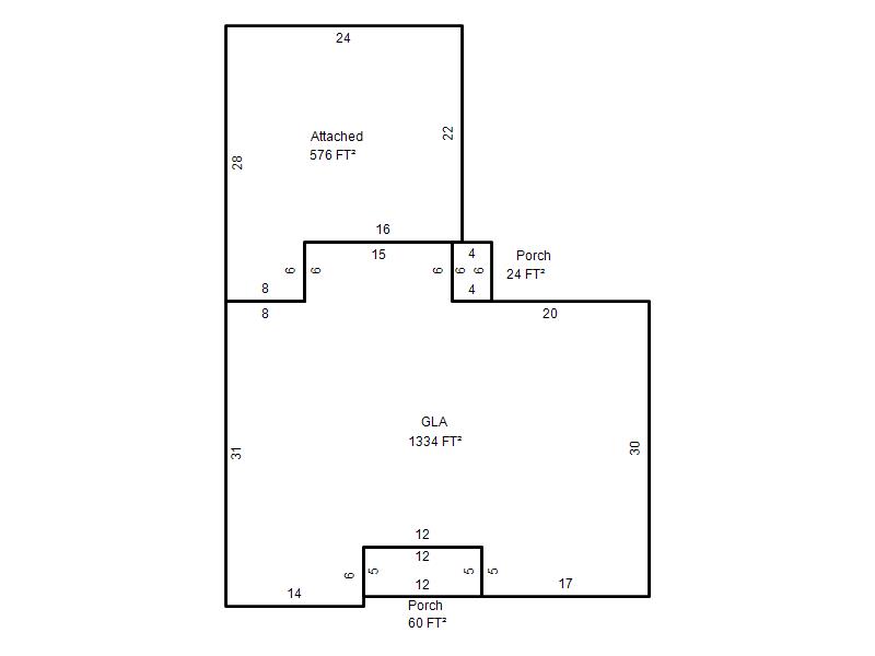
| Photo & Sketch (if available) | Comp Sales (ordered by relevancy) |
|
||||||||||||||||||
|
||||||||||||||||||||
| Value History (*The County Treasurer 405-713-1300 posts & collects actual tax amounts. Contact information HERE) | |||||||||||||
|---|---|---|---|---|---|---|---|---|---|---|---|---|---|
| Year | Market Value | Taxable Mkt Value | Gross Assessed | Exemption | Net Assessed | Millage | Est. Tax | Tax Savings | |||||
|
2025 |
213,500 |
156,500 |
17,215 |
1,000 |
16,215 |
120.83 |
$1,959 |
$878 |
|||||
|
2024 |
203,500 |
156,500 |
17,215 |
1,000 |
16,215 |
119.82 |
$1,943 |
$739 |
|||||
|
2023 |
156,500 |
156,500 |
17,215 |
2,000 |
15,215 |
119.00 |
$1,811 |
$238 |
|||||
|
2022 |
156,500 |
156,500 |
17,215 |
1,000 |
16,215 |
121.59 |
$1,972 |
$122 |
|||||
|
2021 |
113,500 |
113,500 |
12,485 |
0 |
12,485 |
120.72 |
$1,507 |
$0 |
|||||
| Property Account Status/Adjustments/Exemptions | ||
|---|---|---|
| Account # | Exemption Description | Amount |
|
R143211075 |
3% Cap Homestead |
0 |
|
R143211075 |
Freeze Senior Valuation |
0 |
|
R143211075 |
Homestead |
1,000 |
| Property Deed Transaction History (Recorded in the County Clerk's Office) | |||||||
|---|---|---|---|---|---|---|---|
| Date | Type | Book | Page | Price | Grantor | Grantee | |
|
1/4/2021 |
|
Deeds |
$155,000 |
NGUYEN DAVID |
HOGAN BONITA J |
||
|
7/31/2020 |
|
Deeds |
$91,000 |
HOOD KATHLEEN & MARK W |
NGUYEN DAVID |
||
|
8/24/2010 |
|
Deeds |
$0 |
NEEDHAM KATHLEEN |
HOOD KATHLEEN & MARK W |
||
|
3/22/2005 |
|
Deeds |
$0 |
NEEDHAM RICHARD C & KATHLEEN |
NEEDHAM KATHLEEN |
||
|
11/1/1978 |
|
Historical |
$0 |
|
NEEDHAM RICHARD C & KATHLEEN |
||
| Last Mailed Notice of Value (N.O.V.) Information/History | ||||||||
|---|---|---|---|---|---|---|---|---|
| Year | Date | Market Value | Taxable Market Value | Gross Assessed | Exemption | Net Assessed | ||
|
2025 |
01/31/2025 |
213,500 |
156,500 |
17,215 |
1,000 |
16,215 |
||
|
2024 |
01/22/2024 |
203,500 |
156,500 |
17,215 |
2,000 |
15,215 |
||
|
2022 |
02/22/2022 |
156,500 |
156,500 |
17,215 |
1,000 |
16,215 |
||
|
2021 |
02/24/2021 |
113,500 |
113,500 |
12,485 |
0 |
12,485 |
||
|
2019 |
02/26/2019 |
103,500 |
99,395 |
10,934 |
1,000 |
9,934 |
||
| Property Building Permit History | |||||||||||
|---|---|---|---|---|---|---|---|---|---|---|---|
| Issued | Permit # | Provided by | Bldg # | Description | Est Construction Cost | Status | |||||
| No Building Permit records returned. | |||||||||||
| Click button on building number to access detailed information: | ||||||
|---|---|---|---|---|---|---|
| Bldg # | Vacant/Improved Land | Bldg Description | Year Built | SqFt | # Stories | |
|
1 |
Improved |
Ranch 1 Story |
1962 |
1,334 |
1 Stories |
|