|
|
|
| Larry Stein Oklahoma County Assessor (405) 713-1200 - Public Access System |
|
|
|
|
|
|
| Real Property Display - Screen Produced 3/20/2026 1:47:15 PM | ||||
|---|---|---|---|---|
| Account: R143211275 | Type: Residential | Location: |
2209 LANEWAY CIR |
|
| Building Name/Occupant: |
|
OKLAHOMA CITY |
||
| Owner Name 1: | OLIVER ROSALBA |
Parcel PIN#: |
1722-14-321-1275 |
|
| Owner Name 2: | JACKSON RICHARD E | 1/4 section #: |
1722 |
|
| Owner Name 3: | Parent Acct: |
|
||
| Billing Address: | 2209 LANEWAY CIR | Tax District: |
|
|
| City, State, Zip | OKLAHOMA CITY, OK 73159 | School System: |
Moore #2 |
|
|
Country: (If noted) |
Land Size: |
0.2281 Acres |
||
|
Land Value: 36,763 |
|
|||
|
Sect 31-T11N-R3W Qtr SE |
P B ODOM S PENN 2ND
Block
004
Lot
044
|
|||
| Full Legal Description: P B ODOM S PENN 2ND 004 044 |
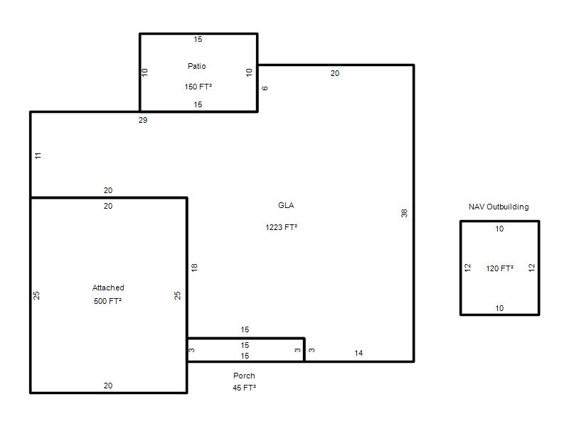
| Photo & Sketch (if available) | Comp Sales (ordered by relevancy) |
|
||||||||||||||||||
|
||||||||||||||||||||
| Value History (*The County Treasurer 405-713-1300 posts & collects actual tax amounts. Contact information HERE) | |||||||||||||
|---|---|---|---|---|---|---|---|---|---|---|---|---|---|
| Year | Market Value | Taxable Mkt Value | Gross Assessed | Exemption | Net Assessed | Millage | Est. Tax | Tax Savings | |||||
|
2025 |
194,000 |
144,124 |
15,852 |
0 |
15,852 |
120.83 |
$1,916 |
$663 |
|||||
|
2024 |
183,000 |
137,261 |
15,097 |
0 |
15,097 |
119.82 |
$1,809 |
$603 |
|||||
|
2023 |
165,500 |
130,725 |
14,379 |
0 |
14,379 |
119.00 |
$1,711 |
$455 |
|||||
|
2022 |
124,500 |
124,500 |
13,695 |
0 |
13,695 |
121.59 |
$1,665 |
$0 |
|||||
|
2021 |
127,500 |
127,500 |
14,025 |
0 |
14,025 |
120.72 |
$1,693 |
$0 |
|||||
| Property Account Status/Adjustments/Exemptions | ||
|---|---|---|
| Account # | Exemption Description | Amount |
|
R143211275 |
5% Capped Account |
0 |
| Property Deed Transaction History (Recorded in the County Clerk's Office) | |||||||
|---|---|---|---|---|---|---|---|
| Date | Type | Book | Page | Price | Grantor | Grantee | |
|
1/29/2020 |
|
Hmstd Off & |
$0 |
OLIVER ROSALBA |
OLIVER ROSALBA |
||
|
7/24/2019 |
|
Deeds |
$130,000 |
LAND CRAIG ALLEN |
OLIVER ROSALBA |
||
|
5/4/2018 |
|
Deeds |
$115,500 |
CONNER JEROLD D JR |
LAND CRAIG ALLEN |
||
|
4/1/2003 |
|
Deeds |
$84,000 |
PHILIPP LESLIE H & ANITA M |
CONNER JEROLD D JR |
||
|
7/1/1976 |
|
Historical |
$0 |
|
PHILIPP LESLIE H & ANITA M |
||
| Last Mailed Notice of Value (N.O.V.) Information/History | ||||||||
|---|---|---|---|---|---|---|---|---|
| Year | Date | Market Value | Taxable Market Value | Gross Assessed | Exemption | Net Assessed | ||
|
2026 |
02/06/2026 |
191,000 |
151,330 |
16,645 |
0 |
16,645 |
||
|
2025 |
01/31/2025 |
194,000 |
144,124 |
15,852 |
0 |
15,852 |
||
|
2024 |
01/22/2024 |
183,000 |
137,261 |
15,097 |
0 |
15,097 |
||
|
2023 |
01/23/2023 |
165,500 |
130,725 |
14,379 |
0 |
14,379 |
||
|
2021 |
02/24/2021 |
127,500 |
127,500 |
14,025 |
0 |
14,025 |
||
| Property Building Permit History | |||||||||||
|---|---|---|---|---|---|---|---|---|---|---|---|
| Issued | Permit # | Provided by | Bldg # | Description | Est Construction Cost | Status | |||||
| No Building Permit records returned. | |||||||||||
| Click button on building number to access detailed information: | ||||||
|---|---|---|---|---|---|---|
| Bldg # | Vacant/Improved Land | Bldg Description | Year Built | SqFt | # Stories | |
|
1 |
Improved |
Ranch 1 Story |
1962 |
1,223 |
1 Stories |
|