|
|
|
| Larry Stein Oklahoma County Assessor (405) 713-1200 - Public Access System |
|
|
|
|
|
|
| Real Property Display - Screen Produced 3/20/2026 1:48:59 PM | ||||
|---|---|---|---|---|
| Account: R143211295 | Type: Residential | Location: |
2201 LANEWAY CIR |
|
| Building Name/Occupant: |
|
OKLAHOMA CITY |
||
| Owner Name 1: | SKIDMORE KENNETH F & MARY E |
Parcel PIN#: |
1722-14-321-1295 |
|
| Owner Name 2: | 1/4 section #: |
1722 |
||
| Owner Name 3: | Parent Acct: |
|
||
| Billing Address: | 2201 LANEWAY CIR | Tax District: |
|
|
| City, State, Zip | OKLAHOMA CITY, OK 73159-5827 | School System: |
Moore #2 |
|
|
Country: (If noted) |
Land Size: |
0.1964 Acres |
||
|
Land Value: 30,815 |
|
|||
|
Sect 31-T11N-R3W Qtr SE |
P B ODOM S PENN 2ND
Block
004
Lot
046
|
|||
| Full Legal Description: P B ODOM S PENN 2ND 004 046 |
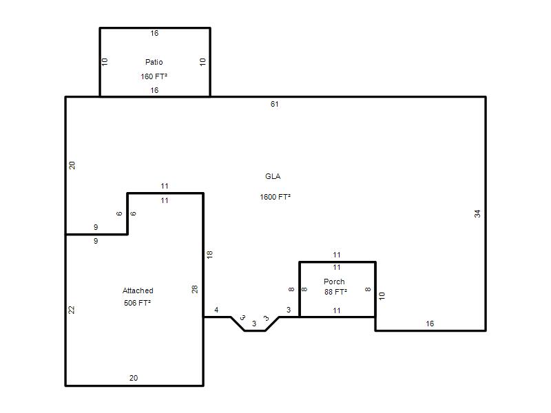
| Photo & Sketch (if available) | Comp Sales (ordered by relevancy) |
|
||||||||||||||||||
|
||||||||||||||||||||
| Value History (*The County Treasurer 405-713-1300 posts & collects actual tax amounts. Contact information HERE) | |||||||||||||
|---|---|---|---|---|---|---|---|---|---|---|---|---|---|
| Year | Market Value | Taxable Mkt Value | Gross Assessed | Exemption | Net Assessed | Millage | Est. Tax | Tax Savings | |||||
|
2025 |
199,500 |
135,633 |
14,919 |
1,000 |
13,919 |
120.83 |
$1,682 |
$970 |
|||||
|
2024 |
189,500 |
131,683 |
14,484 |
1,000 |
13,484 |
119.82 |
$1,616 |
$882 |
|||||
|
2023 |
168,000 |
127,848 |
14,062 |
1,000 |
13,062 |
119.00 |
$1,555 |
$645 |
|||||
|
2022 |
148,500 |
124,125 |
13,653 |
1,000 |
12,653 |
121.59 |
$1,539 |
$448 |
|||||
|
2021 |
131,000 |
120,510 |
13,256 |
1,000 |
12,256 |
120.72 |
$1,480 |
$260 |
|||||
| Property Account Status/Adjustments/Exemptions | ||
|---|---|---|
| Account # | Exemption Description | Amount |
|
R143211295 |
3% Cap Homestead |
0 |
|
R143211295 |
Homestead |
1,000 |
| Property Deed Transaction History (Recorded in the County Clerk's Office) | |||||||
|---|---|---|---|---|---|---|---|
| Date | Type | Book | Page | Price | Grantor | Grantee | |
|
12/8/1989 |
|
Historical |
$53,500 |
BENEFICIAL MORTGAGE CO |
SKIDMORE KENNETH F & MARY E |
||
|
8/21/1989 |
|
Historical |
$0 |
BENEFICIAL MORTGAGE CO |
BENEFICIAL MORTGAGE CO |
||
|
2/8/1989 |
|
Historical |
$0 |
JAMES JOSEPH RAY & LAURINE |
BENEFICIAL MORTGAGE CO |
||
|
6/1/1980 |
|
Historical |
$0 |
|
JAMES JOSEPH RAY & LAURINE |
||
| Last Mailed Notice of Value (N.O.V.) Information/History | ||||||||
|---|---|---|---|---|---|---|---|---|
| Year | Date | Market Value | Taxable Market Value | Gross Assessed | Exemption | Net Assessed | ||
|
2026 |
02/06/2026 |
189,500 |
139,701 |
15,366 |
1,000 |
14,366 |
||
|
2025 |
01/31/2025 |
199,500 |
135,633 |
14,919 |
1,000 |
13,919 |
||
|
2024 |
01/22/2024 |
189,500 |
131,683 |
14,484 |
1,000 |
13,484 |
||
|
2023 |
01/23/2023 |
168,000 |
127,848 |
14,062 |
1,000 |
13,062 |
||
|
2022 |
02/22/2022 |
148,500 |
124,125 |
13,653 |
1,000 |
12,653 |
||
| Property Building Permit History | |||||||||||
|---|---|---|---|---|---|---|---|---|---|---|---|
| Issued | Permit # | Provided by | Bldg # | Description | Est Construction Cost | Status | |||||
| No Building Permit records returned. | |||||||||||
| Click button on building number to access detailed information: | ||||||
|---|---|---|---|---|---|---|
| Bldg # | Vacant/Improved Land | Bldg Description | Year Built | SqFt | # Stories | |
|
1 |
Improved |
Ranch 1 Story |
1962 |
1,600 |
1 Stories |
|