|
|
|
| Larry Stein Oklahoma County Assessor (405) 713-1200 - Public Access System |
|
|
|
|
|
|
| Real Property Display - Screen Produced 3/20/2026 10:15:02 AM | ||||
|---|---|---|---|---|
| Account: R143351115 | Type: Residential | Location: |
2213 FLAIR DR |
|
| Building Name/Occupant: |
|
OKLAHOMA CITY |
||
| Owner Name 1: | STANLEY JERRY & DEBRA TRS |
Parcel PIN#: |
1722-14-335-1115 |
|
| Owner Name 2: | STANLEY J & D REV TRUST | 1/4 section #: |
1722 |
|
| Owner Name 3: | Parent Acct: |
|
||
| Billing Address: | 2504 SW 123RD PL | Tax District: |
|
|
| City, State, Zip | OKLAHOMA CITY, OK 73170-4714 | School System: |
Moore #2 |
|
|
Country: (If noted) |
Land Size: |
0.2238 Acres |
||
|
Land Value: 36,075 |
|
|||
|
Sect 31-T11N-R3W Qtr SE |
P B ODOMS SOUTH PENN 3RD
Block
011
Lot
034
|
|||
| Full Legal Description: P B ODOMS SOUTH PENN 3RD 011 034 |
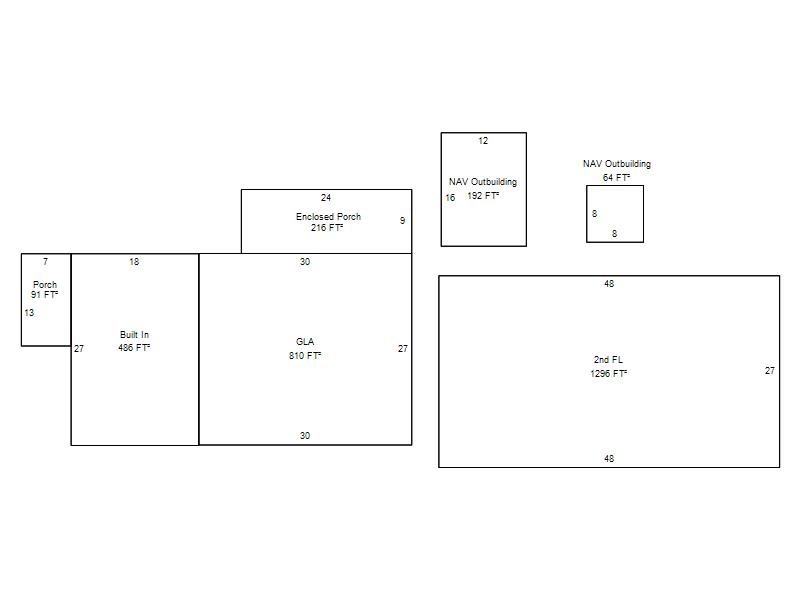
| Photo & Sketch (if available) | Comp Sales (ordered by relevancy) |
|
||||||||||||||||||
|
||||||||||||||||||||
| Value History (*The County Treasurer 405-713-1300 posts & collects actual tax amounts. Contact information HERE) | |||||||||||||
|---|---|---|---|---|---|---|---|---|---|---|---|---|---|
| Year | Market Value | Taxable Mkt Value | Gross Assessed | Exemption | Net Assessed | Millage | Est. Tax | Tax Savings | |||||
|
2025 |
229,500 |
108,886 |
11,977 |
0 |
11,977 |
120.83 |
$1,447 |
$1,603 |
|||||
|
2024 |
209,000 |
103,701 |
11,406 |
0 |
11,406 |
119.82 |
$1,367 |
$1,388 |
|||||
|
2023 |
196,500 |
98,763 |
10,863 |
0 |
10,863 |
119.00 |
$1,293 |
$1,279 |
|||||
|
2022 |
94,060 |
94,060 |
10,346 |
0 |
10,346 |
121.59 |
$1,258 |
$0 |
|||||
|
2021 |
94,060 |
94,060 |
10,346 |
0 |
10,346 |
120.72 |
$1,249 |
$0 |
|||||
| Property Account Status/Adjustments/Exemptions | ||
|---|---|---|
| Account # | Exemption Description | Amount |
|
R143351115 |
5% Capped Account |
0 |
| Property Deed Transaction History (Recorded in the County Clerk's Office) | ||||||||||
|---|---|---|---|---|---|---|---|---|---|---|
| Date | Type | Book | Page | Price | Grantor | Grantee | ||||
|
5/19/2020 |
|
Hmstd Off & |
$0 |
STANLEY JERRY WAYNE |
STANLEY JERRY & DEBRA TRS |
|||||
|
8/15/2013 |
|
Deeds |
$89,000 |
THOMPSON MICHAEL |
STANLEY JERRY WAYNE |
|||||
|
5/26/2006 |
|
Deeds |
$100,000 |
DAVIS KERRY D |
THOMPSON MICHAEL |
|||||
|
6/2/1998 |
|
Historical |
$87,500 |
DOMINGUEZ JANIE TRS |
DAVIS KERRY D |
|||||
|
1/24/1995 |
|
Historical |
$0 |
DOMINGUEZ JANIE |
DOMINGUEZ JANIE TRS |
|||||
| Last Mailed Notice of Value (N.O.V.) Information/History | ||||||
|---|---|---|---|---|---|---|
| Year | Date | Market Value | Taxable Market Value | Gross Assessed | Exemption | Net Assessed |
|
2026 |
02/06/2026 |
231,500 |
114,330 |
12,575 |
0 |
12,575 |
|
2025 |
01/31/2025 |
229,500 |
108,886 |
11,977 |
0 |
11,977 |
|
2024 |
01/22/2024 |
209,000 |
103,701 |
11,406 |
0 |
11,406 |
|
2023 |
01/23/2023 |
196,500 |
98,763 |
10,863 |
0 |
10,863 |
|
2019 |
04/12/2019 |
94,060 |
94,060 |
10,346 |
0 |
10,346 |
| Property Building Permit History | |||||||||||
|---|---|---|---|---|---|---|---|---|---|---|---|
| Issued | Permit # | Provided by | Bldg # | Description | Est Construction Cost | Status | |||||
| No Building Permit records returned. | |||||||||||
| Click button on building number to access detailed information: | ||||||
|---|---|---|---|---|---|---|
| Bldg # | Vacant/Improved Land | Bldg Description | Year Built | SqFt | # Stories | |
|
1 |
Improved |
1½ Story Fin |
1965 |
2,106 |
1.5 Stories |
|