|
|
|
| Larry Stein Oklahoma County Assessor (405) 713-1200 - Public Access System |
|
|
|
|
|
|
| Real Property Display - Screen Produced 3/20/2026 10:16:05 AM | ||||
|---|---|---|---|---|
| Account: R143351135 | Type: Residential | Location: |
2205 FLAIR DR |
|
| Building Name/Occupant: |
|
OKLAHOMA CITY |
||
| Owner Name 1: | ALLEN AZALENE B TRS |
Parcel PIN#: |
1722-14-335-1135 |
|
| Owner Name 2: | ALLEN STANLEY ROGER TRS | 1/4 section #: |
1722 |
|
| Owner Name 3: | ALLEN AZALENE B LIVING TRUST | Parent Acct: |
|
|
| Billing Address: | 2205 FLAIR DR | Tax District: |
|
|
| City, State, Zip | OKLAHOMA CITY, OK 73159 | School System: |
Moore #2 |
|
|
Country: (If noted) |
Land Size: |
0.2066 Acres |
||
|
Land Value: 33,300 |
|
|||
|
Sect 31-T11N-R3W Qtr SE |
P B ODOMS SOUTH PENN 3RD
Block
011
Lot
036
|
|||
| Full Legal Description: P B ODOMS SOUTH PENN 3RD 011 036 |
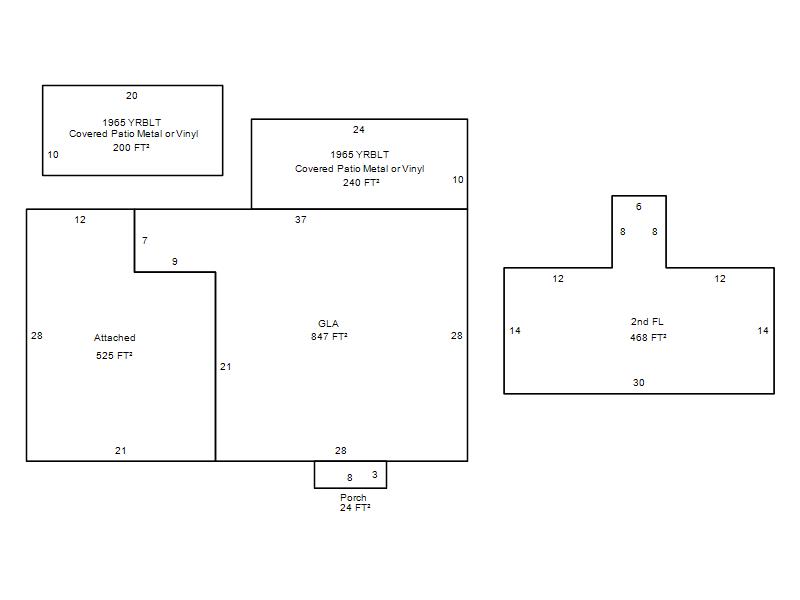
| Photo & Sketch (if available) | Comp Sales (ordered by relevancy) |
|
||||||||||||||||||
|
||||||||||||||||||||
| Value History (*The County Treasurer 405-713-1300 posts & collects actual tax amounts. Contact information HERE) | |||||||||||||
|---|---|---|---|---|---|---|---|---|---|---|---|---|---|
| Year | Market Value | Taxable Mkt Value | Gross Assessed | Exemption | Net Assessed | Millage | Est. Tax | Tax Savings | |||||
|
2025 |
178,000 |
136,560 |
15,021 |
0 |
15,021 |
120.83 |
$1,815 |
$551 |
|||||
|
2024 |
167,500 |
130,058 |
14,306 |
0 |
14,306 |
119.82 |
$1,714 |
$493 |
|||||
|
2023 |
155,000 |
123,865 |
13,624 |
0 |
13,624 |
119.00 |
$1,621 |
$408 |
|||||
|
2022 |
139,500 |
117,967 |
12,975 |
0 |
12,975 |
121.59 |
$1,578 |
$288 |
|||||
|
2021 |
118,500 |
112,350 |
12,358 |
0 |
12,358 |
120.72 |
$1,492 |
$82 |
|||||
| Property Account Status/Adjustments/Exemptions | ||
|---|---|---|
| Account # | Exemption Description | Amount |
|
R143351135 |
5% Capped Account |
0 |
| Property Deed Transaction History (Recorded in the County Clerk's Office) | |||||||
|---|---|---|---|---|---|---|---|
| Date | Type | Book | Page | Price | Grantor | Grantee | |
|
8/1/1997 |
|
Historical |
$0 |
ALLEN STANLEY M |
ALLEN AZALENE B TRS |
||
|
12/1/1982 |
|
Historical |
$0 |
|
ALLEN STANLEY M |
||
| Last Mailed Notice of Value (N.O.V.) Information/History | ||||||||
|---|---|---|---|---|---|---|---|---|
| Year | Date | Market Value | Taxable Market Value | Gross Assessed | Exemption | Net Assessed | ||
|
2026 |
02/06/2026 |
175,000 |
143,388 |
15,772 |
0 |
15,772 |
||
|
2025 |
01/31/2025 |
178,000 |
136,560 |
15,021 |
0 |
15,021 |
||
|
2024 |
01/22/2024 |
167,500 |
130,058 |
14,306 |
0 |
14,306 |
||
|
2023 |
01/23/2023 |
155,000 |
123,865 |
13,624 |
0 |
13,624 |
||
|
2022 |
02/22/2022 |
139,500 |
117,967 |
12,975 |
0 |
12,975 |
||
| Property Building Permit History | |||||||||||
|---|---|---|---|---|---|---|---|---|---|---|---|
| Issued | Permit # | Provided by | Bldg # | Description | Est Construction Cost | Status | |||||
| No Building Permit records returned. | |||||||||||
| Click button on building number to access detailed information: | ||||||
|---|---|---|---|---|---|---|
| Bldg # | Vacant/Improved Land | Bldg Description | Year Built | SqFt | # Stories | |
|
1 |
Improved |
1½ Story Fin |
1965 |
1,315 |
1.5 Stories |
|