|
|
|
| Larry Stein Oklahoma County Assessor (405) 713-1200 - Public Access System |
|
|
|
|
|
|
| Real Property Display - Screen Produced 3/20/2026 10:16:05 AM | ||||
|---|---|---|---|---|
| Account: R143351145 | Type: Residential | Location: |
2201 FLAIR DR |
|
| Building Name/Occupant: |
|
OKLAHOMA CITY |
||
| Owner Name 1: | GARCIA FILIBERTO |
Parcel PIN#: |
1722-14-335-1145 |
|
| Owner Name 2: | 1/4 section #: |
1722 |
||
| Owner Name 3: | Parent Acct: |
|
||
| Billing Address: | 2201 FLAIR DR | Tax District: |
|
|
| City, State, Zip | OKLAHOMA CITY, OK 73159 | School System: |
Moore #2 |
|
|
Country: (If noted) |
Land Size: |
0.2066 Acres |
||
|
Land Value: 33,300 |
|
|||
|
Sect 31-T11N-R3W Qtr SE |
P B ODOMS SOUTH PENN 3RD
Block
011
Lot
037
|
|||
| Full Legal Description: P B ODOMS SOUTH PENN 3RD 011 037 |
| Photo & Sketch (if available) | Comp Sales (ordered by relevancy) |
|
||||||||||||||||||
|
||||||||||||||||||||
| Value History (*The County Treasurer 405-713-1300 posts & collects actual tax amounts. Contact information HERE) | |||||||||||||
|---|---|---|---|---|---|---|---|---|---|---|---|---|---|
| Year | Market Value | Taxable Mkt Value | Gross Assessed | Exemption | Net Assessed | Millage | Est. Tax | Tax Savings | |||||
|
2025 |
225,000 |
153,798 |
16,917 |
0 |
16,917 |
120.83 |
$2,044 |
$946 |
|||||
|
2024 |
217,500 |
146,475 |
16,112 |
0 |
16,112 |
119.82 |
$1,931 |
$936 |
|||||
|
2023 |
139,500 |
139,500 |
15,345 |
0 |
15,345 |
119.00 |
$1,826 |
$0 |
|||||
|
2022 |
139,500 |
139,500 |
15,345 |
0 |
15,345 |
121.59 |
$1,866 |
$0 |
|||||
|
2021 |
139,500 |
139,500 |
15,345 |
0 |
15,345 |
120.72 |
$1,852 |
$0 |
|||||
| Property Account Status/Adjustments/Exemptions | ||
|---|---|---|
| Account # | Exemption Description | Amount |
|
R143351145 |
5% Capped Account |
0 |
| Property Deed Transaction History (Recorded in the County Clerk's Office) | |||||||
|---|---|---|---|---|---|---|---|
| Date | Type | Book | Page | Price | Grantor | Grantee | |
|
4/13/2020 |
|
Deeds |
$135,000 |
MAGEE ROBERT L |
GARCIA FILIBERTO |
||
|
5/6/2016 |
|
Deeds |
$118,000 |
BARKER JACOB & TIFFANY |
MAGEE ROBERT L |
||
|
4/2/2012 |
|
Deeds |
$75,000 |
WILLIAMS SARAH RUTH |
BARKER JACOB & TIFFANY |
||
|
2/2/2004 |
|
Deeds |
$0 |
WILLIAMS AUBREY J & SARAH R |
WILLIAMS SARAH RUTH |
||
|
11/11/1911 |
|
Historical |
$0 |
|
WILLIAMS AUBREY J & SARAH R |
||
| Last Mailed Notice of Value (N.O.V.) Information/History | ||||||||
|---|---|---|---|---|---|---|---|---|
| Year | Date | Market Value | Taxable Market Value | Gross Assessed | Exemption | Net Assessed | ||
|
2026 |
02/06/2026 |
222,500 |
161,487 |
17,762 |
0 |
17,762 |
||
|
2025 |
01/31/2025 |
225,000 |
153,798 |
16,917 |
0 |
16,917 |
||
|
2024 |
01/22/2024 |
217,500 |
146,475 |
16,112 |
0 |
16,112 |
||
|
2021 |
02/24/2021 |
139,500 |
139,500 |
15,345 |
0 |
15,345 |
||
|
2020 |
02/21/2020 |
134,500 |
134,500 |
14,795 |
1,000 |
13,795 |
||
| Property Building Permit History | |||||||||||
|---|---|---|---|---|---|---|---|---|---|---|---|
| Issued | Permit # | Provided by | Bldg # | Description | Est Construction Cost | Status | |||||
| No Building Permit records returned. | |||||||||||
| Click button on building number to access detailed information: | ||||||
|---|---|---|---|---|---|---|
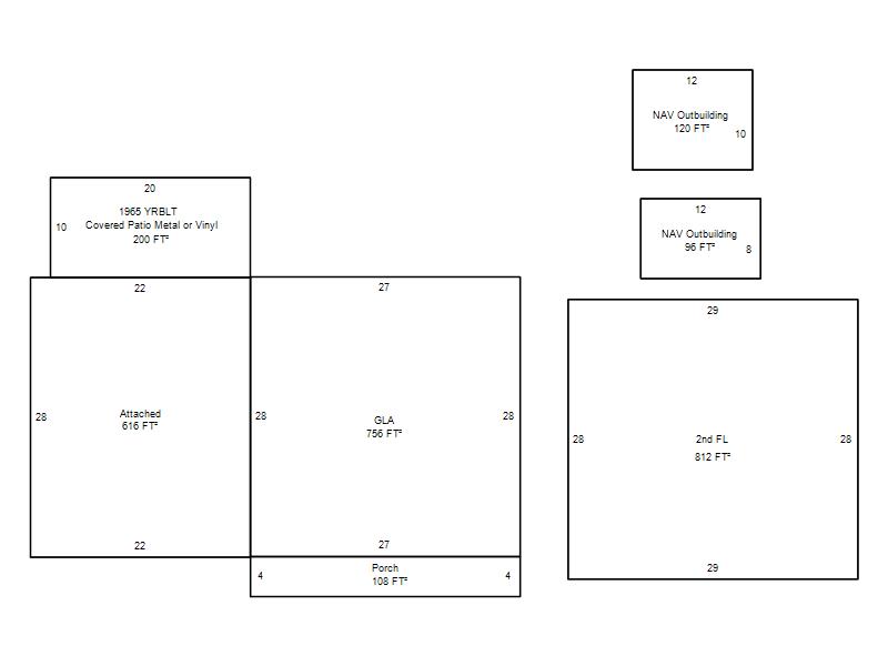
| Bldg # | Vacant/Improved Land | Bldg Description | Year Built | SqFt | # Stories | |
|
1 |
Improved |
2 Story |
1965 |
1,568 |
2 Stories |
|