|
|
|
| Larry Stein Oklahoma County Assessor (405) 713-1200 - Public Access System |
|
|
|
|
|
|
| Real Property Display - Screen Produced 3/20/2026 10:15:38 AM | ||||
|---|---|---|---|---|
| Account: R143351325 | Type: Residential | Location: |
2109 SW 84TH ST |
|
| Building Name/Occupant: |
|
OKLAHOMA CITY |
||
| Owner Name 1: | JAMES BETTY P |
Parcel PIN#: |
1722-14-335-1325 |
|
| Owner Name 2: | 1/4 section #: |
1722 |
||
| Owner Name 3: | Parent Acct: |
|
||
| Billing Address: | 2109 SW 84TH ST | Tax District: |
|
|
| City, State, Zip | OKLAHOMA CITY, OK 73159-6101 | School System: |
Moore #2 |
|
|
Country: (If noted) |
Land Size: |
0.1691 Acres |
||
|
Land Value: 27,254 |
|
|||
|
Sect 31-T11N-R3W Qtr SE |
P B ODOMS SOUTH PENN 3RD
Block
013
Lot
000
|
|||
| Full Legal Description: P B ODOMS SOUTH PENN 3RD 013 000 ALL LOT 7 EXCEPT W5FT PLUS W5FT LOT 8 |
| Photo & Sketch (if available) | Comp Sales (ordered by relevancy) |
|
||||||||||||||||||
|
||||||||||||||||||||
| Value History (*The County Treasurer 405-713-1300 posts & collects actual tax amounts. Contact information HERE) | |||||||||||||
|---|---|---|---|---|---|---|---|---|---|---|---|---|---|
| Year | Market Value | Taxable Mkt Value | Gross Assessed | Exemption | Net Assessed | Millage | Est. Tax | Tax Savings | |||||
|
2025 |
162,000 |
73,159 |
8,047 |
1,000 |
7,047 |
120.83 |
$852 |
$1,302 |
|||||
|
2024 |
153,000 |
73,159 |
8,047 |
1,000 |
7,047 |
119.82 |
$844 |
$1,172 |
|||||
|
2023 |
140,500 |
73,159 |
8,047 |
1,000 |
7,047 |
119.00 |
$839 |
$1,000 |
|||||
|
2022 |
128,000 |
73,159 |
8,047 |
1,000 |
7,047 |
121.59 |
$857 |
$855 |
|||||
|
2021 |
109,000 |
73,159 |
8,047 |
1,000 |
7,047 |
120.72 |
$851 |
$597 |
|||||
| Property Account Status/Adjustments/Exemptions | ||
|---|---|---|
| Account # | Exemption Description | Amount |
|
R143351325 |
Freeze Senior Valuation |
0 |
|
R143351325 |
3% Cap Homestead |
0 |
|
R143351325 |
Homestead |
1,000 |
| Property Deed Transaction History (Recorded in the County Clerk's Office) | |||||||
|---|---|---|---|---|---|---|---|
| Date | Type | Book | Page | Price | Grantor | Grantee | |
|
12/30/2002 |
|
Deeds |
$0 |
JAMES NEEL & BETTY P |
JAMES BETTY P |
||
|
11/11/1911 |
|
Historical |
$0 |
|
JAMES NEEL & BETTY P |
||
| Last Mailed Notice of Value (N.O.V.) Information/History | ||||||||
|---|---|---|---|---|---|---|---|---|
| Year | Date | Market Value | Taxable Market Value | Gross Assessed | Exemption | Net Assessed | ||
|
2025 |
01/31/2025 |
162,000 |
73,159 |
8,047 |
1,000 |
7,047 |
||
|
2024 |
01/22/2024 |
153,000 |
73,159 |
8,047 |
1,000 |
7,047 |
||
|
2023 |
01/23/2023 |
140,500 |
73,159 |
8,047 |
1,000 |
7,047 |
||
|
2022 |
02/22/2022 |
128,000 |
73,159 |
8,047 |
1,000 |
7,047 |
||
|
2021 |
02/24/2021 |
109,000 |
73,159 |
8,047 |
1,000 |
7,047 |
||
| Property Building Permit History | |||||||||||
|---|---|---|---|---|---|---|---|---|---|---|---|
| Issued | Permit # | Provided by | Bldg # | Description | Est Construction Cost | Status | |||||
| No Building Permit records returned. | |||||||||||
| Click button on building number to access detailed information: | ||||||
|---|---|---|---|---|---|---|
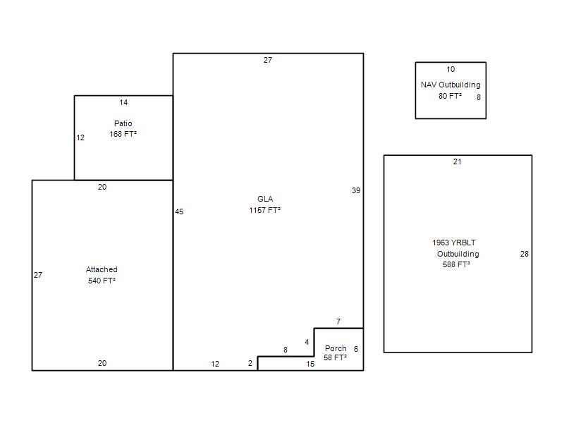
| Bldg # | Vacant/Improved Land | Bldg Description | Year Built | SqFt | # Stories | |
|
1 |
Improved |
Ranch 1 Story |
1963 |
1,157 |
1 Stories |
|