|
|
|
| Larry Stein Oklahoma County Assessor (405) 713-1200 - Public Access System |
|
|
|
|
|
|
| Real Property Display - Screen Produced 3/20/2026 10:16:31 AM | ||||
|---|---|---|---|---|
| Account: R143351585 | Type: Residential | Location: |
2201 SW 85TH ST |
|
| Building Name/Occupant: |
|
OKLAHOMA CITY |
||
| Owner Name 1: | RENOVA OMAR |
Parcel PIN#: |
1722-14-335-1585 |
|
| Owner Name 2: | RENOVA MARIA D | 1/4 section #: |
1722 |
|
| Owner Name 3: | Parent Acct: |
|
||
| Billing Address: | 2201 SW 85TH ST | Tax District: |
|
|
| City, State, Zip | OKLAHOMA CITY , OK 73159 | School System: |
Moore #2 |
|
|
Country: (If noted) |
Land Size: |
0.2218 Acres |
||
|
Land Value: 35,742 |
|
|||
|
Sect 31-T11N-R3W Qtr SE |
P B ODOMS SOUTH PENN 3RD
Block
014
Lot
024
|
|||
| Full Legal Description: P B ODOMS SOUTH PENN 3RD 014 024 |
| Photo & Sketch (if available) | Comp Sales (ordered by relevancy) |
|
||||||||||||||||||
|
||||||||||||||||||||
| Value History (*The County Treasurer 405-713-1300 posts & collects actual tax amounts. Contact information HERE) | |||||||||||||
|---|---|---|---|---|---|---|---|---|---|---|---|---|---|
| Year | Market Value | Taxable Mkt Value | Gross Assessed | Exemption | Net Assessed | Millage | Est. Tax | Tax Savings | |||||
|
2025 |
218,000 |
160,172 |
17,617 |
0 |
17,617 |
120.83 |
$2,129 |
$769 |
|||||
|
2024 |
211,000 |
152,545 |
16,779 |
0 |
16,779 |
119.82 |
$2,011 |
$770 |
|||||
|
2023 |
188,000 |
145,281 |
15,979 |
0 |
15,979 |
119.00 |
$1,902 |
$559 |
|||||
|
2022 |
172,500 |
138,363 |
15,219 |
0 |
15,219 |
121.59 |
$1,851 |
$457 |
|||||
|
2021 |
145,000 |
131,775 |
14,495 |
0 |
14,495 |
120.72 |
$1,750 |
$176 |
|||||
| Property Account Status/Adjustments/Exemptions | ||
|---|---|---|
| Account # | Exemption Description | Amount |
|
R143351585 |
5% Capped Account |
0 |
| Property Deed Transaction History (Recorded in the County Clerk's Office) | ||||||||||
|---|---|---|---|---|---|---|---|---|---|---|
| Date | Type | Book | Page | Price | Grantor | Grantee | ||||
|
6/4/2019 |
|
Deeds |
$130,000 |
ROGERS CHRIS J |
RENOVA OMAR |
|||||
|
6/13/2014 |
|
Deeds |
$97,500 |
WILLBANKS SMITH LORETTA |
ROGERS CHRIS J |
|||||
|
6/9/2014 |
|
Deeds |
$0 |
SMITH RAY A & LORETTA |
WILLBANKS SMITH LORETTA |
|||||
|
12/17/1998 |
|
Historical |
$0 |
SMITH RAY A |
SMITH RAY A & LORETTA |
|||||
|
6/3/1997 |
|
Historical |
$63,500 |
FRAZIER JAMES L |
SMITH RAY A |
|||||
| Last Mailed Notice of Value (N.O.V.) Information/History | ||||||||
|---|---|---|---|---|---|---|---|---|
| Year | Date | Market Value | Taxable Market Value | Gross Assessed | Exemption | Net Assessed | ||
|
2026 |
02/06/2026 |
214,000 |
168,180 |
18,498 |
0 |
18,498 |
||
|
2025 |
01/31/2025 |
218,000 |
160,172 |
17,617 |
0 |
17,617 |
||
|
2024 |
01/22/2024 |
211,000 |
152,545 |
16,779 |
0 |
16,779 |
||
|
2023 |
01/23/2023 |
188,000 |
145,281 |
15,979 |
0 |
15,979 |
||
|
2022 |
02/22/2022 |
172,500 |
138,363 |
15,219 |
0 |
15,219 |
||
| Property Building Permit History | |||||||||||
|---|---|---|---|---|---|---|---|---|---|---|---|
| Issued | Permit # | Provided by | Bldg # | Description | Est Construction Cost | Status | |||||
| No Building Permit records returned. | |||||||||||
| Click button on building number to access detailed information: | ||||||
|---|---|---|---|---|---|---|
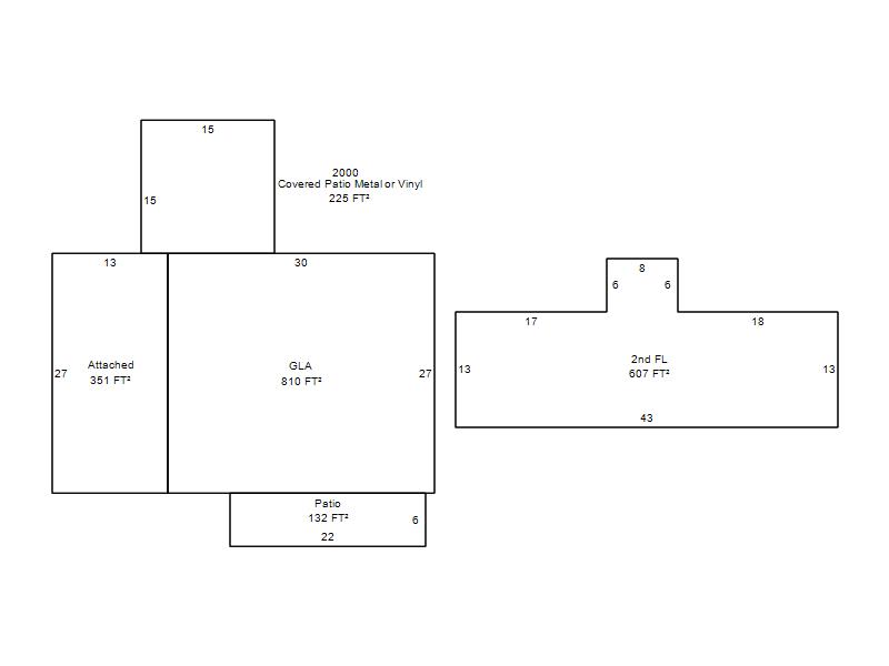
| Bldg # | Vacant/Improved Land | Bldg Description | Year Built | SqFt | # Stories | |
|
1 |
Improved |
2 Story |
1964 |
1,417 |
2 Stories |
|