|
|
|
| Larry Stein Oklahoma County Assessor (405) 713-1200 - Public Access System |
|
|
|
|
|
|
| Real Property Display - Screen Produced 3/20/2026 10:15:39 AM | ||||
|---|---|---|---|---|
| Account: R143351625 | Type: Residential | Location: |
2113 SW 85TH ST |
|
| Building Name/Occupant: |
|
OKLAHOMA CITY |
||
| Owner Name 1: | WATSON CHARLES L & DEBRA A |
Parcel PIN#: |
1722-14-335-1625 |
|
| Owner Name 2: | 1/4 section #: |
1722 |
||
| Owner Name 3: | Parent Acct: |
|
||
| Billing Address: | 2113 SW 85TH ST | Tax District: |
|
|
| City, State, Zip | OKLAHOMA CITY, OK 73159-6103 | School System: |
Moore #2 |
|
|
Country: (If noted) |
Land Size: |
0.1653 Acres |
||
|
Land Value: 26,640 |
|
|||
|
Sect 31-T11N-R3W Qtr SE |
P B ODOMS SOUTH PENN 3RD
Block
014
Lot
028
|
|||
| Full Legal Description: P B ODOMS SOUTH PENN 3RD 014 028 |
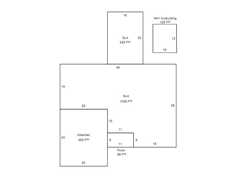
| Photo & Sketch (if available) | Comp Sales (ordered by relevancy) |
|
||||||||||||||||||
|
||||||||||||||||||||
| Value History (*The County Treasurer 405-713-1300 posts & collects actual tax amounts. Contact information HERE) | |||||||||||||
|---|---|---|---|---|---|---|---|---|---|---|---|---|---|
| Year | Market Value | Taxable Mkt Value | Gross Assessed | Exemption | Net Assessed | Millage | Est. Tax | Tax Savings | |||||
|
2025 |
210,000 |
146,067 |
16,066 |
1,000 |
15,066 |
120.83 |
$1,821 |
$971 |
|||||
|
2024 |
199,000 |
141,813 |
15,599 |
1,000 |
14,599 |
119.82 |
$1,749 |
$874 |
|||||
|
2023 |
178,500 |
137,683 |
15,145 |
1,000 |
14,145 |
119.00 |
$1,683 |
$653 |
|||||
|
2022 |
159,500 |
133,673 |
14,703 |
1,000 |
13,703 |
121.59 |
$1,666 |
$467 |
|||||
|
2021 |
140,000 |
129,780 |
14,275 |
1,000 |
13,275 |
120.72 |
$1,603 |
$256 |
|||||
| Property Account Status/Adjustments/Exemptions | ||
|---|---|---|
| Account # | Exemption Description | Amount |
|
R143351625 |
3% Cap Homestead |
0 |
|
R143351625 |
Homestead |
1,000 |
| Property Deed Transaction History (Recorded in the County Clerk's Office) | |||||||
|---|---|---|---|---|---|---|---|
| Date | Type | Book | Page | Price | Grantor | Grantee | |
|
7/30/1992 |
|
Historical |
$0 |
WATSON CHARLES LUTHER |
WATSON CHARLES L & DEBRA A |
||
|
3/1/1985 |
|
Historical |
$0 |
|
WATSON CHARLES LUTHER |
||
| Last Mailed Notice of Value (N.O.V.) Information/History | ||||||||
|---|---|---|---|---|---|---|---|---|
| Year | Date | Market Value | Taxable Market Value | Gross Assessed | Exemption | Net Assessed | ||
|
2026 |
02/06/2026 |
202,500 |
150,449 |
16,549 |
1,000 |
15,549 |
||
|
2025 |
01/31/2025 |
210,000 |
146,067 |
16,066 |
1,000 |
15,066 |
||
|
2024 |
01/22/2024 |
199,000 |
141,813 |
15,599 |
1,000 |
14,599 |
||
|
2023 |
01/23/2023 |
178,500 |
137,683 |
15,145 |
1,000 |
14,145 |
||
|
2022 |
02/22/2022 |
159,500 |
133,673 |
14,703 |
1,000 |
13,703 |
||
| Property Building Permit History | |||||||||||
|---|---|---|---|---|---|---|---|---|---|---|---|
| Issued | Permit # | Provided by | Bldg # | Description | Est Construction Cost | Status | |||||
| No Building Permit records returned. | |||||||||||
| Click button on building number to access detailed information: | ||||||
|---|---|---|---|---|---|---|
| Bldg # | Vacant/Improved Land | Bldg Description | Year Built | SqFt | # Stories | |
|
1 |
Improved |
Ranch 1 Story |
1964 |
1,659 |
1 Stories |
|