|
|
|
| Larry Stein Oklahoma County Assessor (405) 713-1200 - Public Access System |
|
|
|
|
|
|
| Real Property Display - Screen Produced 3/20/2026 10:16:32 AM | ||||
|---|---|---|---|---|
| Account: R143351645 | Type: Residential | Location: |
2105 SW 85TH ST |
|
| Building Name/Occupant: |
|
OKLAHOMA CITY |
||
| Owner Name 1: | LOERA ABEL DE |
Parcel PIN#: |
1722-14-335-1645 |
|
| Owner Name 2: | 1/4 section #: |
1722 |
||
| Owner Name 3: | Parent Acct: |
|
||
| Billing Address: | 2404 PANTHEON CIR | Tax District: |
|
|
| City, State, Zip | OKLAHOMA CITY, OK 73170-3236 | School System: |
Moore #2 |
|
|
Country: (If noted) |
Land Size: |
0.1653 Acres |
||
|
Land Value: 26,640 |
|
|||
|
Sect 31-T11N-R3W Qtr SE |
P B ODOMS SOUTH PENN 3RD
Block
014
Lot
030
|
|||
| Full Legal Description: P B ODOMS SOUTH PENN 3RD 014 030 |
| Photo & Sketch (if available) | Comp Sales (ordered by relevancy) |
|
||||||||||||||||||
|
||||||||||||||||||||
| Value History (*The County Treasurer 405-713-1300 posts & collects actual tax amounts. Contact information HERE) | |||||||||||||
|---|---|---|---|---|---|---|---|---|---|---|---|---|---|
| Year | Market Value | Taxable Mkt Value | Gross Assessed | Exemption | Net Assessed | Millage | Est. Tax | Tax Savings | |||||
|
2025 |
213,000 |
158,896 |
17,478 |
0 |
17,478 |
120.83 |
$2,112 |
$719 |
|||||
|
2024 |
203,000 |
151,330 |
16,645 |
0 |
16,645 |
119.82 |
$1,995 |
$681 |
|||||
|
2023 |
186,000 |
144,124 |
15,852 |
0 |
15,852 |
119.00 |
$1,887 |
$548 |
|||||
|
2022 |
166,500 |
137,261 |
15,097 |
0 |
15,097 |
121.59 |
$1,836 |
$391 |
|||||
|
2021 |
141,500 |
130,725 |
14,379 |
0 |
14,379 |
120.72 |
$1,736 |
$143 |
|||||
| Property Account Status/Adjustments/Exemptions | ||
|---|---|---|
| Account # | Exemption Description | Amount |
|
R143351645 |
5% Capped Account |
0 |
| Property Deed Transaction History (Recorded in the County Clerk's Office) | |||||||
|---|---|---|---|---|---|---|---|
| Date | Type | Book | Page | Price | Grantor | Grantee | |
|
2/8/2006 |
|
Deeds |
$103,000 |
DOSSEY DAVID M & KATHY E |
LOERA ABEL DE |
||
|
7/30/2004 |
|
Deeds |
$100,000 |
HUDSON CAROLYN I |
DOSSEY DAVID M & KATHY E |
||
|
10/30/2002 |
|
Deeds |
$93,500 |
WADDLE TERRY L & ROBYN |
HUDSON CAROLYN I |
||
|
10/1/1986 |
|
Historical |
$0 |
BRISCO LOIS M |
WADDLE TERRY L & ROBYN |
||
|
1/1/1985 |
|
Historical |
$0 |
|
BRISCO LOIS M |
||
| Last Mailed Notice of Value (N.O.V.) Information/History | ||||||||
|---|---|---|---|---|---|---|---|---|
| Year | Date | Market Value | Taxable Market Value | Gross Assessed | Exemption | Net Assessed | ||
|
2026 |
02/06/2026 |
210,000 |
166,840 |
18,351 |
0 |
18,351 |
||
|
2025 |
01/31/2025 |
213,000 |
158,896 |
17,478 |
0 |
17,478 |
||
|
2024 |
01/22/2024 |
203,000 |
151,330 |
16,645 |
0 |
16,645 |
||
|
2023 |
01/23/2023 |
186,000 |
144,124 |
15,852 |
0 |
15,852 |
||
|
2022 |
02/22/2022 |
166,500 |
137,261 |
15,097 |
0 |
15,097 |
||
| Property Building Permit History | |||||||||||
|---|---|---|---|---|---|---|---|---|---|---|---|
| Issued | Permit # | Provided by | Bldg # | Description | Est Construction Cost | Status | |||||
| No Building Permit records returned. | |||||||||||
| Click button on building number to access detailed information: | ||||||
|---|---|---|---|---|---|---|
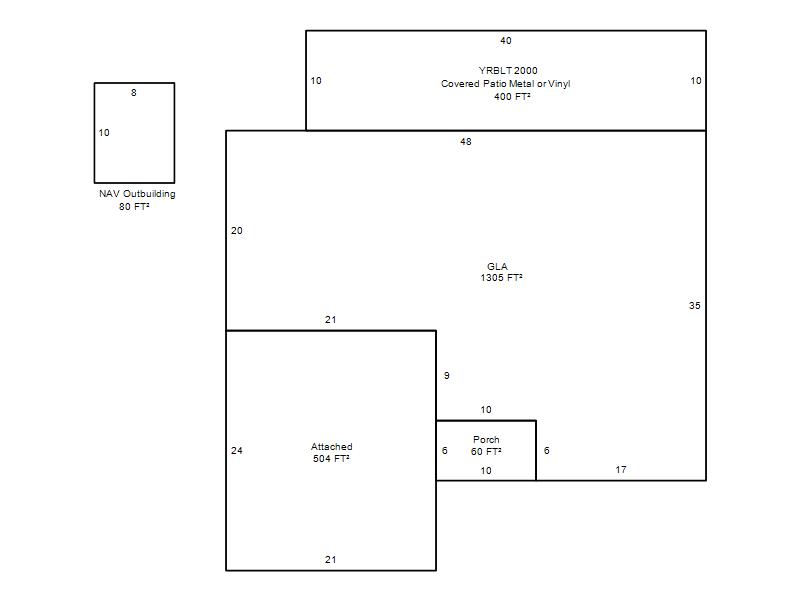
| Bldg # | Vacant/Improved Land | Bldg Description | Year Built | SqFt | # Stories | |
|
1 |
Improved |
Ranch 1 Story |
1964 |
1,305 |
1 Stories |
|