|
|
|
| Larry Stein Oklahoma County Assessor (405) 713-1200 - Public Access System |
|
|
|
|
|
|
| Real Property Display - Screen Produced 3/20/2026 10:16:05 AM | ||||
|---|---|---|---|---|
| Account: R143351755 | Type: Exempt | Location: |
2208 SW 85TH ST |
|
| Building Name/Occupant: |
|
OKLAHOMA CITY |
||
| Owner Name 1: | SOUTHERN HILLS BAPTIST CHURCH |
Parcel PIN#: |
1722-14-335-1755 |
|
| Owner Name 2: | 1/4 section #: |
1722 |
||
| Owner Name 3: | Parent Acct: |
|
||
| Billing Address: | 8601 S PENNSYLVANIA AVE | Tax District: |
|
|
| City, State, Zip | OKLAHOMA CITY, OK 73159-5293 | School System: |
Moore #2 |
|
|
Country: (If noted) |
Land Size: |
0.2238 Acres |
||
|
Land Value: 0 |
|
|||
|
Sect 31-T11N-R3W Qtr SE |
P B ODOMS SOUTH PENN 3RD
Block
015
Lot
010
|
|||
| Full Legal Description: P B ODOMS SOUTH PENN 3RD 015 010 |
| No comparable sales report available. | ||||||||||||||||||||||
|
||||||||||||||||||||||
| Value History (*The County Treasurer 405-713-1300 posts & collects actual tax amounts. Contact information HERE) | |||||||||||||
|---|---|---|---|---|---|---|---|---|---|---|---|---|---|
| Year | Market Value | Taxable Mkt Value | Gross Assessed | Exemption | Net Assessed | Millage | Est. Tax | Tax Savings | |||||
|
2025 |
0 |
0 |
0 |
0 |
0 |
120.83 |
$0 |
$0 |
|||||
|
2024 |
0 |
0 |
0 |
0 |
0 |
119.82 |
$0 |
$0 |
|||||
|
2023 |
0 |
0 |
0 |
0 |
0 |
119.00 |
$0 |
$0 |
|||||
|
2022 |
0 |
0 |
0 |
0 |
0 |
121.59 |
$0 |
$0 |
|||||
|
2021 |
0 |
0 |
0 |
0 |
0 |
120.72 |
$0 |
$0 |
|||||
| Property Account Status/Adjustments/Exemptions | ||
|---|---|---|
| Account # | Exemption Description | Amount |
|
R143351755 |
Exempt |
100 |
|
R143351755 |
5% Capped Account |
0 |
| Property Deed Transaction History (Recorded in the County Clerk's Office) | |||||||
|---|---|---|---|---|---|---|---|
| Date | Type | Book | Page | Price | Grantor | Grantee | |
|
8/30/2000 |
|
Deeds |
$60,000 |
BARBER NORMA GUARDIAN PARKER CLARA E |
SOUTHERN HILLS BAPTIST CHURCH |
||
|
7/11/2000 |
|
Deeds |
$0 |
PARKER ROY M & CLARA ETTA C/O NORMA BARBER |
BARBER NORMA GUARDIAN PARKER CLARA E |
||
|
7/1/1976 |
|
Historical |
$0 |
|
PARKER ROY M & CLARA ETTA |
||
| Last Mailed Notice of Value (N.O.V.) Information/History | ||||||||
|---|---|---|---|---|---|---|---|---|
| Year | Date | Market Value | Taxable Market Value | Gross Assessed | Exemption | Net Assessed | ||
| No Notice of Value N.O.V. records returned. | ||||||||
| Property Building Permit History | |||||||||||
|---|---|---|---|---|---|---|---|---|---|---|---|
| Issued | Permit # | Provided by | Bldg # | Description | Est Construction Cost | Status | |||||
| No Building Permit records returned. | |||||||||||
| Click button on building number to access detailed information: | ||||||
|---|---|---|---|---|---|---|
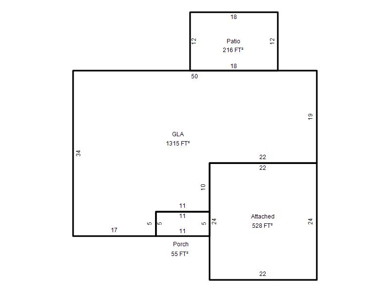
| Bldg # | Vacant/Improved Land | Bldg Description | Year Built | SqFt | # Stories | |
|
1 |
Improved |
Ranch 1 Story |
1965 |
1,315 |
1 Stories |
|