|
|
|
| Larry Stein Oklahoma County Assessor (405) 713-1200 - Public Access System |
|
|
|
|
|
|
| Real Property Display - Screen Produced 3/20/2026 10:15:38 AM | ||||
|---|---|---|---|---|
| Account: R143351765 | Type: Exempt | Location: |
2212 SW 85TH ST |
|
| Building Name/Occupant: |
|
OKLAHOMA CITY |
||
| Owner Name 1: | SOUTHERN HILLS BAPTIST CHURCH |
Parcel PIN#: |
1722-14-335-1765 |
|
| Owner Name 2: | 1/4 section #: |
1722 |
||
| Owner Name 3: | Parent Acct: |
|
||
| Billing Address: | 8601 S PENNSYLVANIA AVE | Tax District: |
|
|
| City, State, Zip | OKLAHOMA CITY, OK 73159-5293 | School System: |
Moore #2 |
|
|
Country: (If noted) |
Land Size: |
0.2307 Acres |
||
|
Land Value: 0 |
|
|||
|
Sect 31-T11N-R3W Qtr SE |
P B ODOMS SOUTH PENN 3RD
Block
015
Lot
011
|
|||
| Full Legal Description: P B ODOMS SOUTH PENN 3RD 015 011 |
| No comparable sales report available. | ||||||||||||||||||||||
|
||||||||||||||||||||||
| Value History (*The County Treasurer 405-713-1300 posts & collects actual tax amounts. Contact information HERE) | |||||||||||||
|---|---|---|---|---|---|---|---|---|---|---|---|---|---|
| Year | Market Value | Taxable Mkt Value | Gross Assessed | Exemption | Net Assessed | Millage | Est. Tax | Tax Savings | |||||
|
2025 |
0 |
0 |
0 |
0 |
0 |
120.83 |
$0 |
$0 |
|||||
|
2024 |
0 |
0 |
0 |
0 |
0 |
119.82 |
$0 |
$0 |
|||||
|
2023 |
0 |
0 |
0 |
0 |
0 |
119.00 |
$0 |
$0 |
|||||
|
2022 |
0 |
0 |
0 |
0 |
0 |
121.59 |
$0 |
$0 |
|||||
|
2021 |
0 |
0 |
0 |
0 |
0 |
120.72 |
$0 |
$0 |
|||||
| Property Account Status/Adjustments/Exemptions | ||
|---|---|---|
| Account # | Exemption Description | Amount |
|
R143351765 |
5% Capped Account |
0 |
|
R143351765 |
Exempt |
100 |
| Property Deed Transaction History (Recorded in the County Clerk's Office) | |||||||
|---|---|---|---|---|---|---|---|
| Date | Type | Book | Page | Price | Grantor | Grantee | |
|
6/3/2016 |
|
Deeds |
$140,000 |
DIROLL JOSEPH G |
SOUTHERN HILLS BAPTIST CHURCH |
||
|
6/18/2000 |
|
Deeds |
$0 |
DIROLL JOSEPH G & KAREN A |
DIROLL JOSEPH G |
||
|
5/4/2000 |
|
Deeds |
$0 |
DIROLL JOSEPH G & KAREN A |
DIROLL JOSEPH G |
||
|
7/22/1992 |
|
Historical |
$60,000 |
GIELOW GREGORY J & ROBYN C |
DIROLL JOSEPH G & KAREN A |
||
|
10/1/1983 |
|
Historical |
$0 |
|
GIELOW GREGORY J & ROBYN C |
||
| Last Mailed Notice of Value (N.O.V.) Information/History | ||||||
|---|---|---|---|---|---|---|
| Year | Date | Market Value | Taxable Market Value | Gross Assessed | Exemption | Net Assessed |
|
2017 |
02/24/2017 |
115,500 |
115,500 |
12,704 |
|
|
|
2016 |
02/26/2016 |
113,000 |
113,000 |
12,429 |
0 |
12,429 |
|
2015 |
03/05/2015 |
112,158 |
111,113 |
12,222 |
0 |
12,222 |
|
2011 |
02/28/2011 |
110,701 |
110,701 |
12,176 |
0 |
12,176 |
| Property Building Permit History | ||||||
|---|---|---|---|---|---|---|
| Issued | Permit # | Provided by | Bldg # | Description | Est Construction Cost | Status |
|
7/31/2009 |
10385016 |
OKLAHOMA CITY |
1 |
Storage Buil |
3,200 |
Inactive |
| Click button on building number to access detailed information: | ||||||
|---|---|---|---|---|---|---|
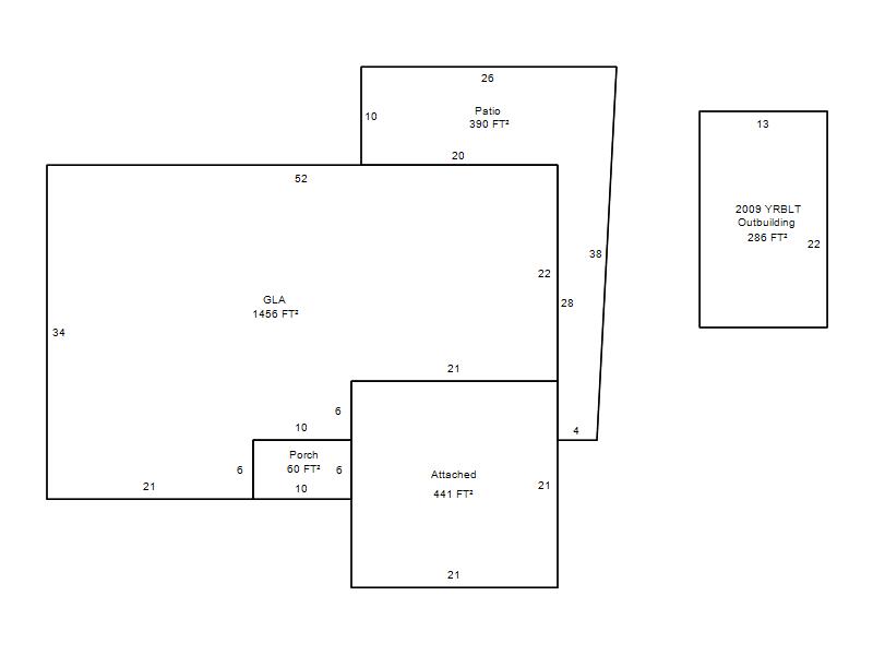
| Bldg # | Vacant/Improved Land | Bldg Description | Year Built | SqFt | # Stories | |
|
1 |
Improved |
Ranch 1 Story |
1965 |
1,456 |
1 Stories |
|