|
|
|
| Larry Stein Oklahoma County Assessor (405) 713-1200 - Public Access System |
|
|
|
|
|
|
| Real Property Display - Screen Produced 3/20/2026 10:15:38 AM | ||||
|---|---|---|---|---|
| Account: R143351845 | Type: Exempt | Location: |
8712 S VICTORIA DR |
|
| Building Name/Occupant: |
|
OKLAHOMA CITY |
||
| Owner Name 1: | SOUTHERN HILLS BAPTIST CHURCH |
Parcel PIN#: |
1722-14-335-1845 |
|
| Owner Name 2: | 1/4 section #: |
1722 |
||
| Owner Name 3: | Parent Acct: |
|
||
| Billing Address: | 8601 S PENNSYLVANIA AVE | Tax District: |
|
|
| City, State, Zip | OKLAHOMA CITY , OK 73159 | School System: |
Moore #2 |
|
|
Country: (If noted) |
Land Size: |
0.2194 Acres |
||
|
Land Value: 0 |
|
|||
|
Sect 31-T11N-R3W Qtr SE |
P B ODOMS SOUTH PENN 3RD
Block
015
Lot
019
|
|||
| Full Legal Description: P B ODOMS SOUTH PENN 3RD 015 019 |
| No comparable sales report available. | ||||||||||||||||||||||
|
||||||||||||||||||||||
| Value History (*The County Treasurer 405-713-1300 posts & collects actual tax amounts. Contact information HERE) | |||||||||||||
|---|---|---|---|---|---|---|---|---|---|---|---|---|---|
| Year | Market Value | Taxable Mkt Value | Gross Assessed | Exemption | Net Assessed | Millage | Est. Tax | Tax Savings | |||||
|
2025 |
0 |
0 |
0 |
0 |
0 |
120.83 |
$0 |
$0 |
|||||
|
2024 |
0 |
0 |
0 |
0 |
0 |
119.82 |
$0 |
$0 |
|||||
|
2023 |
0 |
0 |
0 |
0 |
0 |
119.00 |
$0 |
$0 |
|||||
|
2022 |
0 |
0 |
0 |
0 |
0 |
121.59 |
$0 |
$0 |
|||||
|
2021 |
0 |
0 |
0 |
0 |
0 |
120.72 |
$0 |
$0 |
|||||
| Property Account Status/Adjustments/Exemptions | ||
|---|---|---|
| Account # | Exemption Description | Amount |
|
R143351845 |
Exempt |
100 |
|
R143351845 |
5% Capped Account |
0 |
| Property Deed Transaction History (Recorded in the County Clerk's Office) | ||||||||||
|---|---|---|---|---|---|---|---|---|---|---|
| Date | Type | Book | Page | Price | Grantor | Grantee | ||||
|
11/13/2017 |
|
Deeds |
$113,000 |
ADDISON AARON M & KARA E |
SOUTHERN HILLS BAPTIST CHURCH |
|||||
|
11/27/2012 |
|
Deeds |
$97,500 |
CONOVER JAIME N & RORY T LYKINS SHIRLEY F |
ADDISON AARON M & KARA E |
|||||
|
1/10/2011 |
|
Deeds |
$0 |
BUECKER JAIME N LYKINS SHIRLEY F |
CONOVER JAIME N & RORY T LYKINS SHIRLEY F |
|||||
|
4/24/2006 |
|
Deeds |
$90,000 |
FIELDS BETTY JO |
BUECKER JAIME N |
|||||
|
4/24/2006 |
|
Deeds |
$0 |
BUECKER JAIME N |
BUECKER JAIME N LYKINS SHIRLEY F |
|||||
| Last Mailed Notice of Value (N.O.V.) Information/History | ||||||
|---|---|---|---|---|---|---|
| Year | Date | Market Value | Taxable Market Value | Gross Assessed | Exemption | Net Assessed |
|
2020 |
02/21/2020 |
107,500 |
107,500 |
11,825 |
0 |
11,825 |
|
2019 |
02/26/2019 |
109,500 |
106,575 |
11,724 |
0 |
11,724 |
|
2018 |
04/09/2018 |
101,500 |
101,500 |
11,165 |
0 |
11,165 |
|
2017 |
02/24/2017 |
100,500 |
99,909 |
|
|
|
|
2013 |
03/01/2013 |
97,265 |
97,265 |
10,698 |
1,000 |
9,698 |
| Property Building Permit History | |||||||||||
|---|---|---|---|---|---|---|---|---|---|---|---|
| Issued | Permit # | Provided by | Bldg # | Description | Est Construction Cost | Status | |||||
| No Building Permit records returned. | |||||||||||
| Click button on building number to access detailed information: | ||||||
|---|---|---|---|---|---|---|
| Bldg # | Vacant/Improved Land | Bldg Description | Year Built | SqFt | # Stories | |
|
1 |
Improved |
Ranch 1 Story |
1963 |
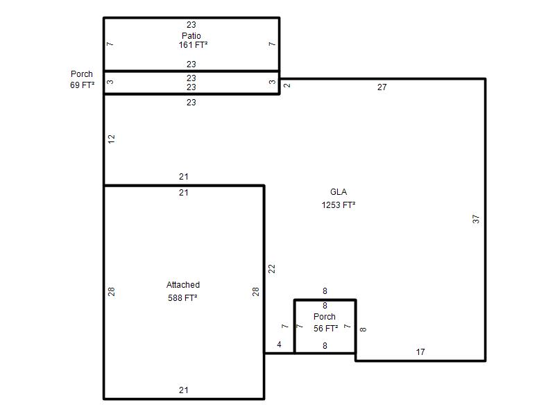
1,253 |
1 Stories |
|