|
|
|
| Larry Stein Oklahoma County Assessor (405) 713-1200 - Public Access System |
|
|
|
|
|
|
| Real Property Display - Screen Produced 3/20/2026 10:16:21 AM | ||||
|---|---|---|---|---|
| Account: R143352015 | Type: Residential | Location: |
8913 S VICTORIA DR |
|
| Building Name/Occupant: |
|
OKLAHOMA CITY |
||
| Owner Name 1: | LEWIS BRENDA S |
Parcel PIN#: |
1722-14-335-2015 |
|
| Owner Name 2: | 1/4 section #: |
1722 |
||
| Owner Name 3: | Parent Acct: |
|
||
| Billing Address: | 8913 S VICTORIA DR | Tax District: |
|
|
| City, State, Zip | OKLAHOMA CITY, OK 73159-6111 | School System: |
Moore #2 |
|
|
Country: (If noted) |
Land Size: |
0.2439 Acres |
||
|
Land Value: 39,309 |
|
|||
|
Sect 31-T11N-R3W Qtr SE |
P B ODOMS SOUTH PENN 3RD
Block
016
Lot
001
|
|||
| Full Legal Description: P B ODOMS SOUTH PENN 3RD 016 001 |
| Photo & Sketch (if available) | Comp Sales (ordered by relevancy) |
|
||||||||||||||||||
|
||||||||||||||||||||
| Value History (*The County Treasurer 405-713-1300 posts & collects actual tax amounts. Contact information HERE) | |||||||||||||
|---|---|---|---|---|---|---|---|---|---|---|---|---|---|
| Year | Market Value | Taxable Mkt Value | Gross Assessed | Exemption | Net Assessed | Millage | Est. Tax | Tax Savings | |||||
|
2025 |
193,000 |
125,444 |
13,798 |
2,000 |
11,798 |
120.83 |
$1,426 |
$1,140 |
|||||
|
2024 |
183,500 |
121,791 |
13,396 |
1,000 |
12,396 |
119.82 |
$1,485 |
$933 |
|||||
|
2023 |
164,500 |
118,244 |
13,006 |
1,000 |
12,006 |
119.00 |
$1,429 |
$724 |
|||||
|
2022 |
146,500 |
114,800 |
12,627 |
1,000 |
11,627 |
121.59 |
$1,414 |
$546 |
|||||
|
2021 |
124,000 |
111,457 |
12,260 |
1,000 |
11,260 |
120.72 |
$1,359 |
$287 |
|||||
| Property Account Status/Adjustments/Exemptions | ||
|---|---|---|
| Account # | Exemption Description | Amount |
|
R143352015 |
Freeze Senior Valuation |
0 |
|
R143352015 |
Senior Additional Homestead |
1,000 |
|
R143352015 |
3% Cap Homestead |
0 |
|
R143352015 |
Homestead |
1,000 |
| Property Deed Transaction History (Recorded in the County Clerk's Office) | ||||||||||
|---|---|---|---|---|---|---|---|---|---|---|
| Date | Type | Book | Page | Price | Grantor | Grantee | ||||
|
3/12/2025 |
|
Deeds |
$0 |
STONE BRENDA S |
LEWIS BRENDA S |
|||||
|
10/3/2024 |
|
Deeds |
$0 |
STONE BRENDA S |
STONE BRENDA S |
|||||
|
9/4/2019 |
|
Deeds |
$0 |
GUICE BRENDA S |
STONE BRENDA S |
|||||
|
8/7/2019 |
|
Deeds |
$0 |
GUICE BILLY Y JR & BRENDA S |
GUICE BRENDA S |
|||||
|
8/7/2019 |
|
Deeds |
$0 |
GUICE BRENDA S |
GUICE BRENDA S |
|||||
| Last Mailed Notice of Value (N.O.V.) Information/History | ||||||||
|---|---|---|---|---|---|---|---|---|
| Year | Date | Market Value | Taxable Market Value | Gross Assessed | Exemption | Net Assessed | ||
|
2025 |
01/31/2025 |
193,000 |
125,444 |
13,798 |
1,000 |
12,798 |
||
|
2025 |
03/28/2025 |
193,000 |
125,444 |
13,798 |
2,000 |
11,798 |
||
|
2024 |
01/22/2024 |
183,500 |
121,791 |
13,396 |
1,000 |
12,396 |
||
|
2023 |
01/23/2023 |
164,500 |
118,244 |
13,006 |
1,000 |
12,006 |
||
|
2022 |
02/22/2022 |
146,500 |
114,800 |
12,627 |
1,000 |
11,627 |
||
| Property Building Permit History | ||||||
|---|---|---|---|---|---|---|
| Issued | Permit # | Provided by | Bldg # | Description | Est Construction Cost | Status |
|
3/11/2016 |
10483785 |
OKLAHOMA CITY |
1 |
Swimming Pool |
5,600 |
Inactive |
| Click button on building number to access detailed information: | ||||||
|---|---|---|---|---|---|---|
| Bldg # | Vacant/Improved Land | Bldg Description | Year Built | SqFt | # Stories | |
|
1 |
Improved |
Ranch 1 Story |
1977 |
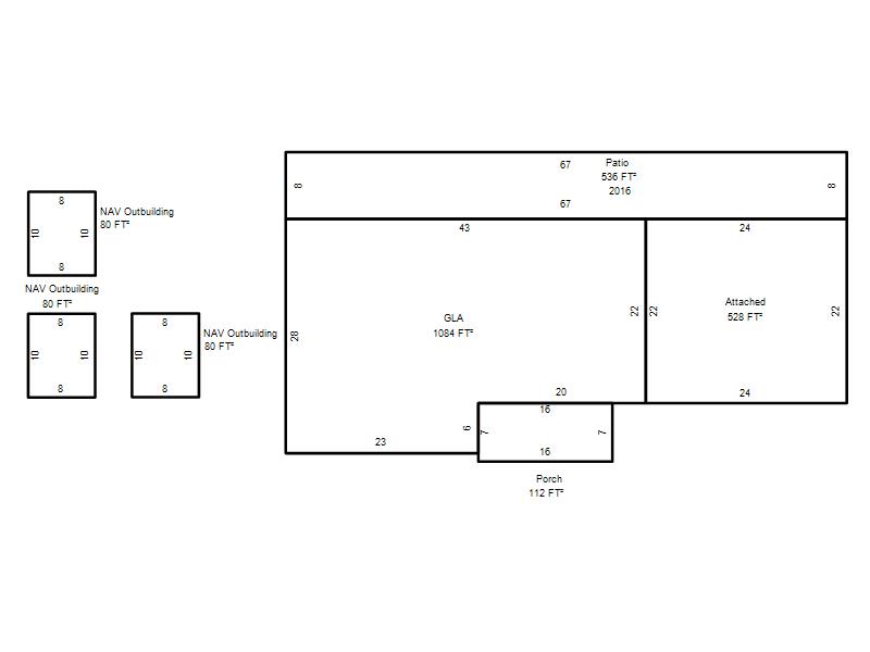
1,084 |
1 Stories |
|