|
|
|
| Larry Stein Oklahoma County Assessor (405) 713-1200 - Public Access System |
|
|
|
|
|
|
| Real Property Display - Screen Produced 3/20/2026 10:15:38 AM | ||||
|---|---|---|---|---|
| Account: R143352065 | Type: Residential | Location: |
8809 S VICTORIA DR |
|
| Building Name/Occupant: |
|
OKLAHOMA CITY |
||
| Owner Name 1: | HARRIS RANDY L & BEVERLY A |
Parcel PIN#: |
1722-14-335-2065 |
|
| Owner Name 2: | 1/4 section #: |
1722 |
||
| Owner Name 3: | Parent Acct: |
|
||
| Billing Address: | 8809 S VICTORIA DR | Tax District: |
|
|
| City, State, Zip | OKLAHOMA CITY, OK 73159-6109 | School System: |
Moore #2 |
|
|
Country: (If noted) |
Land Size: |
0.1570 Acres |
||
|
Land Value: 25,308 |
|
|||
|
Sect 31-T11N-R3W Qtr SE |
P B ODOMS SOUTH PENN 3RD
Block
016
Lot
006
|
|||
| Full Legal Description: P B ODOMS SOUTH PENN 3RD 016 006 |
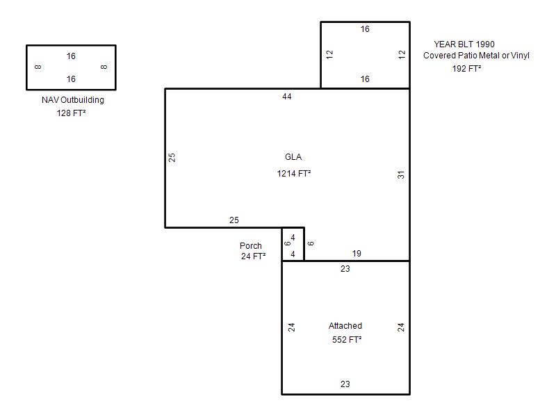
| Photo & Sketch (if available) | Comp Sales (ordered by relevancy) |
|
||||||||||||||||||
|
||||||||||||||||||||
| Value History (*The County Treasurer 405-713-1300 posts & collects actual tax amounts. Contact information HERE) | |||||||||||||
|---|---|---|---|---|---|---|---|---|---|---|---|---|---|
| Year | Market Value | Taxable Mkt Value | Gross Assessed | Exemption | Net Assessed | Millage | Est. Tax | Tax Savings | |||||
|
2025 |
164,500 |
118,484 |
13,032 |
0 |
13,032 |
120.83 |
$1,575 |
$612 |
|||||
|
2024 |
153,500 |
112,842 |
12,412 |
0 |
12,412 |
119.82 |
$1,487 |
$536 |
|||||
|
2023 |
143,000 |
107,469 |
11,820 |
0 |
11,820 |
119.00 |
$1,407 |
$465 |
|||||
|
2022 |
130,000 |
102,352 |
11,258 |
0 |
11,258 |
121.59 |
$1,369 |
$370 |
|||||
|
2021 |
108,500 |
97,479 |
10,722 |
0 |
10,722 |
120.72 |
$1,294 |
$146 |
|||||
| Property Account Status/Adjustments/Exemptions | ||
|---|---|---|
| Account # | Exemption Description | Amount |
|
R143352065 |
5% Capped Account |
0 |
| Property Deed Transaction History (Recorded in the County Clerk's Office) | |||||||
|---|---|---|---|---|---|---|---|
| Date | Type | Book | Page | Price | Grantor | Grantee | |
|
11/15/2009 |
|
Deeds |
$0 |
HARRIS WELDON D HARRIS ROY D |
HARRIS ROY D HARRIS RANDY L |
||
|
11/15/2009 |
|
Hmstd Off & |
$0 |
HARRIS ROY D HARRIS RANDY L |
HARRIS RANDY L & BEVERLY A |
||
|
11/17/2003 |
|
Deeds |
$0 |
HARRIS WELDON |
HARRIS WELDON ETAL |
||
|
2/25/2000 |
|
Deeds |
$0 |
HARRIS WELDON D & JIMMIE K |
.HARRIS WELDON D |
||
|
11/11/1911 |
|
Historical |
$0 |
|
HARRIS WELDON D & JIMMIE K |
||
| Last Mailed Notice of Value (N.O.V.) Information/History | ||||||||
|---|---|---|---|---|---|---|---|---|
| Year | Date | Market Value | Taxable Market Value | Gross Assessed | Exemption | Net Assessed | ||
|
2026 |
02/06/2026 |
162,000 |
124,408 |
13,684 |
0 |
13,684 |
||
|
2025 |
01/31/2025 |
164,500 |
118,484 |
13,032 |
0 |
13,032 |
||
|
2024 |
01/22/2024 |
153,500 |
112,842 |
12,412 |
0 |
12,412 |
||
|
2023 |
01/23/2023 |
143,000 |
107,469 |
11,820 |
0 |
11,820 |
||
|
2022 |
02/22/2022 |
130,000 |
102,352 |
11,258 |
0 |
11,258 |
||
| Property Building Permit History | |||||||||||
|---|---|---|---|---|---|---|---|---|---|---|---|
| Issued | Permit # | Provided by | Bldg # | Description | Est Construction Cost | Status | |||||
| No Building Permit records returned. | |||||||||||
| Click button on building number to access detailed information: | ||||||
|---|---|---|---|---|---|---|
| Bldg # | Vacant/Improved Land | Bldg Description | Year Built | SqFt | # Stories | |
|
1 |
Improved |
Ranch 1 Story |
1968 |
1,214 |
1 Stories |
|