|
|
|
| Larry Stein Oklahoma County Assessor (405) 713-1200 - Public Access System |
|
|
|
|
|
|
| Real Property Display - Screen Produced 3/22/2026 6:14:02 AM | ||||
|---|---|---|---|---|
| Account: R143352155 | Type: Residential | Location: |
8601 S VICTORIA DR |
|
| Building Name/Occupant: |
|
OKLAHOMA CITY |
||
| Owner Name 1: | DUKES JAN B |
Parcel PIN#: |
1722-14-335-2155 |
|
| Owner Name 2: | DUKES CALVERT PAT | 1/4 section #: |
1722 |
|
| Owner Name 3: | Parent Acct: |
|
||
| Billing Address: | 2912 NE 120TH ST | Tax District: |
|
|
| City, State, Zip | OKLAHOMA CITY, OK 73131 | School System: |
Moore #2 |
|
|
Country: (If noted) |
Land Size: |
0.1653 Acres |
||
|
Land Value: 26,640 |
|
|||
|
Sect 31-T11N-R3W Qtr SE |
P B ODOMS SOUTH PENN 3RD
Block
016
Lot
015
|
|||
| Full Legal Description: P B ODOMS SOUTH PENN 3RD 016 015 |
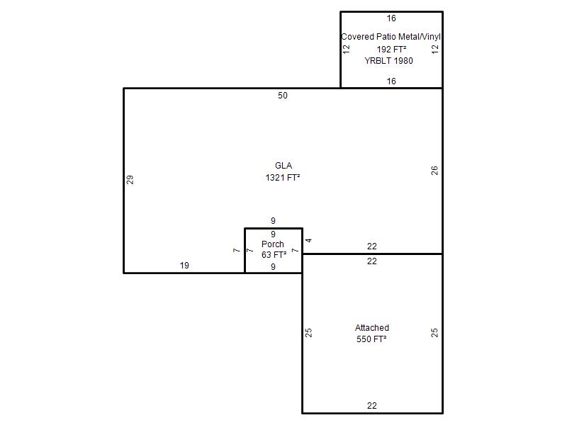
| Photo & Sketch (if available) | Comp Sales (ordered by relevancy) |
|
||||||||||||||||||
|
||||||||||||||||||||
| Value History (*The County Treasurer 405-713-1300 posts & collects actual tax amounts. Contact information HERE) | |||||||||||||
|---|---|---|---|---|---|---|---|---|---|---|---|---|---|
| Year | Market Value | Taxable Mkt Value | Gross Assessed | Exemption | Net Assessed | Millage | Est. Tax | Tax Savings | |||||
|
2025 |
172,500 |
131,454 |
14,459 |
0 |
14,459 |
120.83 |
$1,747 |
$546 |
|||||
|
2024 |
163,000 |
125,195 |
13,770 |
0 |
13,770 |
119.82 |
$1,650 |
$498 |
|||||
|
2023 |
149,000 |
119,234 |
13,115 |
0 |
13,115 |
119.00 |
$1,561 |
$390 |
|||||
|
2022 |
134,000 |
113,557 |
12,490 |
0 |
12,490 |
121.59 |
$1,519 |
$273 |
|||||
|
2021 |
116,000 |
108,150 |
11,896 |
0 |
11,896 |
120.72 |
$1,436 |
$104 |
|||||
| Property Account Status/Adjustments/Exemptions | ||
|---|---|---|
| Account # | Exemption Description | Amount |
|
R143352155 |
5% Capped Account |
0 |
| Property Deed Transaction History (Recorded in the County Clerk's Office) | |||||||
|---|---|---|---|---|---|---|---|
| Date | Type | Book | Page | Price | Grantor | Grantee | |
|
3/10/2020 |
|
Deeds |
$0 |
DUKES JAN B |
DUKES JAN B |
||
|
1/17/1989 |
|
Historical |
$0 |
CHAMBERS CHARLES CLINTON |
DUKES JAN B |
||
|
9/1/1985 |
|
Historical |
$68,500 |
|
CHAMBERS CHARLES CLINTON |
||
| Last Mailed Notice of Value (N.O.V.) Information/History | ||||||||
|---|---|---|---|---|---|---|---|---|
| Year | Date | Market Value | Taxable Market Value | Gross Assessed | Exemption | Net Assessed | ||
|
2026 |
02/06/2026 |
169,500 |
138,026 |
15,181 |
0 |
15,181 |
||
|
2025 |
01/31/2025 |
172,500 |
131,454 |
14,459 |
0 |
14,459 |
||
|
2024 |
01/22/2024 |
163,000 |
125,195 |
13,770 |
0 |
13,770 |
||
|
2023 |
01/23/2023 |
149,000 |
119,234 |
13,115 |
0 |
13,115 |
||
|
2022 |
02/22/2022 |
134,000 |
113,557 |
12,490 |
0 |
12,490 |
||
| Property Building Permit History | |||||||||||
|---|---|---|---|---|---|---|---|---|---|---|---|
| Issued | Permit # | Provided by | Bldg # | Description | Est Construction Cost | Status | |||||
| No Building Permit records returned. | |||||||||||
| Click button on building number to access detailed information: | ||||||
|---|---|---|---|---|---|---|
| Bldg # | Vacant/Improved Land | Bldg Description | Year Built | SqFt | # Stories | |
|
1 |
Improved |
Ranch 1 Story |
1964 |
1,321 |
1 Stories |
|