|
|
|
| Larry Stein Oklahoma County Assessor (405) 713-1200 - Public Access System |
|
|
|
|
|
|
| Real Property Display - Screen Produced 3/22/2026 6:14:01 AM | ||||
|---|---|---|---|---|
| Account: R143352225 | Type: Residential | Location: |
8708 S YOUNGS BLVD |
|
| Building Name/Occupant: |
|
OKLAHOMA CITY |
||
| Owner Name 1: | WILBURN DAIVD R |
Parcel PIN#: |
1722-14-335-2225 |
|
| Owner Name 2: | 1/4 section #: |
1722 |
||
| Owner Name 3: | Parent Acct: |
|
||
| Billing Address: | 8708 S YOUNGS BLVD | Tax District: |
|
|
| City, State, Zip | OKLAHOMA CITY, OK 73159-6133 | School System: |
Moore #2 |
|
|
Country: (If noted) |
Land Size: |
0.1653 Acres |
||
|
Land Value: 26,640 |
|
|||
|
Sect 31-T11N-R3W Qtr SE |
P B ODOMS SOUTH PENN 3RD
Block
016
Lot
022
|
|||
| Full Legal Description: P B ODOMS SOUTH PENN 3RD 016 022 |
| Photo & Sketch (if available) | Comp Sales (ordered by relevancy) |
|
||||||||||||||||||
|
||||||||||||||||||||
| Value History (*The County Treasurer 405-713-1300 posts & collects actual tax amounts. Contact information HERE) | |||||||||||||
|---|---|---|---|---|---|---|---|---|---|---|---|---|---|
| Year | Market Value | Taxable Mkt Value | Gross Assessed | Exemption | Net Assessed | Millage | Est. Tax | Tax Savings | |||||
|
2025 |
196,500 |
148,047 |
16,284 |
0 |
16,284 |
120.83 |
$1,968 |
$644 |
|||||
|
2024 |
187,500 |
140,998 |
15,509 |
0 |
15,509 |
119.82 |
$1,858 |
$613 |
|||||
|
2023 |
168,500 |
134,284 |
14,770 |
0 |
14,770 |
119.00 |
$1,758 |
$448 |
|||||
|
2022 |
154,000 |
127,890 |
14,067 |
0 |
14,067 |
121.59 |
$1,711 |
$349 |
|||||
|
2021 |
130,500 |
121,800 |
13,398 |
0 |
13,398 |
120.72 |
$1,617 |
$116 |
|||||
| Property Account Status/Adjustments/Exemptions | ||
|---|---|---|
| Account # | Exemption Description | Amount |
|
R143352225 |
5% Capped Account |
0 |
| Property Deed Transaction History (Recorded in the County Clerk's Office) | |||||||
|---|---|---|---|---|---|---|---|
| Date | Type | Book | Page | Price | Grantor | Grantee | |
|
11/25/2009 |
|
Deeds |
$115,000 |
SMITH DAVID & CHERYL |
WILBURN DAIVD R |
||
|
2/16/1996 |
|
Historical |
$64,000 |
DRAPER THOMAS M TRS |
SMITH DAVID & CHERYL |
||
|
11/14/1994 |
|
Historical |
$0 |
DRAPER THOMAS M SR |
DRAPER THOMAS M TRS |
||
|
8/30/1989 |
|
Historical |
$0 |
DRAPER THOMAS M & RETA G |
DRAPER THOMAS M SR |
||
|
11/11/1911 |
|
Historical |
$0 |
|
DRAPER THOMAS M & RETA G |
||
| Last Mailed Notice of Value (N.O.V.) Information/History | ||||||||
|---|---|---|---|---|---|---|---|---|
| Year | Date | Market Value | Taxable Market Value | Gross Assessed | Exemption | Net Assessed | ||
|
2026 |
02/06/2026 |
190,000 |
155,449 |
17,099 |
0 |
17,099 |
||
|
2025 |
01/31/2025 |
196,500 |
148,047 |
16,284 |
0 |
16,284 |
||
|
2024 |
01/22/2024 |
187,500 |
140,998 |
15,509 |
0 |
15,509 |
||
|
2023 |
01/23/2023 |
168,500 |
134,284 |
14,770 |
0 |
14,770 |
||
|
2022 |
02/22/2022 |
154,000 |
127,890 |
14,067 |
0 |
14,067 |
||
| Property Building Permit History | |||||||||||
|---|---|---|---|---|---|---|---|---|---|---|---|
| Issued | Permit # | Provided by | Bldg # | Description | Est Construction Cost | Status | |||||
| No Building Permit records returned. | |||||||||||
| Click button on building number to access detailed information: | ||||||
|---|---|---|---|---|---|---|
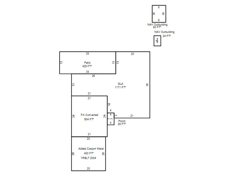
| Bldg # | Vacant/Improved Land | Bldg Description | Year Built | SqFt | # Stories | |
|
1 |
Improved |
Ranch 1 Story |
1962 |
1,171 |
1 Stories |
|