|
|
|
| Larry Stein Oklahoma County Assessor (405) 713-1200 - Public Access System |
|
|
|
|
|
|
| Real Property Display - Screen Produced 3/22/2026 6:14:02 AM | ||||
|---|---|---|---|---|
| Account: R143352275 | Type: Residential | Location: |
8812 S YOUNGS BLVD |
|
| Building Name/Occupant: |
|
OKLAHOMA CITY |
||
| Owner Name 1: | PLOURDE AARON JON |
Parcel PIN#: |
1722-14-335-2275 |
|
| Owner Name 2: | 1/4 section #: |
1722 |
||
| Owner Name 3: | Parent Acct: |
|
||
| Billing Address: | 8812 S YOUNGS BLVD | Tax District: |
|
|
| City, State, Zip | OKLAHOMA CITY, OK 73159-6135 | School System: |
Moore #2 |
|
|
Country: (If noted) |
Land Size: |
0.1924 Acres |
||
|
Land Value: 31,013 |
|
|||
|
Sect 31-T11N-R3W Qtr SE |
P B ODOMS SOUTH PENN 3RD
Block
016
Lot
027
|
|||
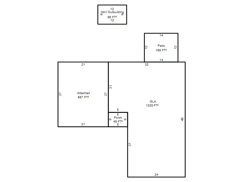
| Full Legal Description: P B ODOMS SOUTH PENN 3RD 016 027 |
| Photo & Sketch (if available) | Comp Sales (ordered by relevancy) |
|
||||||||||||||||||
|
||||||||||||||||||||
| Value History (*The County Treasurer 405-713-1300 posts & collects actual tax amounts. Contact information HERE) | |||||||||||||
|---|---|---|---|---|---|---|---|---|---|---|---|---|---|
| Year | Market Value | Taxable Mkt Value | Gross Assessed | Exemption | Net Assessed | Millage | Est. Tax | Tax Savings | |||||
|
2025 |
183,500 |
142,942 |
15,722 |
0 |
15,722 |
120.83 |
$1,900 |
$539 |
|||||
|
2024 |
174,000 |
136,136 |
14,974 |
0 |
14,974 |
119.82 |
$1,794 |
$499 |
|||||
|
2023 |
159,500 |
129,654 |
14,261 |
0 |
14,261 |
119.00 |
$1,697 |
$391 |
|||||
|
2022 |
143,500 |
123,480 |
13,582 |
0 |
13,582 |
121.59 |
$1,652 |
$268 |
|||||
|
2021 |
125,000 |
117,600 |
12,936 |
0 |
12,936 |
120.72 |
$1,562 |
$98 |
|||||
| Property Account Status/Adjustments/Exemptions | ||
|---|---|---|
| Account # | Exemption Description | Amount |
|
R143352275 |
5% Capped Account |
0 |
| Property Deed Transaction History (Recorded in the County Clerk's Office) | |||||||
|---|---|---|---|---|---|---|---|
| Date | Type | Book | Page | Price | Grantor | Grantee | |
|
12/14/2012 |
|
Deeds |
$104,000 |
SWANEGAN SHERRI K |
PLOURDE AARON JON |
||
|
11/26/1997 |
|
Historical |
$0 |
SWANEGAN KEVIN D & SHERRI K |
SWANEGAN SHERRI K |
||
|
7/11/1990 |
|
Historical |
$44,500 |
GUILES J COLLEEN |
SWANEGAN KEVIN D & SHERRI K |
||
|
3/20/1987 |
|
Historical |
$0 |
CHANDLER LON R & OLIVE |
GUILES J COLLEEN |
||
|
4/1/1981 |
|
Historical |
$0 |
|
CHANDLER LON R & OLIVE |
||
| Last Mailed Notice of Value (N.O.V.) Information/History | ||||||||
|---|---|---|---|---|---|---|---|---|
| Year | Date | Market Value | Taxable Market Value | Gross Assessed | Exemption | Net Assessed | ||
|
2026 |
02/06/2026 |
180,500 |
150,089 |
16,509 |
0 |
16,509 |
||
|
2025 |
01/31/2025 |
183,500 |
142,942 |
15,722 |
0 |
15,722 |
||
|
2024 |
01/22/2024 |
174,000 |
136,136 |
14,974 |
0 |
14,974 |
||
|
2023 |
01/23/2023 |
159,500 |
129,654 |
14,261 |
0 |
14,261 |
||
|
2022 |
02/22/2022 |
143,500 |
123,480 |
13,582 |
0 |
13,582 |
||
| Property Building Permit History | |||||||||||
|---|---|---|---|---|---|---|---|---|---|---|---|
| Issued | Permit # | Provided by | Bldg # | Description | Est Construction Cost | Status | |||||
| No Building Permit records returned. | |||||||||||
| Click button on building number to access detailed information: | ||||||
|---|---|---|---|---|---|---|
| Bldg # | Vacant/Improved Land | Bldg Description | Year Built | SqFt | # Stories | |
|
1 |
Improved |
Ranch 1 Story |
1963 |
1,320 |
1 Stories |
|