|
|
|
| Larry Stein Oklahoma County Assessor (405) 713-1200 - Public Access System |
|
|
|
|
|
|
| Real Property Display - Screen Produced 3/22/2026 6:14:02 AM | ||||
|---|---|---|---|---|
| Account: R143352285 | Type: Residential | Location: |
8816 S YOUNGS BLVD |
|
| Building Name/Occupant: |
|
OKLAHOMA CITY |
||
| Owner Name 1: | WILCO PROPERTIES INC |
Parcel PIN#: |
1722-14-335-2285 |
|
| Owner Name 2: | 1/4 section #: |
1722 |
||
| Owner Name 3: | Parent Acct: |
|
||
| Billing Address: | 11717 CEDAR VALLEY DR | Tax District: |
|
|
| City, State, Zip | OKLAHOMA CITY, OK 73170 | School System: |
Moore #2 |
|
|
Country: (If noted) |
Land Size: |
0.2037 Acres |
||
|
Land Value: 32,838 |
|
|||
|
Sect 31-T11N-R3W Qtr SE |
P B ODOMS SOUTH PENN 3RD
Block
016
Lot
028
|
|||
| Full Legal Description: P B ODOMS SOUTH PENN 3RD 016 028 |
| Photo & Sketch (if available) | Comp Sales (ordered by relevancy) |
|
||||||||||||||||||
|
||||||||||||||||||||
| Value History (*The County Treasurer 405-713-1300 posts & collects actual tax amounts. Contact information HERE) | |||||||||||||
|---|---|---|---|---|---|---|---|---|---|---|---|---|---|
| Year | Market Value | Taxable Mkt Value | Gross Assessed | Exemption | Net Assessed | Millage | Est. Tax | Tax Savings | |||||
|
2025 |
173,500 |
165,375 |
18,191 |
0 |
18,191 |
120.83 |
$2,198 |
$108 |
|||||
|
2024 |
164,000 |
157,500 |
17,325 |
0 |
17,325 |
119.82 |
$2,076 |
$86 |
|||||
|
2023 |
150,000 |
150,000 |
16,500 |
0 |
16,500 |
119.00 |
$1,964 |
$0 |
|||||
|
2022 |
136,000 |
116,313 |
12,794 |
0 |
12,794 |
121.59 |
$1,556 |
$263 |
|||||
|
2021 |
117,500 |
110,775 |
12,185 |
0 |
12,185 |
120.72 |
$1,471 |
$89 |
|||||
| Property Account Status/Adjustments/Exemptions | ||
|---|---|---|
| Account # | Exemption Description | Amount |
|
R143352285 |
5% Capped Account |
0 |
| Property Deed Transaction History (Recorded in the County Clerk's Office) | ||||||||||
|---|---|---|---|---|---|---|---|---|---|---|
| Date | Type | Book | Page | Price | Grantor | Grantee | ||||
|
3/7/2022 |
|
Deeds |
$110,000 |
BEULYN CATHERINE |
WILCO PROPERTIES INC |
|||||
|
11/21/2017 |
|
Hmstd Off & |
$0 |
RENEGAR JOSEPH A & RUTH E |
RENEGAR JOSEPH A ETAL |
|||||
|
11/17/2017 |
|
Deeds |
$100,000 |
RENEGAR JOSEPH A ETAL |
BEULYN CATHERINE |
|||||
|
5/31/2001 |
|
Deeds |
$80,000 |
SIMPSON SUSAN CAROL REV LIV TRUST |
RENEGAR JOSEPH A & RUTH E |
|||||
|
4/20/1999 |
|
Historical |
$0 |
SIMPSON SUSAN C |
SIMPSON SUSAN CAROL REV LIV TRUST |
|||||
| Last Mailed Notice of Value (N.O.V.) Information/History | ||||||||
|---|---|---|---|---|---|---|---|---|
| Year | Date | Market Value | Taxable Market Value | Gross Assessed | Exemption | Net Assessed | ||
|
2026 |
02/06/2026 |
170,500 |
170,500 |
18,755 |
0 |
18,755 |
||
|
2025 |
01/31/2025 |
173,500 |
165,375 |
18,191 |
0 |
18,191 |
||
|
2024 |
01/22/2024 |
164,000 |
157,500 |
17,325 |
0 |
17,325 |
||
|
2023 |
01/23/2023 |
150,000 |
150,000 |
16,500 |
0 |
16,500 |
||
|
2022 |
02/22/2022 |
136,000 |
116,313 |
12,794 |
0 |
12,794 |
||
| Property Building Permit History | |||||||||||
|---|---|---|---|---|---|---|---|---|---|---|---|
| Issued | Permit # | Provided by | Bldg # | Description | Est Construction Cost | Status | |||||
| No Building Permit records returned. | |||||||||||
| Click button on building number to access detailed information: | ||||||
|---|---|---|---|---|---|---|
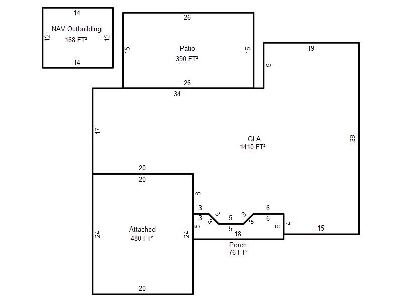
| Bldg # | Vacant/Improved Land | Bldg Description | Year Built | SqFt | # Stories | |
|
1 |
Improved |
Ranch 1 Story |
1962 |
1,410 |
1 Stories |
|