|
|
|
| Larry Stein Oklahoma County Assessor (405) 713-1200 - Public Access System |
|
|
|
|
|
|
| Real Property Display - Screen Produced 3/16/2026 7:23:12 PM | ||||
|---|---|---|---|---|
| Account: R140251030 | Type: Residential | Location: |
8512 S ROSS AVE |
|
| Building Name/Occupant: |
|
OKLAHOMA CITY |
||
| Owner Name 1: | CRENSHAW AGNES M |
Parcel PIN#: |
1723-14-025-1030 |
|
| Owner Name 2: | CRENSHAW LENETTE DERRICK | 1/4 section #: |
1723 |
|
| Owner Name 3: | Parent Acct: |
|
||
| Billing Address: | 8512 S ROSS AVE | Tax District: |
|
|
| City, State, Zip | OKLAHOMA CITY, OK 73159 | School System: |
Moore #2 |
|
|
Country: (If noted) |
Land Size: |
0.1835 Acres |
||
|
Land Value: 29,582 |
|
|||
|
Sect 31-T11N-R3W Qtr SW |
L L LYONS KROEGER HT SEC 3
Block
010
Lot
004
|
|||
| Full Legal Description: L L LYONS KROEGER HT SEC 3 010 004 |
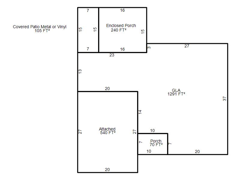
| Photo & Sketch (if available) | Comp Sales (ordered by relevancy) |
|
||||||||||||||||||
|
||||||||||||||||||||
| Value History (*The County Treasurer 405-713-1300 posts & collects actual tax amounts. Contact information HERE) | |||||||||||||
|---|---|---|---|---|---|---|---|---|---|---|---|---|---|
| Year | Market Value | Taxable Mkt Value | Gross Assessed | Exemption | Net Assessed | Millage | Est. Tax | Tax Savings | |||||
|
2025 |
184,000 |
181,650 |
19,981 |
0 |
19,981 |
120.83 |
$2,414 |
$31 |
|||||
|
2024 |
173,000 |
173,000 |
19,030 |
0 |
19,030 |
119.82 |
$2,280 |
$0 |
|||||
|
2023 |
181,000 |
181,000 |
19,910 |
0 |
19,910 |
119.00 |
$2,369 |
$0 |
|||||
|
2022 |
140,500 |
120,172 |
13,218 |
0 |
13,218 |
121.59 |
$1,607 |
$272 |
|||||
|
2021 |
121,000 |
114,450 |
12,589 |
0 |
12,589 |
120.72 |
$1,520 |
$87 |
|||||
| Property Account Status/Adjustments/Exemptions | ||
|---|---|---|
| Account # | Exemption Description | Amount |
|
R140251030 |
5% Capped Account |
0 |
| Property Deed Transaction History (Recorded in the County Clerk's Office) | |||||||
|---|---|---|---|---|---|---|---|
| Date | Type | Book | Page | Price | Grantor | Grantee | |
|
1/18/2022 |
|
Deeds |
$180,000 |
MARTIN MICHAEL & KRISTEN A |
CRENSHAW AGNES M |
||
|
5/1/2004 |
|
Deeds |
$95,500 |
COCHRAN ARLIE J & BETTY LEE LIFE ESTATE MARTIN KRISTIN ANN |
MARTIN MICHAEL & KRISTEN A |
||
|
3/29/1999 |
|
Historical |
$0 |
COCHRAN ARLIE J & BETTY LEE |
COCHRAN ARLIE J & BETTY LEE LIFE ESTATE |
||
|
2/1/1967 |
|
Historical |
$0 |
|
COCHRAN ARLIE J & BETTY LEE |
||
| Last Mailed Notice of Value (N.O.V.) Information/History | ||||||||
|---|---|---|---|---|---|---|---|---|
| Year | Date | Market Value | Taxable Market Value | Gross Assessed | Exemption | Net Assessed | ||
|
2025 |
01/31/2025 |
184,000 |
181,650 |
19,981 |
0 |
19,981 |
||
|
2023 |
01/23/2023 |
181,000 |
181,000 |
19,910 |
0 |
19,910 |
||
|
2022 |
02/22/2022 |
140,500 |
120,172 |
13,218 |
0 |
13,218 |
||
|
2021 |
02/24/2021 |
121,000 |
114,450 |
12,589 |
0 |
12,589 |
||
|
2019 |
02/26/2019 |
113,500 |
112,875 |
12,416 |
0 |
12,416 |
||
| Property Building Permit History | |||||||||||
|---|---|---|---|---|---|---|---|---|---|---|---|
| Issued | Permit # | Provided by | Bldg # | Description | Est Construction Cost | Status | |||||
| No Building Permit records returned. | |||||||||||
| Click button on building number to access detailed information: | ||||||
|---|---|---|---|---|---|---|
| Bldg # | Vacant/Improved Land | Bldg Description | Year Built | SqFt | # Stories | |
|
1 |
Improved |
Ranch 1 Story |
1967 |
1,291 |
1 Stories |
|