|
|
|
| Larry Stein Oklahoma County Assessor (405) 713-1200 - Public Access System |
|
|
|
|
|
|
| Real Property Display - Screen Produced 3/16/2026 7:20:11 PM | ||||
|---|---|---|---|---|
| Account: R140251540 | Type: Residential | Location: |
2809 SW 85TH ST |
|
| Building Name/Occupant: |
|
OKLAHOMA CITY |
||
| Owner Name 1: | BRYANT LARRY J & SHERRIE K |
Parcel PIN#: |
1723-14-025-1540 |
|
| Owner Name 2: | 1/4 section #: |
1723 |
||
| Owner Name 3: | Parent Acct: |
|
||
| Billing Address: | 2809 SW 85TH ST | Tax District: |
|
|
| City, State, Zip | OKLAHOMA CITY, OK 73159-5608 | School System: |
Moore #2 |
|
|
Country: (If noted) |
Land Size: |
0.1680 Acres |
||
|
Land Value: 27,084 |
|
|||
|
Sect 31-T11N-R3W Qtr SW |
L L LYONS KROEGER HT SEC 3
Block
012
Lot
025
|
|||
| Full Legal Description: L L LYONS KROEGER HT SEC 3 012 025 |
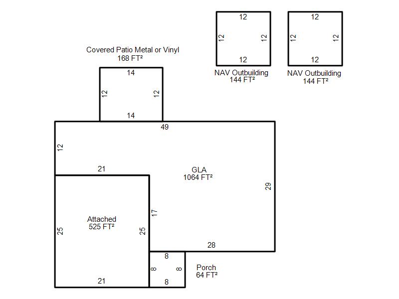
| Photo & Sketch (if available) | Comp Sales (ordered by relevancy) |
|
||||||||||||||||||
|
||||||||||||||||||||
| Value History (*The County Treasurer 405-713-1300 posts & collects actual tax amounts. Contact information HERE) | |||||||||||||
|---|---|---|---|---|---|---|---|---|---|---|---|---|---|
| Year | Market Value | Taxable Mkt Value | Gross Assessed | Exemption | Net Assessed | Millage | Est. Tax | Tax Savings | |||||
|
2025 |
148,000 |
102,594 |
11,284 |
1,000 |
10,284 |
120.83 |
$1,243 |
$724 |
|||||
|
2024 |
138,500 |
99,606 |
10,956 |
1,000 |
9,956 |
119.82 |
$1,193 |
$632 |
|||||
|
2023 |
126,500 |
96,705 |
10,636 |
1,000 |
9,636 |
119.00 |
$1,147 |
$509 |
|||||
|
2022 |
115,000 |
93,889 |
10,327 |
1,000 |
9,327 |
121.59 |
$1,134 |
$404 |
|||||
|
2021 |
96,000 |
91,155 |
10,027 |
1,000 |
9,027 |
120.72 |
$1,090 |
$185 |
|||||
| Property Account Status/Adjustments/Exemptions | ||
|---|---|---|
| Account # | Exemption Description | Amount |
|
R140251540 |
Homestead |
1,000 |
|
R140251540 |
3% Cap Homestead |
0 |
| Property Deed Transaction History (Recorded in the County Clerk's Office) | |||||||
|---|---|---|---|---|---|---|---|
| Date | Type | Book | Page | Price | Grantor | Grantee | |
|
9/12/2000 |
|
Deeds |
$0 |
BRYANT GORDON E BRYANT JALOYCE ANN |
BRYANT JALOYCE ANN |
||
|
9/12/2000 |
|
Hmstd Off & |
$0 |
BRYANT JALOYCE ANN |
BRYANT LARRY J & SHERRIE K |
||
|
11/2/1993 |
|
Historical |
$0 |
BRYANT GORDON E |
BRYANT GORDON E |
||
|
4/6/1990 |
|
Historical |
$0 |
BRYANT GORDON E & IANTHA V |
BRYANT GORDON E |
||
|
11/11/1911 |
|
Historical |
$0 |
|
BRYANT GORDON E & IANTHA V |
||
| Last Mailed Notice of Value (N.O.V.) Information/History | ||||||||
|---|---|---|---|---|---|---|---|---|
| Year | Date | Market Value | Taxable Market Value | Gross Assessed | Exemption | Net Assessed | ||
|
2026 |
02/06/2026 |
146,500 |
105,671 |
11,623 |
1,000 |
10,623 |
||
|
2025 |
01/31/2025 |
148,000 |
102,594 |
11,284 |
1,000 |
10,284 |
||
|
2024 |
01/22/2024 |
138,500 |
99,606 |
10,956 |
1,000 |
9,956 |
||
|
2023 |
01/23/2023 |
126,500 |
96,705 |
10,636 |
1,000 |
9,636 |
||
|
2022 |
02/22/2022 |
115,000 |
93,889 |
10,327 |
1,000 |
9,327 |
||
| Property Building Permit History | |||||||||||
|---|---|---|---|---|---|---|---|---|---|---|---|
| Issued | Permit # | Provided by | Bldg # | Description | Est Construction Cost | Status | |||||
| No Building Permit records returned. | |||||||||||
| Click button on building number to access detailed information: | ||||||
|---|---|---|---|---|---|---|
| Bldg # | Vacant/Improved Land | Bldg Description | Year Built | SqFt | # Stories | |
|
1 |
Improved |
Ranch 1 Story |
1967 |
1,064 |
1 Stories |
|