|
|
|
| Larry Stein Oklahoma County Assessor (405) 713-1200 - Public Access System |
|
|
|
|
|
|
| Real Property Display - Screen Produced 3/16/2026 7:23:12 PM | ||||
|---|---|---|---|---|
| Account: R140251580 | Type: Residential | Location: |
2825 SW 85TH ST |
|
| Building Name/Occupant: |
|
OKLAHOMA CITY |
||
| Owner Name 1: | CHANEY JANET |
Parcel PIN#: |
1723-14-025-1580 |
|
| Owner Name 2: | DAMRON JOYCE | 1/4 section #: |
1723 |
|
| Owner Name 3: | Parent Acct: |
|
||
| Billing Address: | 14305 S ROBINSON | Tax District: |
|
|
| City, State, Zip | OKLAHOMA CITY, OK 73170 | School System: |
Moore #2 |
|
|
Country: (If noted) |
Land Size: |
0.1653 Acres |
||
|
Land Value: 26,640 |
|
|||
|
Sect 31-T11N-R3W Qtr SW |
L L LYONS KROEGER HT SEC 3
Block
012
Lot
029
|
|||
| Full Legal Description: L L LYONS KROEGER HT SEC 3 012 029 |
| Photo & Sketch (if available) | Comp Sales (ordered by relevancy) |
|
||||||||||||||||||
|
||||||||||||||||||||
| Value History (*The County Treasurer 405-713-1300 posts & collects actual tax amounts. Contact information HERE) | |||||||||||||
|---|---|---|---|---|---|---|---|---|---|---|---|---|---|
| Year | Market Value | Taxable Mkt Value | Gross Assessed | Exemption | Net Assessed | Millage | Est. Tax | Tax Savings | |||||
|
2025 |
189,000 |
90,816 |
9,989 |
1,000 |
8,989 |
120.83 |
$1,086 |
$1,426 |
|||||
|
2024 |
181,000 |
90,816 |
9,989 |
1,000 |
8,989 |
119.82 |
$1,077 |
$1,308 |
|||||
|
2023 |
161,000 |
90,816 |
9,989 |
1,000 |
8,989 |
119.00 |
$1,070 |
$1,038 |
|||||
|
2022 |
146,500 |
90,816 |
9,989 |
1,000 |
8,989 |
121.59 |
$1,093 |
$866 |
|||||
|
2021 |
126,000 |
90,816 |
9,989 |
1,000 |
8,989 |
120.72 |
$1,085 |
$588 |
|||||
| Property Account Status/Adjustments/Exemptions | ||
|---|---|---|
| Account # | Exemption Description | Amount |
|
R140251580 |
Freeze Senior Valuation |
0 |
|
R140251580 |
3% Cap Homestead |
0 |
|
R140251580 |
Homestead |
1,000 |
| Property Deed Transaction History (Recorded in the County Clerk's Office) | ||||||||||
|---|---|---|---|---|---|---|---|---|---|---|
| Date | Type | Book | Page | Price | Grantor | Grantee | ||||
|
9/9/2022 |
|
Deeds |
$0 |
CHANEY JANET |
CHANEY JANET |
|||||
|
6/23/2021 |
|
Deeds |
$ |
CHANEY JANET |
CHANEY JANET |
|||||
|
12/18/2014 |
|
Deeds |
$0 |
MICK JANET DOROTHA CHANEY BIRDSALL P |
CHANEY JANET |
|||||
|
12/18/2014 |
|
Deeds |
$0 |
CHANEY JANET |
CHANEY JANET |
|||||
|
3/27/1997 |
|
Historical |
$0 |
MICK JANET DOROTHA |
MICK JANET DOROTHA |
|||||
| Last Mailed Notice of Value (N.O.V.) Information/History | ||||||||
|---|---|---|---|---|---|---|---|---|
| Year | Date | Market Value | Taxable Market Value | Gross Assessed | Exemption | Net Assessed | ||
|
2025 |
01/31/2025 |
189,000 |
90,816 |
9,989 |
1,000 |
8,989 |
||
|
2024 |
01/22/2024 |
181,000 |
90,816 |
9,989 |
1,000 |
8,989 |
||
|
2023 |
01/23/2023 |
161,000 |
90,816 |
9,989 |
1,000 |
8,989 |
||
|
2022 |
02/22/2022 |
146,500 |
90,816 |
9,989 |
1,000 |
8,989 |
||
|
2021 |
02/24/2021 |
126,000 |
90,816 |
9,989 |
1,000 |
8,989 |
||
| Property Building Permit History | |||||||||||
|---|---|---|---|---|---|---|---|---|---|---|---|
| Issued | Permit # | Provided by | Bldg # | Description | Est Construction Cost | Status | |||||
| No Building Permit records returned. | |||||||||||
| Click button on building number to access detailed information: | ||||||
|---|---|---|---|---|---|---|
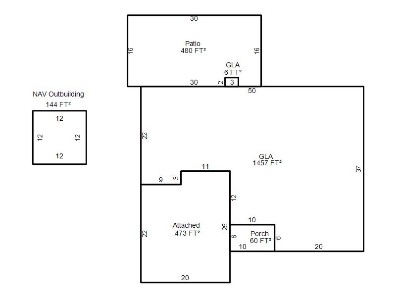
| Bldg # | Vacant/Improved Land | Bldg Description | Year Built | SqFt | # Stories | |
|
1 |
Improved |
Ranch 1 Story |
1970 |
1,463 |
1 Stories |
|