|
|
|
| Larry Stein Oklahoma County Assessor (405) 713-1200 - Public Access System |
|
|
|
|
|
|
| Real Property Display - Screen Produced 4/4/2026 10:55:35 PM | ||||
|---|---|---|---|---|
| Account: R140256070 | Type: Residential | Location: |
8900 S ROSS AVE |
|
| Building Name/Occupant: |
|
OKLAHOMA CITY |
||
| Owner Name 1: | SMITH ERIC & NICOLE D |
Parcel PIN#: |
1723-14-025-6070 |
|
| Owner Name 2: | 1/4 section #: |
1723 |
||
| Owner Name 3: | Parent Acct: |
|
||
| Billing Address: | 8900 S ROSS AVE | Tax District: |
|
|
| City, State, Zip | OKLAHOMA CITY, OK 73159 | School System: |
Moore #2 |
|
|
Country: (If noted) |
Land Size: |
0.2858 Acres |
||
|
Land Value: 27,850 |
|
|||
|
Sect 31-T11N-R3W Qtr SW |
L L LYONS KROEGER HT SEC 3
Block
015
Lot
028
|
|||
| Full Legal Description: L L LYONS KROEGER HT SEC 3 015 028 |
| Photo & Sketch (if available) | Comp Sales (ordered by relevancy) |
|
||||||||||||||||||
|
||||||||||||||||||||
| Value History (*The County Treasurer 405-713-1300 posts & collects actual tax amounts. Contact information HERE) | |||||||||||||
|---|---|---|---|---|---|---|---|---|---|---|---|---|---|
| Year | Market Value | Taxable Mkt Value | Gross Assessed | Exemption | Net Assessed | Millage | Est. Tax | Tax Savings | |||||
|
2026 |
235,500 |
235,500 |
25,905 |
1,000 |
24,905 |
120.83 |
$3,009 |
$121 |
|||||
|
2025 |
238,000 |
232,780 |
25,605 |
1,000 |
24,605 |
120.83 |
$2,973 |
$190 |
|||||
|
2024 |
226,000 |
226,000 |
24,860 |
1,000 |
23,860 |
119.82 |
$2,859 |
$120 |
|||||
|
2023 |
220,000 |
220,000 |
24,200 |
1,000 |
23,200 |
119.00 |
$2,761 |
$119 |
|||||
|
2022 |
181,500 |
149,056 |
16,395 |
16,395 |
0 |
121.59 |
$0 |
$2,427 |
|||||
| Property Account Status/Adjustments/Exemptions | ||
|---|---|---|
| Account # | Exemption Description | Amount |
|
R140256070 |
3% Cap Homestead |
0 |
|
R140256070 |
Homestead |
1,000 |
| Property Deed Transaction History (Recorded in the County Clerk's Office) | |||||||
|---|---|---|---|---|---|---|---|
| Date | Type | Book | Page | Price | Grantor | Grantee | |
|
7/27/2022 |
|
Deeds |
$219,000 |
OPENDOOR PROPERTY TRUST I |
SMITH ERIC & NICOLE D |
||
|
3/4/2022 |
|
Deeds |
$198,500 |
NIELSEN JEREMIAH A |
OPENDOOR PROPERTY TRUST I |
||
|
8/24/2016 |
|
Deeds |
$0 |
CUTTER LESTER C & CORDIE M |
CUTTER LESTER C |
||
|
8/24/2016 |
|
Deeds |
$135,000 |
CUTTER LESTER C |
NIELSEN JEREMIAH A |
||
|
11/11/1911 |
|
Historical |
$0 |
|
CUTTER LESTER C & CORDIE M |
||
| Last Mailed Notice of Value (N.O.V.) Information/History | ||||||||
|---|---|---|---|---|---|---|---|---|
| Year | Date | Market Value | Taxable Market Value | Gross Assessed | Exemption | Net Assessed | ||
|
2026 |
02/06/2026 |
235,500 |
235,500 |
25,905 |
1,000 |
24,905 |
||
|
2025 |
01/31/2025 |
238,000 |
232,780 |
25,605 |
1,000 |
24,605 |
||
|
2024 |
01/22/2024 |
226,000 |
226,000 |
24,860 |
1,000 |
23,860 |
||
|
2023 |
01/23/2023 |
220,000 |
220,000 |
24,200 |
0 |
24,200 |
||
|
2022 |
02/22/2022 |
181,500 |
149,056 |
16,395 |
16,395 |
0 |
||
| Property Building Permit History | |||||||||||
|---|---|---|---|---|---|---|---|---|---|---|---|
| Issued | Permit # | Provided by | Bldg # | Description | Est Construction Cost | Status | |||||
| No Building Permit records returned. | |||||||||||
| Click button on building number to access detailed information: | ||||||
|---|---|---|---|---|---|---|
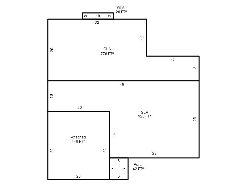
| Bldg # | Vacant/Improved Land | Bldg Description | Year Built | SqFt | # Stories | |
|
1 |
Improved |
Ranch 1 Story |
1970 |
1,721 |
1 Stories |
|