|
|
|
| Larry Stein Oklahoma County Assessor (405) 713-1200 - Public Access System |
|
|
|
|
|
|
| Real Property Display - Screen Produced 3/16/2026 7:25:53 PM | ||||
|---|---|---|---|---|
| Account: R148411480 | Type: Residential | Location: |
2708 SW 83RD ST |
|
| Building Name/Occupant: |
|
OKLAHOMA CITY |
||
| Owner Name 1: | RUYLE RONALD A |
Parcel PIN#: |
1723-14-841-1480 |
|
| Owner Name 2: | 1/4 section #: |
1723 |
||
| Owner Name 3: | Parent Acct: |
|
||
| Billing Address: | 2725 SW 116TH PL | Tax District: |
|
|
| City, State, Zip | OKLAHOMA CITY, OK 73170-2646 | School System: |
Moore #2 |
|
|
Country: (If noted) |
Land Size: |
0.1515 Acres |
||
|
Land Value: 21,120 |
|
|||
|
Sect 31-T11N-R3W Qtr SW |
L L LYONS KROEGER HTS
Block
003
Lot
022
|
|||
| Full Legal Description: L L LYONS KROEGER HTS 003 022 |
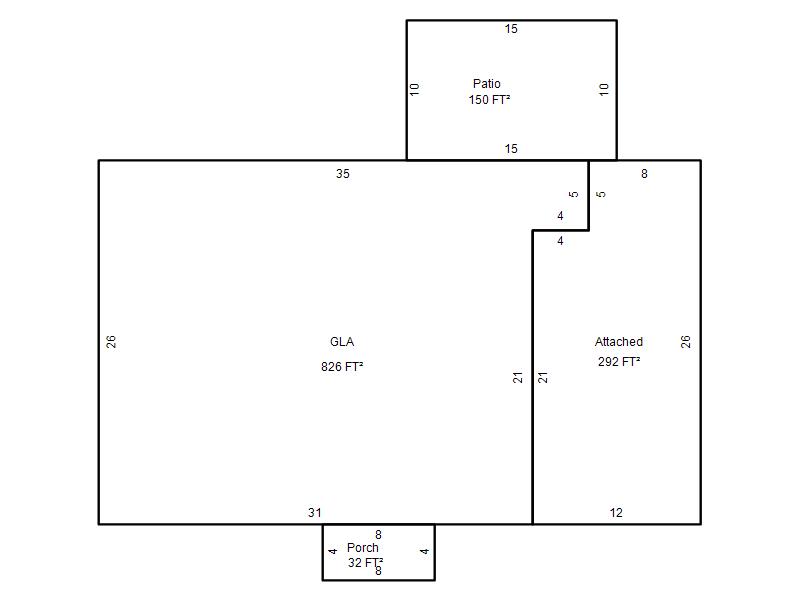
| Photo & Sketch (if available) | Comp Sales (ordered by relevancy) |
|
||||||||||||||||||
|
||||||||||||||||||||
| Value History (*The County Treasurer 405-713-1300 posts & collects actual tax amounts. Contact information HERE) | |||||||||||||
|---|---|---|---|---|---|---|---|---|---|---|---|---|---|
| Year | Market Value | Taxable Mkt Value | Gross Assessed | Exemption | Net Assessed | Millage | Est. Tax | Tax Savings | |||||
|
2025 |
129,000 |
93,804 |
10,318 |
0 |
10,318 |
120.83 |
$1,247 |
$468 |
|||||
|
2024 |
121,500 |
89,338 |
9,826 |
0 |
9,826 |
119.82 |
$1,177 |
$424 |
|||||
|
2023 |
105,500 |
85,084 |
9,358 |
0 |
9,358 |
119.00 |
$1,114 |
$267 |
|||||
|
2022 |
96,000 |
81,033 |
8,913 |
0 |
8,913 |
121.59 |
$1,084 |
$200 |
|||||
|
2021 |
81,500 |
77,175 |
8,489 |
0 |
8,489 |
120.72 |
$1,025 |
$57 |
|||||
| Property Account Status/Adjustments/Exemptions | ||
|---|---|---|
| Account # | Exemption Description | Amount |
|
R148411480 |
5% Capped Account |
0 |
| Property Deed Transaction History (Recorded in the County Clerk's Office) | |||||||
|---|---|---|---|---|---|---|---|
| Date | Type | Book | Page | Price | Grantor | Grantee | |
|
2/1/1986 |
|
Historical |
$0 |
RUYLE RONALD A |
RUYLE RONALD A |
||
|
11/1/1985 |
|
Historical |
$43,000 |
|
RUYLE RONALD A |
||
| Last Mailed Notice of Value (N.O.V.) Information/History | ||||||||
|---|---|---|---|---|---|---|---|---|
| Year | Date | Market Value | Taxable Market Value | Gross Assessed | Exemption | Net Assessed | ||
|
2026 |
02/06/2026 |
125,000 |
98,494 |
10,833 |
0 |
10,833 |
||
|
2025 |
01/31/2025 |
129,000 |
93,804 |
10,318 |
0 |
10,318 |
||
|
2024 |
01/22/2024 |
121,500 |
89,338 |
9,826 |
0 |
9,826 |
||
|
2023 |
01/23/2023 |
105,500 |
85,084 |
9,358 |
0 |
9,358 |
||
|
2022 |
02/22/2022 |
96,000 |
81,033 |
8,913 |
0 |
8,913 |
||
| Property Building Permit History | |||||||||||
|---|---|---|---|---|---|---|---|---|---|---|---|
| Issued | Permit # | Provided by | Bldg # | Description | Est Construction Cost | Status | |||||
| No Building Permit records returned. | |||||||||||
| Click button on building number to access detailed information: | ||||||
|---|---|---|---|---|---|---|
| Bldg # | Vacant/Improved Land | Bldg Description | Year Built | SqFt | # Stories | |
|
1 |
Improved |
Ranch 1 Story |
1965 |
826 |
1 Stories |
|