|
|
|
| Larry Stein Oklahoma County Assessor (405) 713-1200 - Public Access System |
|
|
|
|
|
|
| Real Property Display - Screen Produced 3/16/2026 2:17:39 PM | ||||
|---|---|---|---|---|
| Account: R148471540 | Type: Residential | Location: |
2625 SW 85TH ST |
|
| Building Name/Occupant: |
|
OKLAHOMA CITY |
||
| Owner Name 1: | LAGUNA JAYCEN |
Parcel PIN#: |
1723-14-847-1540 |
|
| Owner Name 2: | 1/4 section #: |
1723 |
||
| Owner Name 3: | Parent Acct: |
|
||
| Billing Address: | 7008 SW 134TH ST | Tax District: |
|
|
| City, State, Zip | OKLAHOMA CITY, OK 73173 | School System: |
Moore #2 |
|
|
Country: (If noted) |
Land Size: |
0.1490 Acres |
||
|
Land Value: 24,013 |
|
|||
|
Sect 31-T11N-R3W Qtr SW |
P B ODOMS KROEGER HTS 2ND
Block
012
Lot
007
|
|||
| Full Legal Description: P B ODOMS KROEGER HTS 2ND 012 007 |
| Photo & Sketch (if available) | Comp Sales (ordered by relevancy) |
|
||||||||||||||||||
|
||||||||||||||||||||
| Value History (*The County Treasurer 405-713-1300 posts & collects actual tax amounts. Contact information HERE) | |||||||||||||
|---|---|---|---|---|---|---|---|---|---|---|---|---|---|
| Year | Market Value | Taxable Mkt Value | Gross Assessed | Exemption | Net Assessed | Millage | Est. Tax | Tax Savings | |||||
|
2025 |
128,000 |
124,950 |
13,744 |
0 |
13,744 |
120.83 |
$1,661 |
$41 |
|||||
|
2024 |
119,000 |
119,000 |
13,090 |
0 |
13,090 |
119.82 |
$1,568 |
$0 |
|||||
|
2023 |
106,500 |
82,431 |
9,066 |
0 |
9,066 |
119.00 |
$1,079 |
$315 |
|||||
|
2022 |
97,500 |
78,506 |
8,635 |
1,000 |
7,635 |
121.59 |
$928 |
$376 |
|||||
|
2021 |
81,000 |
76,220 |
8,384 |
1,000 |
7,384 |
120.72 |
$891 |
$184 |
|||||
| Property Account Status/Adjustments/Exemptions | ||
|---|---|---|
| Account # | Exemption Description | Amount |
|
R148471540 |
5% Capped Account |
0 |
| Property Deed Transaction History (Recorded in the County Clerk's Office) | |||||||
|---|---|---|---|---|---|---|---|
| Date | Type | Book | Page | Price | Grantor | Grantee | |
|
1/5/2023 |
|
Hmstd Off & |
$0 |
TURNEY GERALDINE Y |
BIRD JAMIE L |
||
|
1/5/2023 |
|
Deeds |
$110,000 |
BIRD JAMIE L |
LAGUNA JAYCEN |
||
|
10/12/2022 |
|
Hmstd Off & |
$0 |
TURNEY GERALDINE Y |
BIRD JAMIE L |
||
|
11/1/1978 |
|
Historical |
$0 |
|
TURNEY GERALDINE Y |
||
| Last Mailed Notice of Value (N.O.V.) Information/History | ||||||||
|---|---|---|---|---|---|---|---|---|
| Year | Date | Market Value | Taxable Market Value | Gross Assessed | Exemption | Net Assessed | ||
|
2026 |
02/06/2026 |
125,000 |
125,000 |
13,750 |
0 |
13,750 |
||
|
2025 |
01/31/2025 |
128,000 |
124,950 |
13,744 |
0 |
13,744 |
||
|
2024 |
01/22/2024 |
119,000 |
119,000 |
13,090 |
0 |
13,090 |
||
|
2023 |
01/23/2023 |
106,500 |
82,431 |
9,066 |
0 |
9,066 |
||
|
2022 |
02/22/2022 |
97,500 |
78,506 |
8,635 |
1,000 |
7,635 |
||
| Property Building Permit History | |||||||||||
|---|---|---|---|---|---|---|---|---|---|---|---|
| Issued | Permit # | Provided by | Bldg # | Description | Est Construction Cost | Status | |||||
| No Building Permit records returned. | |||||||||||
| Click button on building number to access detailed information: | ||||||
|---|---|---|---|---|---|---|
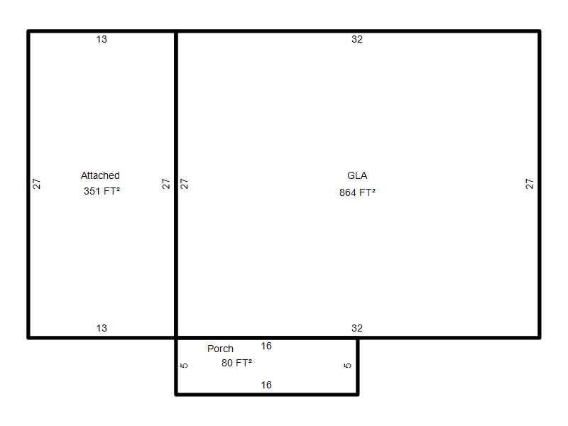
| Bldg # | Vacant/Improved Land | Bldg Description | Year Built | SqFt | # Stories | |
|
1 |
Improved |
Ranch 1 Story |
1967 |
864 |
1 Stories |
|