|
|
|
| Larry Stein Oklahoma County Assessor (405) 713-1200 - Public Access System |
|
|
|
|
|
|
| Real Property Display - Screen Produced 4/8/2026 7:33:33 AM | ||||
|---|---|---|---|---|
| Account: R143321285 | Type: Residential | Location: |
2621 SW 80TH ST |
|
| Building Name/Occupant: |
|
OKLAHOMA CITY |
||
| Owner Name 1: | JACOBS ROBERT |
Parcel PIN#: |
1724-14-332-1285 |
|
| Owner Name 2: | 1/4 section #: |
1724 |
||
| Owner Name 3: | Parent Acct: |
|
||
| Billing Address: | 2621 SW 80TH ST | Tax District: |
|
|
| City, State, Zip | OKLAHOMA CITY, OK 73159-4725 | School System: |
Western Heights #41 |
|
|
Country: (If noted) |
Land Size: |
0.1892 Acres |
||
|
Land Value: 25,135 |
|
|||
|
Sect 31-T11N-R3W Qtr NW |
MEADOW CLIFF 3RD
Block
019
Lot
015
|
|||
| Full Legal Description: MEADOW CLIFF 3RD 019 015 |
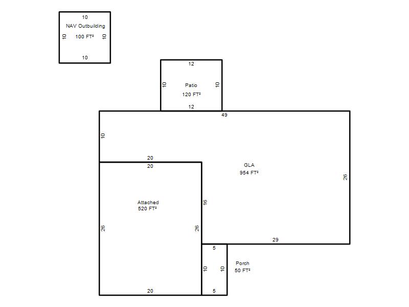
| Photo & Sketch (if available) | Comp Sales (ordered by relevancy) |
|
||||||||||||||||||
|
||||||||||||||||||||
| Value History (*The County Treasurer 405-713-1300 posts & collects actual tax amounts. Contact information HERE) | |||||||||||||
|---|---|---|---|---|---|---|---|---|---|---|---|---|---|
| Year | Market Value | Taxable Mkt Value | Gross Assessed | Exemption | Net Assessed | Millage | Est. Tax | Tax Savings | |||||
|
2026 |
143,500 |
102,088 |
11,229 |
1,000 |
10,229 |
117.97 |
$1,207 |
$655 |
|||||
|
2025 |
143,500 |
99,115 |
10,902 |
1,000 |
9,902 |
117.97 |
$1,168 |
$694 |
|||||
|
2024 |
134,000 |
96,229 |
10,584 |
1,000 |
9,584 |
118.45 |
$1,135 |
$611 |
|||||
|
2023 |
124,500 |
93,427 |
10,276 |
1,000 |
9,276 |
116.31 |
$1,079 |
$514 |
|||||
|
2022 |
113,500 |
90,706 |
9,977 |
1,000 |
8,977 |
117.67 |
$1,056 |
$413 |
|||||
| Property Account Status/Adjustments/Exemptions | ||
|---|---|---|
| Account # | Exemption Description | Amount |
|
R143321285 |
Homestead |
1,000 |
|
R143321285 |
3% Cap Homestead |
0 |
| Property Deed Transaction History (Recorded in the County Clerk's Office) | |||||||
|---|---|---|---|---|---|---|---|
| Date | Type | Book | Page | Price | Grantor | Grantee | |
|
9/14/2007 |
|
Deeds |
$90,000 |
MEIER MON L |
JACOBS ROBERT |
||
|
7/1/2003 |
|
Deeds |
$0 |
CRAWFORD MONA L HIGGINS BURNELTON & JANICE G |
MEIER MON L |
||
|
11/1/1986 |
|
Historical |
$0 |
CRAWFORD MONA L |
CRAWFORD MONA L |
||
|
4/1/1985 |
|
Historical |
$60,000 |
|
CRAWFORD MONA L |
||
| Last Mailed Notice of Value (N.O.V.) Information/History | ||||||||
|---|---|---|---|---|---|---|---|---|
| Year | Date | Market Value | Taxable Market Value | Gross Assessed | Exemption | Net Assessed | ||
|
2026 |
02/06/2026 |
143,500 |
102,088 |
11,229 |
1,000 |
10,229 |
||
|
2025 |
01/31/2025 |
143,500 |
99,115 |
10,902 |
1,000 |
9,902 |
||
|
2024 |
01/22/2024 |
134,000 |
96,229 |
10,584 |
1,000 |
9,584 |
||
|
2023 |
01/23/2023 |
124,500 |
93,427 |
10,276 |
1,000 |
9,276 |
||
|
2022 |
02/22/2022 |
113,500 |
90,706 |
9,977 |
1,000 |
8,977 |
||
| Property Building Permit History | |||||||||||
|---|---|---|---|---|---|---|---|---|---|---|---|
| Issued | Permit # | Provided by | Bldg # | Description | Est Construction Cost | Status | |||||
| No Building Permit records returned. | |||||||||||
| Click button on building number to access detailed information: | ||||||
|---|---|---|---|---|---|---|
| Bldg # | Vacant/Improved Land | Bldg Description | Year Built | SqFt | # Stories | |
|
1 |
Improved |
Ranch 1 Story |
1969 |
954 |
1 Stories |
|