|
|
|
| Larry Stein Oklahoma County Assessor (405) 713-1200 - Public Access System |
|
|
|
|
|
|
| Real Property Display - Screen Produced 4/8/2026 7:36:09 AM | ||||
|---|---|---|---|---|
| Account: R143321895 | Type: Residential | Location: |
2508 SW 81ST ST |
|
| Building Name/Occupant: |
|
OKLAHOMA CITY |
||
| Owner Name 1: | CERDA NOEMI |
Parcel PIN#: |
1724-14-332-1895 |
|
| Owner Name 2: | HERNANDEZ MAURICE | 1/4 section #: |
1724 |
|
| Owner Name 3: | Parent Acct: |
|
||
| Billing Address: | 2508 SW 81ST ST | Tax District: |
|
|
| City, State, Zip | OKLAHOMA CITY, OK 73159-4732 | School System: |
Western Heights #41 |
|
|
Country: (If noted) |
Land Size: |
0.1791 Acres |
||
|
Land Value: 23,790 |
|
|||
|
Sect 31-T11N-R3W Qtr NW |
MEADOW CLIFF 3RD
Block
021
Lot
013
|
|||
| Full Legal Description: MEADOW CLIFF 3RD 021 013 |
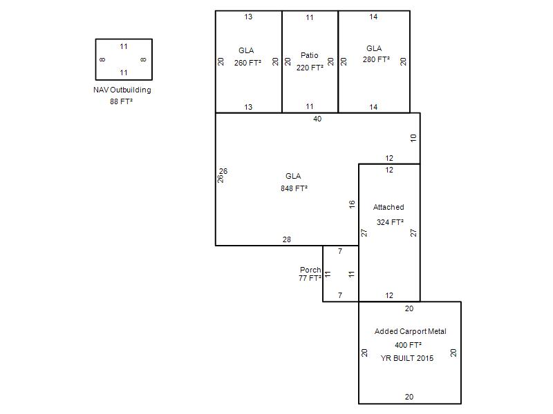
| Photo & Sketch (if available) | Comp Sales (ordered by relevancy) |
|
||||||||||||||||||
|
||||||||||||||||||||
| Value History (*The County Treasurer 405-713-1300 posts & collects actual tax amounts. Contact information HERE) | |||||||||||||
|---|---|---|---|---|---|---|---|---|---|---|---|---|---|
| Year | Market Value | Taxable Mkt Value | Gross Assessed | Exemption | Net Assessed | Millage | Est. Tax | Tax Savings | |||||
|
2026 |
219,000 |
174,210 |
19,162 |
0 |
19,162 |
117.97 |
$2,261 |
$581 |
|||||
|
2025 |
218,500 |
165,915 |
18,250 |
0 |
18,250 |
117.97 |
$2,153 |
$682 |
|||||
|
2024 |
221,000 |
158,015 |
17,381 |
0 |
17,381 |
118.45 |
$2,059 |
$821 |
|||||
|
2023 |
194,500 |
150,491 |
16,553 |
0 |
16,553 |
116.31 |
$1,925 |
$563 |
|||||
|
2022 |
177,000 |
143,325 |
15,765 |
0 |
15,765 |
117.67 |
$1,855 |
$436 |
|||||
| Property Account Status/Adjustments/Exemptions | ||
|---|---|---|
| Account # | Exemption Description | Amount |
|
R143321895 |
5% Capped Account |
0 |
| Property Deed Transaction History (Recorded in the County Clerk's Office) | ||||||||||
|---|---|---|---|---|---|---|---|---|---|---|
| Date | Type | Book | Page | Price | Grantor | Grantee | ||||
|
11/17/2015 |
|
Deeds |
$111,000 |
B & V PROPERTIES INC |
CERDA NOEMI |
|||||
|
4/14/2015 |
|
Deeds |
$53,000 |
MOONEY KEVIN GENE |
B & V PROPERTIES INC |
|||||
|
4/10/2009 |
|
Hmstd Off & |
$0 |
MOONEY KEVIN G & GLENDA F |
MOONEY KEVIN GENE |
|||||
|
7/20/1998 |
|
Historical |
$0 |
MOONEY KEVIN G |
MOONEY KEVIN G & GLENDA F |
|||||
|
8/12/1993 |
|
Historical |
$0 |
MOONEY KEVIN G & GLENDA F |
MOONEY KEVIN G |
|||||
| Last Mailed Notice of Value (N.O.V.) Information/History | ||||||||
|---|---|---|---|---|---|---|---|---|
| Year | Date | Market Value | Taxable Market Value | Gross Assessed | Exemption | Net Assessed | ||
|
2026 |
02/06/2026 |
219,000 |
174,210 |
19,162 |
0 |
19,162 |
||
|
2025 |
01/31/2025 |
218,500 |
165,915 |
18,250 |
0 |
18,250 |
||
|
2024 |
01/22/2024 |
221,000 |
158,015 |
17,381 |
0 |
17,381 |
||
|
2023 |
01/23/2023 |
194,500 |
150,491 |
16,553 |
0 |
16,553 |
||
|
2022 |
02/22/2022 |
177,000 |
143,325 |
15,765 |
0 |
15,765 |
||
| Property Building Permit History | |||||||||||
|---|---|---|---|---|---|---|---|---|---|---|---|
| Issued | Permit # | Provided by | Bldg # | Description | Est Construction Cost | Status | |||||
| No Building Permit records returned. | |||||||||||
| Click button on building number to access detailed information: | ||||||
|---|---|---|---|---|---|---|
| Bldg # | Vacant/Improved Land | Bldg Description | Year Built | SqFt | # Stories | |
|
1 |
Improved |
Ranch 1 Story |
1965 |
1,388 |
1 Stories |
|