|
|
|
| Larry Stein Oklahoma County Assessor (405) 713-1200 - Public Access System |
|
|
|
|
|
|
| Real Property Display - Screen Produced 3/17/2026 7:18:09 AM | ||||
|---|---|---|---|---|
| Account: R109662210 | Type: Residential | Location: |
1116 SW 81ST ST |
|
| Building Name/Occupant: |
|
OKLAHOMA CITY |
||
| Owner Name 1: | GUTIERREZ DELGADO ERICK |
Parcel PIN#: |
1725-10-966-2210 |
|
| Owner Name 2: | 1/4 section #: |
1725 |
||
| Owner Name 3: | Parent Acct: |
|
||
| Billing Address: | 1116 SW 81ST ST | Tax District: |
|
|
| City, State, Zip | OKLAHOMA CITY , OK 73139 | School System: |
Oklahoma City #89 |
|
|
Country: (If noted) |
Land Size: |
0.2373 Acres |
||
|
Land Value: 33,072 |
|
|||
|
Sect 32-T11N-R3W Qtr NE |
SOUTHERN HILLS SEC 6
Block
026
Lot
019
|
|||
| Full Legal Description: SOUTHERN HILLS SEC 6 026 019 |
| Photo & Sketch (if available) | Comp Sales (ordered by relevancy) |
|
||||||||||||||||||
|
||||||||||||||||||||
| Value History (*The County Treasurer 405-713-1300 posts & collects actual tax amounts. Contact information HERE) | |||||||||||||
|---|---|---|---|---|---|---|---|---|---|---|---|---|---|
| Year | Market Value | Taxable Mkt Value | Gross Assessed | Exemption | Net Assessed | Millage | Est. Tax | Tax Savings | |||||
|
2025 |
200,000 |
131,389 |
14,452 |
0 |
14,452 |
119.02 |
$1,720 |
$898 |
|||||
|
2024 |
199,000 |
125,133 |
13,764 |
0 |
13,764 |
119.70 |
$1,648 |
$973 |
|||||
|
2023 |
175,500 |
119,175 |
13,109 |
0 |
13,109 |
118.33 |
$1,551 |
$733 |
|||||
|
2022 |
113,500 |
113,500 |
12,485 |
0 |
12,485 |
112.69 |
$1,407 |
$0 |
|||||
|
2021 |
113,500 |
113,500 |
12,485 |
0 |
12,485 |
112.29 |
$1,402 |
$0 |
|||||
| Property Account Status/Adjustments/Exemptions | ||
|---|---|---|
| Account # | Exemption Description | Amount |
|
R109662210 |
5% Capped Account |
0 |
| Property Deed Transaction History (Recorded in the County Clerk's Office) | ||||||||||
|---|---|---|---|---|---|---|---|---|---|---|
| Date | Type | Book | Page | Price | Grantor | Grantee | ||||
|
9/12/2018 |
|
Deeds |
$112,500 |
URRUTIA MICHAEL A |
GUTIERREZ DELGADO ERICK |
|||||
|
3/15/2007 |
|
Deeds |
$0 |
URRUTIA MICHAEL A & KIM A |
URRUTIA MICHAEL A |
|||||
|
6/17/2005 |
|
Deeds |
$89,000 |
HANG KHANH B TRINH HANH X |
URRUTIA MICHAEL A & KIM A |
|||||
|
5/22/2002 |
|
Deeds |
$80,000 |
PATTERSON CYNTHIA ANN |
HANG KHANH B TRINH HANH X |
|||||
|
11/12/1999 |
|
Deeds |
$68,500 |
LEDBETTER CLETUS & DOROTHY TRS LEDBETTER CLETUS V & DOROTHY |
PATTERSON BILLY R & CYNTHIA ANN |
|||||
| Last Mailed Notice of Value (N.O.V.) Information/History | ||||||||
|---|---|---|---|---|---|---|---|---|
| Year | Date | Market Value | Taxable Market Value | Gross Assessed | Exemption | Net Assessed | ||
|
2026 |
02/06/2026 |
204,000 |
137,958 |
15,174 |
0 |
15,174 |
||
|
2025 |
01/31/2025 |
200,000 |
131,389 |
14,452 |
0 |
14,452 |
||
|
2024 |
01/22/2024 |
199,000 |
125,133 |
13,764 |
0 |
13,764 |
||
|
2023 |
01/23/2023 |
175,500 |
119,175 |
13,109 |
0 |
13,109 |
||
|
2019 |
02/26/2019 |
113,500 |
113,500 |
12,485 |
0 |
12,485 |
||
| Property Building Permit History | |||||||||||
|---|---|---|---|---|---|---|---|---|---|---|---|
| Issued | Permit # | Provided by | Bldg # | Description | Est Construction Cost | Status | |||||
| No Building Permit records returned. | |||||||||||
| Click button on building number to access detailed information: | ||||||
|---|---|---|---|---|---|---|
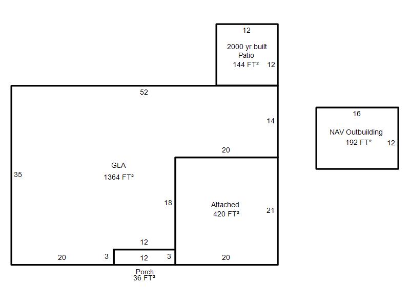
| Bldg # | Vacant/Improved Land | Bldg Description | Year Built | SqFt | # Stories | |
|
1 |
Improved |
Ranch 1 Story |
1977 |
1,364 |
1 Stories |
|