|
|
|
| Larry Stein Oklahoma County Assessor (405) 713-1200 - Public Access System |
|
|
|
|
|
|
| Real Property Display - Screen Produced 3/17/2026 7:18:09 AM | ||||
|---|---|---|---|---|
| Account: R109662230 | Type: Residential | Location: |
1108 SW 81ST ST |
|
| Building Name/Occupant: |
|
OKLAHOMA CITY |
||
| Owner Name 1: | HERNANDEZ JESSICA |
Parcel PIN#: |
1725-10-966-2230 |
|
| Owner Name 2: | 1/4 section #: |
1725 |
||
| Owner Name 3: | Parent Acct: |
|
||
| Billing Address: | 1108 SW 81ST ST | Tax District: |
|
|
| City, State, Zip | OKLAHOMA CITY, OK 73139-2510 | School System: |
Oklahoma City #89 |
|
|
Country: (If noted) |
Land Size: |
0.2919 Acres |
||
|
Land Value: 28,150 |
|
|||
|
Sect 32-T11N-R3W Qtr NE |
SOUTHERN HILLS SEC 6
Block
026
Lot
021
|
|||
| Full Legal Description: SOUTHERN HILLS SEC 6 026 021 |
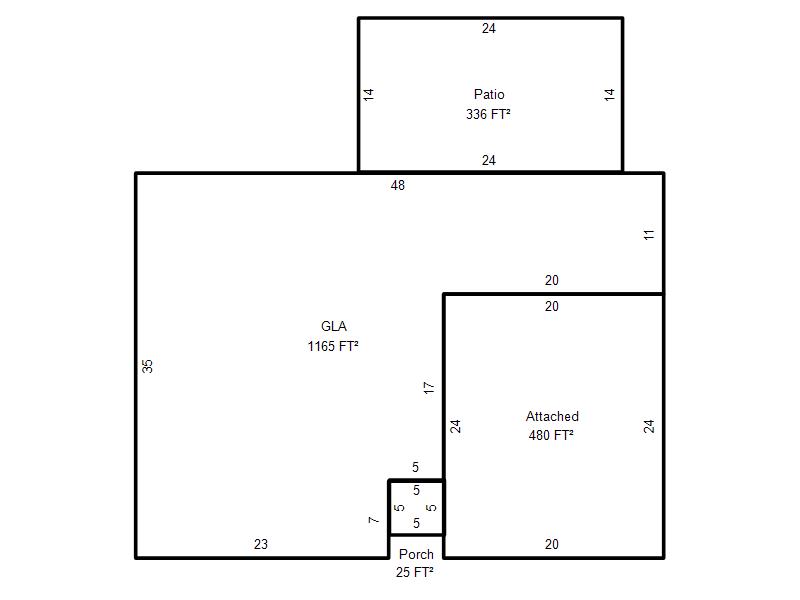
| Photo & Sketch (if available) | Comp Sales (ordered by relevancy) |
|
||||||||||||||||||
|
||||||||||||||||||||
| Value History (*The County Treasurer 405-713-1300 posts & collects actual tax amounts. Contact information HERE) | |||||||||||||
|---|---|---|---|---|---|---|---|---|---|---|---|---|---|
| Year | Market Value | Taxable Mkt Value | Gross Assessed | Exemption | Net Assessed | Millage | Est. Tax | Tax Savings | |||||
|
2025 |
170,500 |
133,369 |
14,670 |
0 |
14,670 |
119.02 |
$1,746 |
$486 |
|||||
|
2024 |
169,500 |
127,019 |
13,971 |
0 |
13,971 |
119.70 |
$1,672 |
$559 |
|||||
|
2023 |
150,000 |
120,971 |
13,306 |
0 |
13,306 |
118.33 |
$1,575 |
$378 |
|||||
|
2022 |
135,000 |
115,211 |
12,672 |
0 |
12,672 |
112.69 |
$1,428 |
$245 |
|||||
|
2021 |
115,500 |
109,725 |
12,069 |
0 |
12,069 |
112.29 |
$1,355 |
$71 |
|||||
| Property Account Status/Adjustments/Exemptions | ||||||
|---|---|---|---|---|---|---|
| Account # | Exemption Description | Amount | ||||
| No adjustment/exemption records returned. | ||||||
| Property Deed Transaction History (Recorded in the County Clerk's Office) | ||||||||||
|---|---|---|---|---|---|---|---|---|---|---|
| Date | Type | Book | Page | Price | Grantor | Grantee | ||||
|
6/13/2025 |
|
Deeds |
$182,500 |
TENNYSON ARLEN DWIGHT |
HERNANDEZ JESSICA |
|||||
|
1/11/2016 |
|
Other |
$0 |
SECRETARY OF HOUSING & URBAN DEV C/O MICHAELSON CONNER & BOU |
TENNYSON ARLEN DWIGHT |
|||||
|
3/18/2015 |
|
Hmstd Off & |
$0 |
HARJO JEREMY W MONTES DENISE |
SECRETARY OF HOUSING & URBAN DEV C/O MICHAELSON CONNER & BOU |
|||||
|
8/30/2007 |
|
Deeds |
$91,000 |
WILSON JOSHUA S |
HARJO JEREMY W MONTES DENISE |
|||||
|
6/30/2004 |
|
Deeds |
$80,000 |
DICK DANIEL R |
WILSON JOSHUA S |
|||||
| Last Mailed Notice of Value (N.O.V.) Information/History | ||||||||
|---|---|---|---|---|---|---|---|---|
| Year | Date | Market Value | Taxable Market Value | Gross Assessed | Exemption | Net Assessed | ||
|
2026 |
02/06/2026 |
174,500 |
174,500 |
19,195 |
0 |
19,195 |
||
|
2025 |
01/31/2025 |
170,500 |
133,369 |
14,670 |
0 |
14,670 |
||
|
2024 |
01/22/2024 |
169,500 |
127,019 |
13,971 |
0 |
13,971 |
||
|
2023 |
01/23/2023 |
150,000 |
120,971 |
13,306 |
0 |
13,306 |
||
|
2022 |
02/22/2022 |
135,000 |
115,211 |
12,672 |
0 |
12,672 |
||
| Property Building Permit History | |||||||||||
|---|---|---|---|---|---|---|---|---|---|---|---|
| Issued | Permit # | Provided by | Bldg # | Description | Est Construction Cost | Status | |||||
| No Building Permit records returned. | |||||||||||
| Click button on building number to access detailed information: | ||||||
|---|---|---|---|---|---|---|
| Bldg # | Vacant/Improved Land | Bldg Description | Year Built | SqFt | # Stories | |
|
1 |
Improved |
Ranch 1 Story |
1974 |
1,165 |
1 Stories |
|