|
|
|
| Larry Stein Oklahoma County Assessor (405) 713-1200 - Public Access System |
|
|
|
|
|
|
| Real Property Display - Screen Produced 3/17/2026 7:17:41 AM | ||||
|---|---|---|---|---|
| Account: R109662460 | Type: Residential | Location: |
8217 S KLEIN AVE |
|
| Building Name/Occupant: |
|
OKLAHOMA CITY |
||
| Owner Name 1: | BYRNE JOHN P |
Parcel PIN#: |
1725-10-966-2460 |
|
| Owner Name 2: | 1/4 section #: |
1725 |
||
| Owner Name 3: | Parent Acct: |
|
||
| Billing Address: | 8217 S KLEIN AVE | Tax District: |
|
|
| City, State, Zip | OKLAHOMA CITY, OK 73139-2515 | School System: |
Oklahoma City #89 |
|
|
Country: (If noted) |
Land Size: |
0.1861 Acres |
||
|
Land Value: 21,484 |
|
|||
|
Sect 32-T11N-R3W Qtr NE |
SOUTHERN HILLS SEC 6
Block
027
Lot
020
|
|||
| Full Legal Description: SOUTHERN HILLS SEC 6 027 020 |
| Photo & Sketch (if available) | Comp Sales (ordered by relevancy) |
|
||||||||||||||||||
|
||||||||||||||||||||
| Value History (*The County Treasurer 405-713-1300 posts & collects actual tax amounts. Contact information HERE) | |||||||||||||
|---|---|---|---|---|---|---|---|---|---|---|---|---|---|
| Year | Market Value | Taxable Mkt Value | Gross Assessed | Exemption | Net Assessed | Millage | Est. Tax | Tax Savings | |||||
|
2025 |
209,500 |
154,428 |
16,986 |
0 |
16,986 |
119.02 |
$2,022 |
$721 |
|||||
|
2024 |
194,500 |
147,075 |
16,177 |
0 |
16,177 |
119.70 |
$1,937 |
$624 |
|||||
|
2023 |
162,500 |
140,072 |
15,407 |
0 |
15,407 |
118.33 |
$1,823 |
$292 |
|||||
|
2022 |
152,000 |
133,402 |
14,673 |
0 |
14,673 |
112.69 |
$1,654 |
$231 |
|||||
|
2021 |
130,000 |
127,050 |
13,975 |
0 |
13,975 |
112.29 |
$1,569 |
$36 |
|||||
| Property Account Status/Adjustments/Exemptions | ||
|---|---|---|
| Account # | Exemption Description | Amount |
|
R109662460 |
5% Capped Account |
0 |
| Property Deed Transaction History (Recorded in the County Clerk's Office) | ||||||||||
|---|---|---|---|---|---|---|---|---|---|---|
| Date | Type | Book | Page | Price | Grantor | Grantee | ||||
|
4/18/2014 |
|
Deeds |
$112,000 |
WASLAND JO ANNE & SHEILA G |
BYRNE JOHN P |
|||||
|
6/5/2012 |
|
Deeds |
$116,000 |
EILERTS JOEL M EILERTS COURTNEY L |
WASLAND JO ANNE & SHEILA G |
|||||
|
7/23/2008 |
|
Deeds |
$117,500 |
BLEVINS JOHN R & AMANDA J |
EILERTS JOEL M |
|||||
|
7/23/2008 |
|
Deeds |
$0 |
EILERTS JOEL M |
EILERTS JOEL M EILERTS COURTNEY L |
|||||
|
3/28/2006 |
|
Other |
$0 |
BLEVINS REAL ESTATE LLC |
BLEVINS JOHN R & AMANDA J |
|||||
| Last Mailed Notice of Value (N.O.V.) Information/History | ||||||||
|---|---|---|---|---|---|---|---|---|
| Year | Date | Market Value | Taxable Market Value | Gross Assessed | Exemption | Net Assessed | ||
|
2026 |
02/06/2026 |
200,500 |
162,149 |
17,836 |
0 |
17,836 |
||
|
2025 |
01/31/2025 |
209,500 |
154,428 |
16,986 |
0 |
16,986 |
||
|
2024 |
01/22/2024 |
194,500 |
147,075 |
16,177 |
0 |
16,177 |
||
|
2023 |
01/23/2023 |
162,500 |
140,072 |
15,407 |
0 |
15,407 |
||
|
2022 |
02/22/2022 |
152,000 |
133,402 |
14,673 |
0 |
14,673 |
||
| Property Building Permit History | |||||||||||
|---|---|---|---|---|---|---|---|---|---|---|---|
| Issued | Permit # | Provided by | Bldg # | Description | Est Construction Cost | Status | |||||
| No Building Permit records returned. | |||||||||||
| Click button on building number to access detailed information: | ||||||
|---|---|---|---|---|---|---|
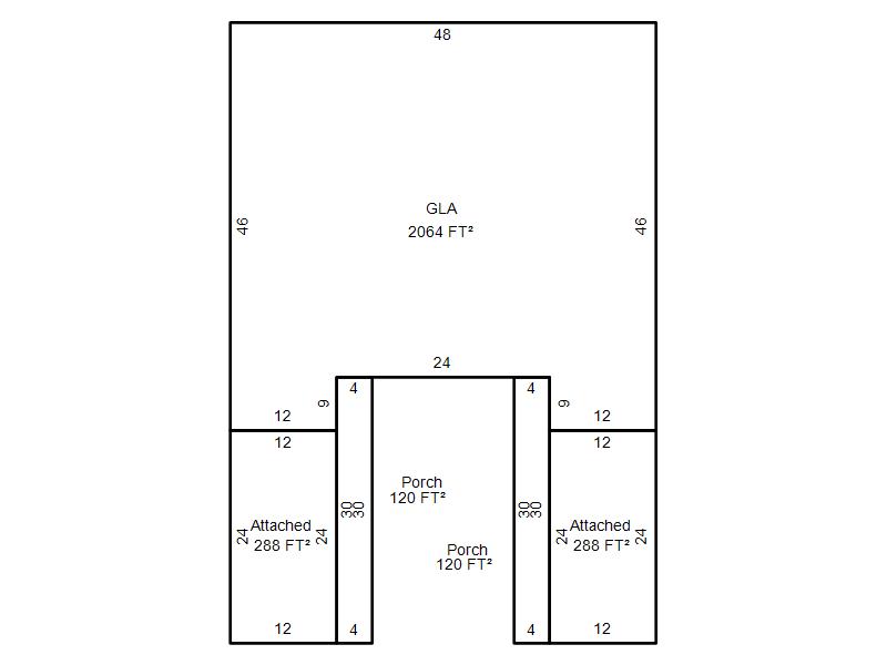
| Bldg # | Vacant/Improved Land | Bldg Description | Year Built | SqFt | # Stories | |
|
1 |
Improved |
Duplex One Story |
1976 |
2,064 |
1 Stories |
|