|
|
|
| Larry Stein Oklahoma County Assessor (405) 713-1200 - Public Access System |
|
|
|
|
|
|
| Real Property Display - Screen Produced 4/1/2026 10:09:22 AM | ||||
|---|---|---|---|---|
| Account: R109891120 | Type: Residential | Location: |
1213 SW 77TH PL |
|
| Building Name/Occupant: |
|
OKLAHOMA CITY |
||
| Owner Name 1: | WILLIAMS CHANDRA D |
Parcel PIN#: |
1725-10-989-1120 |
|
| Owner Name 2: | 1/4 section #: |
1725 |
||
| Owner Name 3: | Parent Acct: |
|
||
| Billing Address: | 46427 KOHINOOR WAY | Tax District: |
|
|
| City, State, Zip | TEMECULA, CA 92592 | School System: |
Oklahoma City #89 |
|
|
Country: (If noted) |
Land Size: |
0.1708 Acres |
||
|
Land Value: 23,814 |
|
|||
|
Sect 32-T11N-R3W Qtr NE |
SOUTHERN HILLS SEC 4
Block
018
Lot
032
|
|||
| Full Legal Description: SOUTHERN HILLS SEC 4 018 032 |
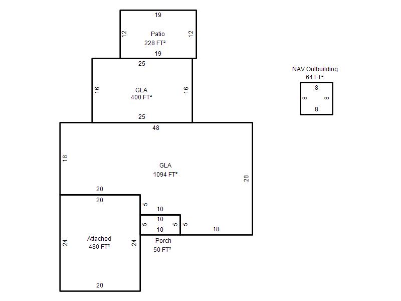
| Photo & Sketch (if available) | Comp Sales (ordered by relevancy) |
|
||||||||||||||||||
|
||||||||||||||||||||
| Value History (*The County Treasurer 405-713-1300 posts & collects actual tax amounts. Contact information HERE) | |||||||||||||
|---|---|---|---|---|---|---|---|---|---|---|---|---|---|
| Year | Market Value | Taxable Mkt Value | Gross Assessed | Exemption | Net Assessed | Millage | Est. Tax | Tax Savings | |||||
|
2026 |
191,000 |
150,089 |
16,509 |
0 |
16,509 |
119.02 |
$1,965 |
$536 |
|||||
|
2025 |
190,000 |
142,942 |
15,722 |
0 |
15,722 |
119.02 |
$1,871 |
$616 |
|||||
|
2024 |
182,500 |
136,136 |
14,974 |
0 |
14,974 |
119.70 |
$1,793 |
$610 |
|||||
|
2023 |
162,000 |
129,654 |
14,261 |
0 |
14,261 |
118.33 |
$1,688 |
$421 |
|||||
|
2022 |
144,500 |
123,480 |
13,582 |
0 |
13,582 |
112.69 |
$1,531 |
$261 |
|||||
| Property Account Status/Adjustments/Exemptions | ||
|---|---|---|
| Account # | Exemption Description | Amount |
|
R109891120 |
5% Capped Account |
0 |
| Property Deed Transaction History (Recorded in the County Clerk's Office) | |||||||
|---|---|---|---|---|---|---|---|
| Date | Type | Book | Page | Price | Grantor | Grantee | |
|
7/2/2001 |
|
Deeds |
$70,000 |
POSEY ZULA |
WILLIAMS CHANDRA D |
||
|
8/17/1990 |
|
Historical |
$0 |
POSEY GENE R & ZULA |
POSEY ZULA |
||
|
8/1/1977 |
|
Historical |
$0 |
|
POSEY GENE R & ZULA |
||
| Last Mailed Notice of Value (N.O.V.) Information/History | ||||||||
|---|---|---|---|---|---|---|---|---|
| Year | Date | Market Value | Taxable Market Value | Gross Assessed | Exemption | Net Assessed | ||
|
2026 |
02/06/2026 |
191,000 |
150,089 |
16,509 |
0 |
16,509 |
||
|
2025 |
01/31/2025 |
190,000 |
142,942 |
15,722 |
0 |
15,722 |
||
|
2024 |
01/22/2024 |
182,500 |
136,136 |
14,974 |
0 |
14,974 |
||
|
2023 |
01/23/2023 |
162,000 |
129,654 |
14,261 |
0 |
14,261 |
||
|
2022 |
02/22/2022 |
144,500 |
123,480 |
13,582 |
0 |
13,582 |
||
| Property Building Permit History | |||||||||||
|---|---|---|---|---|---|---|---|---|---|---|---|
| Issued | Permit # | Provided by | Bldg # | Description | Est Construction Cost | Status | |||||
| No Building Permit records returned. | |||||||||||
| Click button on building number to access detailed information: | ||||||
|---|---|---|---|---|---|---|
| Bldg # | Vacant/Improved Land | Bldg Description | Year Built | SqFt | # Stories | |
|
1 |
Improved |
Ranch 1 Story |
1973 |
1,494 |
1 Stories |
|