|
|
|
| Larry Stein Oklahoma County Assessor (405) 713-1200 - Public Access System |
|
|
|
|
|
|
| Real Property Display - Screen Produced 4/1/2026 9:55:33 PM | ||||
|---|---|---|---|---|
| Account: R109891620 | Type: Residential | Location: |
1217 SW 78TH TER |
|
| Building Name/Occupant: |
|
OKLAHOMA CITY |
||
| Owner Name 1: | CELESTIAL PROPERTIES LLC |
Parcel PIN#: |
1725-10-989-1620 |
|
| Owner Name 2: | 1/4 section #: |
1725 |
||
| Owner Name 3: | Parent Acct: |
|
||
| Billing Address: | PO BOX 185 | Tax District: |
|
|
| City, State, Zip | MUSTANG , OK 73064 | School System: |
Oklahoma City #89 |
|
|
Country: (If noted) |
Land Size: |
0.1763 Acres |
||
|
Land Value: 24,576 |
|
|||
|
Sect 32-T11N-R3W Qtr NE |
SOUTHERN HILLS SEC 4
Block
019
Lot
000
|
|||
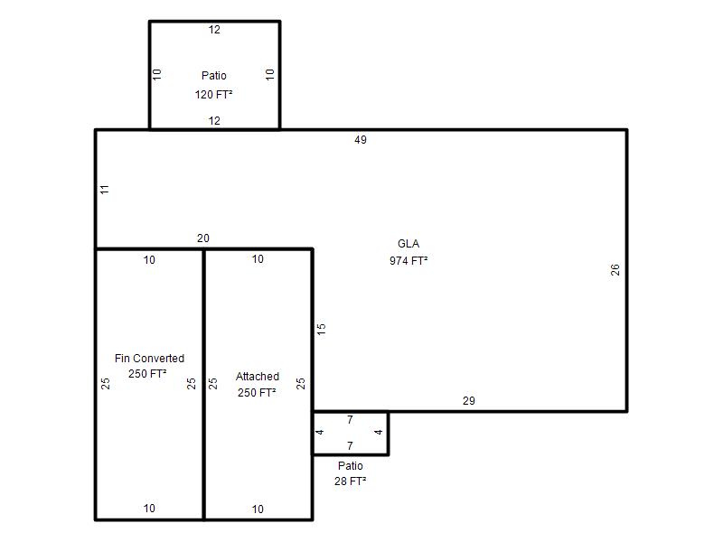
| Full Legal Description: SOUTHERN HILLS SEC 4 019 000 WLY PT LOT 43 BEING 9.24FT ON S & 11.35FT ON N & ELY PT LOT44 BEING 50.95FT ON S & 57.43FT ON N |
| Photo & Sketch (if available) | Comp Sales (ordered by relevancy) |
|
||||||||||||||||||
|
||||||||||||||||||||
| Value History (*The County Treasurer 405-713-1300 posts & collects actual tax amounts. Contact information HERE) | |||||||||||||
|---|---|---|---|---|---|---|---|---|---|---|---|---|---|
| Year | Market Value | Taxable Mkt Value | Gross Assessed | Exemption | Net Assessed | Millage | Est. Tax | Tax Savings | |||||
|
2026 |
147,000 |
144,702 |
15,916 |
0 |
15,916 |
119.02 |
$1,894 |
$30 |
|||||
|
2025 |
147,500 |
137,812 |
15,158 |
0 |
15,158 |
119.02 |
$1,804 |
$127 |
|||||
|
2024 |
140,000 |
131,250 |
14,437 |
0 |
14,437 |
119.70 |
$1,728 |
$115 |
|||||
|
2023 |
125,000 |
125,000 |
13,750 |
0 |
13,750 |
118.33 |
$1,627 |
$0 |
|||||
|
2022 |
111,500 |
90,602 |
9,965 |
1,000 |
8,965 |
112.69 |
$1,010 |
$372 |
|||||
| Property Account Status/Adjustments/Exemptions | ||
|---|---|---|
| Account # | Exemption Description | Amount |
|
R109891620 |
5% Capped Account |
0 |
| Property Deed Transaction History (Recorded in the County Clerk's Office) | |||||||
|---|---|---|---|---|---|---|---|
| Date | Type | Book | Page | Price | Grantor | Grantee | |
|
3/1/2022 |
|
Deeds |
$80,500 |
MARTIN ROBERT P & LAURIE |
QUICK REAL ESTATE SOLUTIONS LLC |
||
|
3/1/2022 |
|
Deeds |
$88,000 |
QUICK REAL ESTATE SOLUTIONS LLC |
CELESTIAL PROPERTIES LLC |
||
|
2/18/2000 |
|
Deeds |
$0 |
MARTIN ROBERT P |
MARTIN ROBERT P & LAURIE |
||
|
1/1/1978 |
|
Historical |
$0 |
|
MARTIN ROBERT P |
||
| Last Mailed Notice of Value (N.O.V.) Information/History | ||||||||
|---|---|---|---|---|---|---|---|---|
| Year | Date | Market Value | Taxable Market Value | Gross Assessed | Exemption | Net Assessed | ||
|
2026 |
02/06/2026 |
147,000 |
144,702 |
15,916 |
0 |
15,916 |
||
|
2025 |
01/31/2025 |
147,500 |
137,812 |
15,158 |
0 |
15,158 |
||
|
2024 |
01/22/2024 |
140,000 |
131,250 |
14,437 |
0 |
14,437 |
||
|
2023 |
01/23/2023 |
125,000 |
125,000 |
13,750 |
0 |
13,750 |
||
|
2022 |
02/22/2022 |
111,500 |
90,602 |
9,965 |
1,000 |
8,965 |
||
| Property Building Permit History | |||||||||||
|---|---|---|---|---|---|---|---|---|---|---|---|
| Issued | Permit # | Provided by | Bldg # | Description | Est Construction Cost | Status | |||||
| No Building Permit records returned. | |||||||||||
| Click button on building number to access detailed information: | ||||||
|---|---|---|---|---|---|---|
| Bldg # | Vacant/Improved Land | Bldg Description | Year Built | SqFt | # Stories | |
|
1 |
Improved |
Ranch 1 Story |
1967 |
974 |
1 Stories |
|