|
|
|
| Larry Stein Oklahoma County Assessor (405) 713-1200 - Public Access System |
|
|
|
|
|
|
| Real Property Display - Screen Produced 4/2/2026 10:48:52 AM | ||||
|---|---|---|---|---|
| Account: R148461365 | Type: Residential | Location: |
1320 SW 82ND ST |
|
| Building Name/Occupant: |
|
OKLAHOMA CITY |
||
| Owner Name 1: | CARPENTER TIMOTHY R |
Parcel PIN#: |
1727-14-846-1365 |
|
| Owner Name 2: | CARPENTER VIOLA M | 1/4 section #: |
1727 |
|
| Owner Name 3: | Parent Acct: |
|
||
| Billing Address: | 1320 SW 82ND ST | Tax District: |
|
|
| City, State, Zip | OKLAHOMA CITY, OK 73159-5914 | School System: |
Moore #2 |
|
|
Country: (If noted) |
Land Size: |
0.1983 Acres |
||
|
Land Value: 27,648 |
|
|||
|
Sect 32-T11N-R3W Qtr SW |
ANTON ESTATES
Block
002
Lot
000
|
|||
| Full Legal Description: ANTON ESTATES 002 000 LOT 5 & W3.6FT OF LOT 6 |
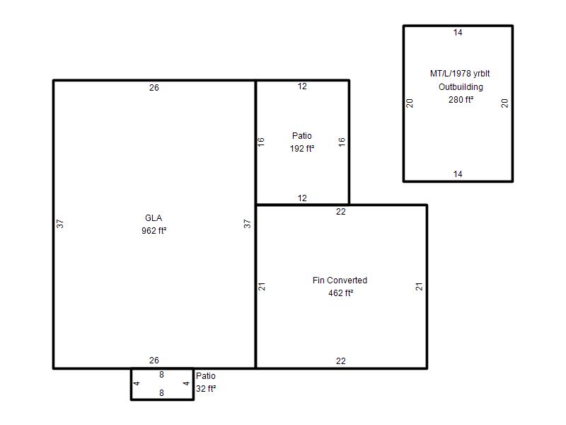
| Photo & Sketch (if available) | Comp Sales (ordered by relevancy) |
|
||||||||||||||||||
|
||||||||||||||||||||
| Value History (*The County Treasurer 405-713-1300 posts & collects actual tax amounts. Contact information HERE) | |||||||||||||
|---|---|---|---|---|---|---|---|---|---|---|---|---|---|
| Year | Market Value | Taxable Mkt Value | Gross Assessed | Exemption | Net Assessed | Millage | Est. Tax | Tax Savings | |||||
|
2026 |
138,000 |
69,978 |
7,697 |
2,000 |
5,697 |
120.83 |
$688 |
$1,146 |
|||||
|
2025 |
143,500 |
69,978 |
7,697 |
2,000 |
5,697 |
120.83 |
$688 |
$1,219 |
|||||
|
2024 |
133,000 |
69,978 |
7,697 |
2,000 |
5,697 |
119.82 |
$683 |
$1,070 |
|||||
|
2023 |
114,500 |
69,978 |
7,697 |
2,000 |
5,697 |
119.00 |
$678 |
$821 |
|||||
|
2022 |
103,500 |
69,978 |
7,697 |
2,000 |
5,697 |
121.59 |
$693 |
$692 |
|||||
| Property Account Status/Adjustments/Exemptions | ||
|---|---|---|
| Account # | Exemption Description | Amount |
|
R148461365 |
Senior Additional Homestead |
1,000 |
|
R148461365 |
Freeze Senior Valuation |
0 |
|
R148461365 |
Homestead |
1,000 |
|
R148461365 |
3% Cap Homestead |
0 |
| Property Deed Transaction History (Recorded in the County Clerk's Office) | |||||||
|---|---|---|---|---|---|---|---|
| Date | Type | Book | Page | Price | Grantor | Grantee | |
|
6/3/2003 |
|
Deeds |
$0 |
CARPENTER TIMOTHY R |
CARPENTER TIMOTHY R |
||
|
12/23/1998 |
|
Historical |
$0 |
CARPENTER VIOLA M |
CARPENTER TIMOTHY R |
||
|
9/1/1983 |
|
Historical |
$0 |
|
CARPENTER VIOLA M |
||
| Last Mailed Notice of Value (N.O.V.) Information/History | ||||||||
|---|---|---|---|---|---|---|---|---|
| Year | Date | Market Value | Taxable Market Value | Gross Assessed | Exemption | Net Assessed | ||
|
2025 |
01/31/2025 |
143,500 |
69,978 |
7,697 |
2,000 |
5,697 |
||
|
2024 |
01/22/2024 |
133,000 |
69,978 |
7,697 |
2,000 |
5,697 |
||
|
2023 |
01/23/2023 |
114,500 |
69,978 |
7,697 |
2,000 |
5,697 |
||
|
2022 |
02/22/2022 |
103,500 |
69,978 |
7,697 |
2,000 |
5,697 |
||
|
2021 |
02/24/2021 |
82,000 |
69,978 |
7,697 |
2,000 |
5,697 |
||
| Property Building Permit History | |||||||||||
|---|---|---|---|---|---|---|---|---|---|---|---|
| Issued | Permit # | Provided by | Bldg # | Description | Est Construction Cost | Status | |||||
| No Building Permit records returned. | |||||||||||
| Click button on building number to access detailed information: | ||||||
|---|---|---|---|---|---|---|
| Bldg # | Vacant/Improved Land | Bldg Description | Year Built | SqFt | # Stories | |
|
1 |
Improved |
Ranch 1 Story |
1964 |
962 |
1 Stories |
|