|
|
|
| Larry Stein Oklahoma County Assessor (405) 713-1200 - Public Access System |
|
|
|
|
|
|
| Real Property Display - Screen Produced 4/2/2026 10:45:35 AM | ||||
|---|---|---|---|---|
| Account: R148461605 | Type: Residential | Location: |
1324 SW 81ST PL |
|
| Building Name/Occupant: |
|
OKLAHOMA CITY |
||
| Owner Name 1: | TRINITY LEGACY LLC |
Parcel PIN#: |
1727-14-846-1605 |
|
| Owner Name 2: | 1/4 section #: |
1727 |
||
| Owner Name 3: | Parent Acct: |
|
||
| Billing Address: | 4613 SE 25TH ST | Tax District: |
|
|
| City, State, Zip | DEL CITY, OK 73115-4115 | School System: |
Moore #2 |
|
|
Country: (If noted) |
Land Size: |
0.1653 Acres |
||
|
Land Value: 23,040 |
|
|||
|
Sect 32-T11N-R3W Qtr SW |
ANTON ESTATES
Block
003
Lot
008
|
|||
| Full Legal Description: ANTON ESTATES 003 008 |
| Photo & Sketch (if available) | Comp Sales (ordered by relevancy) |
|
||||||||||||||||||
|
||||||||||||||||||||
| Value History (*The County Treasurer 405-713-1300 posts & collects actual tax amounts. Contact information HERE) | |||||||||||||
|---|---|---|---|---|---|---|---|---|---|---|---|---|---|
| Year | Market Value | Taxable Mkt Value | Gross Assessed | Exemption | Net Assessed | Millage | Est. Tax | Tax Savings | |||||
|
2026 |
129,000 |
96,485 |
10,613 |
0 |
10,613 |
120.83 |
$1,282 |
$432 |
|||||
|
2025 |
132,500 |
91,891 |
10,107 |
0 |
10,107 |
120.83 |
$1,221 |
$540 |
|||||
|
2024 |
123,000 |
87,516 |
9,626 |
0 |
9,626 |
119.82 |
$1,153 |
$468 |
|||||
|
2023 |
107,000 |
83,349 |
9,167 |
0 |
9,167 |
119.00 |
$1,091 |
$310 |
|||||
|
2022 |
95,500 |
79,380 |
8,731 |
0 |
8,731 |
121.59 |
$1,062 |
$216 |
|||||
| Property Account Status/Adjustments/Exemptions | ||
|---|---|---|
| Account # | Exemption Description | Amount |
|
R148461605 |
5% Capped Account |
0 |
| Property Deed Transaction History (Recorded in the County Clerk's Office) | ||||||||||
|---|---|---|---|---|---|---|---|---|---|---|
| Date | Type | Book | Page | Price | Grantor | Grantee | ||||
|
5/31/2024 |
|
Hmstd Off & |
$0 |
DT HOME SOLUTIONS LLC |
TRINITY LEGACY LLC |
|||||
|
1/1/2020 |
|
Hmstd Off & |
$0 |
NGUYEN DAVID |
DT HOME SOLUTIONS LLC |
|||||
|
7/13/2018 |
|
Sheriff's/Ma |
$62,000 |
BURCH JEREMY |
NGUYEN DAVID |
|||||
|
3/21/2008 |
|
Deeds |
$84,500 |
PRINCESS RESIDENTIAL LLC |
BURCH JEREMY |
|||||
|
1/31/2005 |
|
Other |
$0 |
SMELSER ROGER E & LOUISE A |
PRINCESS RESIDENTIAL LLC |
|||||
| Last Mailed Notice of Value (N.O.V.) Information/History | ||||||||
|---|---|---|---|---|---|---|---|---|
| Year | Date | Market Value | Taxable Market Value | Gross Assessed | Exemption | Net Assessed | ||
|
2026 |
02/06/2026 |
129,000 |
96,485 |
10,613 |
0 |
10,613 |
||
|
2025 |
01/31/2025 |
132,500 |
91,891 |
10,107 |
0 |
10,107 |
||
|
2024 |
01/22/2024 |
123,000 |
87,516 |
9,626 |
0 |
9,626 |
||
|
2023 |
01/23/2023 |
107,000 |
83,349 |
9,167 |
0 |
9,167 |
||
|
2022 |
02/22/2022 |
95,500 |
79,380 |
8,731 |
0 |
8,731 |
||
| Property Building Permit History | |||||||||||
|---|---|---|---|---|---|---|---|---|---|---|---|
| Issued | Permit # | Provided by | Bldg # | Description | Est Construction Cost | Status | |||||
| No Building Permit records returned. | |||||||||||
| Click button on building number to access detailed information: | ||||||
|---|---|---|---|---|---|---|
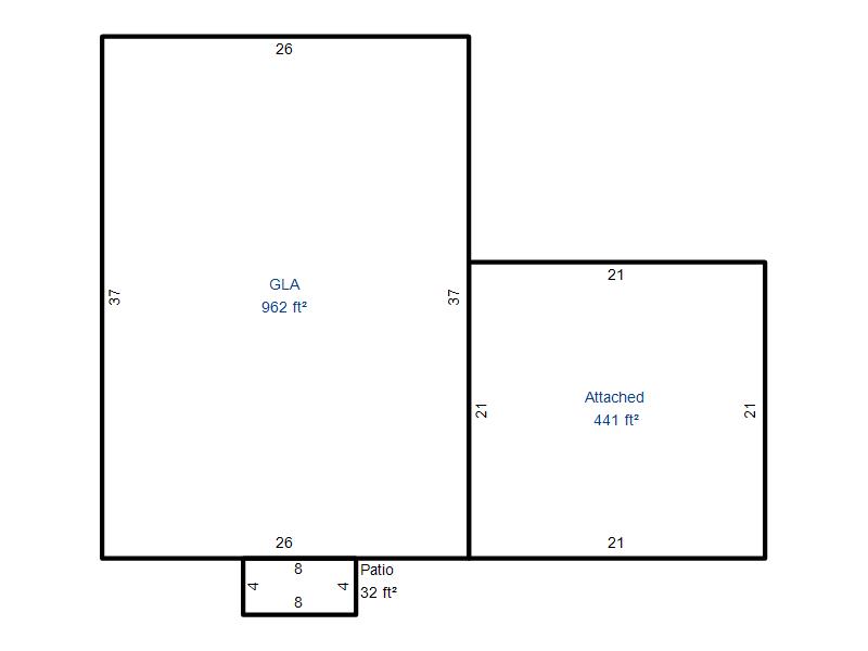
| Bldg # | Vacant/Improved Land | Bldg Description | Year Built | SqFt | # Stories | |
|
1 |
Improved |
Ranch 1 Story |
1966 |
962 |
1 Stories |
|