|
|
|
| Larry Stein Oklahoma County Assessor (405) 713-1200 - Public Access System |
|
|
|
|
|
|
| Real Property Display - Screen Produced 3/17/2026 7:17:41 AM | ||||
|---|---|---|---|---|
| Account: R109661320 | Type: Residential | Location: |
1408 SW 81ST ST |
|
| Building Name/Occupant: |
|
OKLAHOMA CITY |
||
| Owner Name 1: | DARNELL RICKY DON |
Parcel PIN#: |
1728-10-966-1320 |
|
| Owner Name 2: | 1/4 section #: |
1728 |
||
| Owner Name 3: | Parent Acct: |
|
||
| Billing Address: | 1408 SW 81ST ST | Tax District: |
|
|
| City, State, Zip | OKLAHOMA CITY, OK 73159-5308 | School System: |
Oklahoma City #89 |
|
|
Country: (If noted) |
Land Size: |
0.2029 Acres |
||
|
Land Value: 28,288 |
|
|||
|
Sect 32-T11N-R3W Qtr NW |
SOUTHERN HILLS SEC 6
Block
015
Lot
001
|
|||
| Full Legal Description: SOUTHERN HILLS SEC 6 015 001 |
| Photo & Sketch (if available) | Comp Sales (ordered by relevancy) |
|
||||||||||||||||||
|
||||||||||||||||||||
| Value History (*The County Treasurer 405-713-1300 posts & collects actual tax amounts. Contact information HERE) | |||||||||||||
|---|---|---|---|---|---|---|---|---|---|---|---|---|---|
| Year | Market Value | Taxable Mkt Value | Gross Assessed | Exemption | Net Assessed | Millage | Est. Tax | Tax Savings | |||||
|
2025 |
180,500 |
126,939 |
13,962 |
1,000 |
12,962 |
119.02 |
$1,543 |
$820 |
|||||
|
2024 |
177,500 |
123,242 |
13,555 |
1,000 |
12,555 |
119.70 |
$1,503 |
$834 |
|||||
|
2023 |
158,000 |
119,653 |
13,161 |
1,000 |
12,161 |
118.33 |
$1,439 |
$617 |
|||||
|
2022 |
144,500 |
116,168 |
12,778 |
1,000 |
11,778 |
112.69 |
$1,327 |
$464 |
|||||
|
2021 |
123,000 |
112,785 |
12,406 |
1,000 |
11,406 |
112.29 |
$1,281 |
$238 |
|||||
| Property Account Status/Adjustments/Exemptions | ||
|---|---|---|
| Account # | Exemption Description | Amount |
|
R109661320 |
3% Cap Homestead |
0 |
|
R109661320 |
Homestead |
1,000 |
| Property Deed Transaction History (Recorded in the County Clerk's Office) | ||||||||||
|---|---|---|---|---|---|---|---|---|---|---|
| Date | Type | Book | Page | Price | Grantor | Grantee | ||||
|
8/20/1999 |
|
Deeds |
$66,000 |
WINKLE WILLIAM B & ANDREA L |
DARNELL RICKY DON |
|||||
|
5/21/1999 |
|
Deeds |
$63,000 |
HAMILTON HAROLD FAMILY TRUST |
WINKLE WILLIAM B & ANDREA L |
|||||
|
4/29/1999 |
|
Hmstd Off & |
$0 |
CHAFFIN BETTY |
HAMILTON HAROLD FAMILY TRUST |
|||||
|
12/4/1998 |
|
Historical |
$0 |
CHAFFIN V O & BETTY |
CHAFFIN BETTY |
|||||
|
5/16/1996 |
|
Historical |
$69,000 |
YOUNG W T & DELCINE |
CHAFFIN V O & BETTY |
|||||
| Last Mailed Notice of Value (N.O.V.) Information/History | ||||||||
|---|---|---|---|---|---|---|---|---|
| Year | Date | Market Value | Taxable Market Value | Gross Assessed | Exemption | Net Assessed | ||
|
2026 |
02/06/2026 |
180,500 |
130,747 |
14,381 |
1,000 |
13,381 |
||
|
2025 |
01/31/2025 |
180,500 |
126,939 |
13,962 |
1,000 |
12,962 |
||
|
2024 |
01/22/2024 |
177,500 |
123,242 |
13,555 |
1,000 |
12,555 |
||
|
2023 |
01/23/2023 |
158,000 |
119,653 |
13,161 |
1,000 |
12,161 |
||
|
2022 |
02/22/2022 |
144,500 |
116,168 |
12,778 |
1,000 |
11,778 |
||
| Property Building Permit History | |||||||||||
|---|---|---|---|---|---|---|---|---|---|---|---|
| Issued | Permit # | Provided by | Bldg # | Description | Est Construction Cost | Status | |||||
| No Building Permit records returned. | |||||||||||
| Click button on building number to access detailed information: | ||||||
|---|---|---|---|---|---|---|
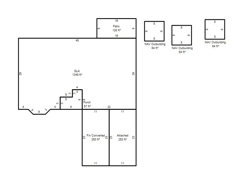
| Bldg # | Vacant/Improved Land | Bldg Description | Year Built | SqFt | # Stories | |
|
1 |
Improved |
Ranch 1 Story |
1968 |
1,349 |
1 Stories |
|