|
|
|
| Larry Stein Oklahoma County Assessor (405) 713-1200 - Public Access System |
|
|
|
|
|
|
| Real Property Display - Screen Produced 4/1/2026 5:36:25 AM | ||||
|---|---|---|---|---|
| Account: R109781825 | Type: Residential | Location: |
1510 SW 77TH PL |
|
| Building Name/Occupant: |
|
OKLAHOMA CITY |
||
| Owner Name 1: | CLH4 LLC |
Parcel PIN#: |
1728-10-978-1825 |
|
| Owner Name 2: | 1/4 section #: |
1728 |
||
| Owner Name 3: | Parent Acct: |
|
||
| Billing Address: | PO BOX 893191 | Tax District: |
|
|
| City, State, Zip | OKLAHOMA CITY, OK 73189-3191 | School System: |
Oklahoma City #89 |
|
|
Country: (If noted) |
Land Size: |
0.1598 Acres |
||
|
Land Value: 24,360 |
|
|||
|
Sect 32-T11N-R3W Qtr NW |
SOUTHERN HILLS
Block
003
Lot
013
|
|||
| Full Legal Description: SOUTHERN HILLS 003 013 |
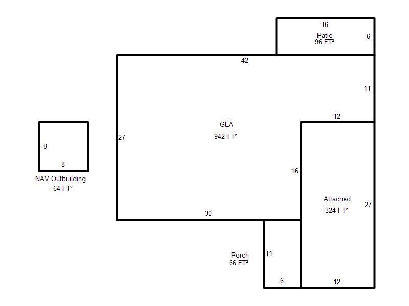
| Photo & Sketch (if available) | Comp Sales (ordered by relevancy) |
|
||||||||||||||||||
|
||||||||||||||||||||
| Value History (*The County Treasurer 405-713-1300 posts & collects actual tax amounts. Contact information HERE) | |||||||||||||
|---|---|---|---|---|---|---|---|---|---|---|---|---|---|
| Year | Market Value | Taxable Mkt Value | Gross Assessed | Exemption | Net Assessed | Millage | Est. Tax | Tax Savings | |||||
|
2026 |
129,500 |
100,506 |
11,055 |
0 |
11,055 |
119.02 |
$1,316 |
$380 |
|||||
|
2025 |
131,500 |
95,720 |
10,528 |
0 |
10,528 |
119.02 |
$1,253 |
$468 |
|||||
|
2024 |
123,500 |
91,162 |
10,027 |
0 |
10,027 |
119.70 |
$1,200 |
$426 |
|||||
|
2023 |
108,500 |
86,821 |
9,549 |
0 |
9,549 |
118.33 |
$1,130 |
$282 |
|||||
|
2022 |
99,000 |
82,687 |
9,095 |
0 |
9,095 |
112.69 |
$1,025 |
$202 |
|||||
| Property Account Status/Adjustments/Exemptions | ||
|---|---|---|
| Account # | Exemption Description | Amount |
|
R109781825 |
5% Capped Account |
0 |
| Property Deed Transaction History (Recorded in the County Clerk's Office) | ||||||||||
|---|---|---|---|---|---|---|---|---|---|---|
| Date | Type | Book | Page | Price | Grantor | Grantee | ||||
|
6/17/2024 |
|
Hmstd Off & |
$0 |
CLH7 LLC |
CLH4 LLC |
|||||
|
1/8/2020 |
|
Hmstd Off & |
$0 |
CEDARLAND HOMES LLC |
CLH7 LLC |
|||||
|
7/10/2014 |
|
Other |
$0 |
SECRETARY OF HOUSING & URBAN DEV |
WAZZAN HOMES L LC |
|||||
|
7/10/2014 |
|
Deeds |
$44,500 |
WAZZAN HOMES L LC |
CEDARLAND HOMES LLC |
|||||
|
12/16/2013 |
|
Other |
$0 |
SMITH KEVIN |
SECRETARY OF HOUSING & URBAN DEV |
|||||
| Last Mailed Notice of Value (N.O.V.) Information/History | ||||||||
|---|---|---|---|---|---|---|---|---|
| Year | Date | Market Value | Taxable Market Value | Gross Assessed | Exemption | Net Assessed | ||
|
2026 |
02/06/2026 |
129,500 |
100,506 |
11,055 |
0 |
11,055 |
||
|
2025 |
01/31/2025 |
131,500 |
95,720 |
10,528 |
0 |
10,528 |
||
|
2024 |
01/22/2024 |
123,500 |
91,162 |
10,027 |
0 |
10,027 |
||
|
2023 |
01/23/2023 |
108,500 |
86,821 |
9,549 |
0 |
9,549 |
||
|
2022 |
02/22/2022 |
99,000 |
82,687 |
9,095 |
0 |
9,095 |
||
| Property Building Permit History | |||||||||||
|---|---|---|---|---|---|---|---|---|---|---|---|
| Issued | Permit # | Provided by | Bldg # | Description | Est Construction Cost | Status | |||||
| No Building Permit records returned. | |||||||||||
| Click button on building number to access detailed information: | ||||||
|---|---|---|---|---|---|---|
| Bldg # | Vacant/Improved Land | Bldg Description | Year Built | SqFt | # Stories | |
|
1 |
Improved |
Ranch 1 Story |
1962 |
942 |
1 Stories |
|