|
|
|
| Larry Stein Oklahoma County Assessor (405) 713-1200 - Public Access System |
|
|
|
|
|
|
| Real Property Display - Screen Produced 3/21/2026 10:12:37 AM | ||||
|---|---|---|---|---|
| Account: R109811195 | Type: Residential | Location: |
1617 SW 79TH TER |
|
| Building Name/Occupant: |
|
OKLAHOMA CITY |
||
| Owner Name 1: | BOND GREGORY WAYNE |
Parcel PIN#: |
1728-10-981-1195 |
|
| Owner Name 2: | 1/4 section #: |
1728 |
||
| Owner Name 3: | Parent Acct: |
|
||
| Billing Address: | 1913 N FLAMINGO AVE | Tax District: |
|
|
| City, State, Zip | BETHANY, OK 73008-5430 | School System: |
Oklahoma City #89 |
|
|
Country: (If noted) |
Land Size: |
0.1598 Acres |
||
|
Land Value: 24,360 |
|
|||
|
Sect 32-T11N-R3W Qtr NW |
SOUTHERN HILLS 2ND
Block
004
Lot
045
|
|||
| Full Legal Description: SOUTHERN HILLS 2ND 004 045 |
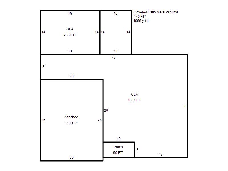
| Photo & Sketch (if available) | Comp Sales (ordered by relevancy) |
|
||||||||||||||||||
|
||||||||||||||||||||
| Value History (*The County Treasurer 405-713-1300 posts & collects actual tax amounts. Contact information HERE) | |||||||||||||
|---|---|---|---|---|---|---|---|---|---|---|---|---|---|
| Year | Market Value | Taxable Mkt Value | Gross Assessed | Exemption | Net Assessed | Millage | Est. Tax | Tax Savings | |||||
|
2025 |
160,500 |
119,330 |
13,126 |
0 |
13,126 |
119.02 |
$1,562 |
$539 |
|||||
|
2024 |
151,500 |
113,648 |
12,501 |
0 |
12,501 |
119.70 |
$1,496 |
$498 |
|||||
|
2023 |
135,000 |
108,237 |
11,905 |
0 |
11,905 |
118.33 |
$1,409 |
$348 |
|||||
|
2022 |
123,000 |
103,083 |
11,338 |
0 |
11,338 |
112.69 |
$1,278 |
$247 |
|||||
|
2021 |
105,500 |
98,175 |
10,799 |
0 |
10,799 |
112.29 |
$1,213 |
$90 |
|||||
| Property Account Status/Adjustments/Exemptions | ||
|---|---|---|
| Account # | Exemption Description | Amount |
|
R109811195 |
5% Capped Account |
0 |
| Property Deed Transaction History (Recorded in the County Clerk's Office) | |||||||
|---|---|---|---|---|---|---|---|
| Date | Type | Book | Page | Price | Grantor | Grantee | |
|
12/1/1980 |
|
Historical |
$0 |
|
BOND GREGORY WAYNE |
||
| Last Mailed Notice of Value (N.O.V.) Information/History | ||||||||
|---|---|---|---|---|---|---|---|---|
| Year | Date | Market Value | Taxable Market Value | Gross Assessed | Exemption | Net Assessed | ||
|
2026 |
02/06/2026 |
159,000 |
125,296 |
13,782 |
0 |
13,782 |
||
|
2025 |
01/31/2025 |
160,500 |
119,330 |
13,126 |
0 |
13,126 |
||
|
2024 |
01/22/2024 |
151,500 |
113,648 |
12,501 |
0 |
12,501 |
||
|
2023 |
01/23/2023 |
135,000 |
108,237 |
11,905 |
0 |
11,905 |
||
|
2022 |
02/22/2022 |
123,000 |
103,083 |
11,338 |
0 |
11,338 |
||
| Property Building Permit History | |||||||||||
|---|---|---|---|---|---|---|---|---|---|---|---|
| Issued | Permit # | Provided by | Bldg # | Description | Est Construction Cost | Status | |||||
| No Building Permit records returned. | |||||||||||
| Click button on building number to access detailed information: | ||||||
|---|---|---|---|---|---|---|
| Bldg # | Vacant/Improved Land | Bldg Description | Year Built | SqFt | # Stories | |
|
1 |
Improved |
Ranch 1 Story |
1964 |
1,267 |
1 Stories |
|