|
|
|
| Larry Stein Oklahoma County Assessor (405) 713-1200 - Public Access System |
|
|
|
|
|
|
| Real Property Display - Screen Produced 3/21/2026 10:12:37 AM | ||||
|---|---|---|---|---|
| Account: R109811405 | Type: Residential | Location: |
1600 SW 79TH TER |
|
| Building Name/Occupant: |
|
OKLAHOMA CITY |
||
| Owner Name 1: | HALSTEAD KENNETH R |
Parcel PIN#: |
1728-10-981-1405 |
|
| Owner Name 2: | COLEMAN SUE | 1/4 section #: |
1728 |
|
| Owner Name 3: | Parent Acct: |
|
||
| Billing Address: | 1600 SW 79TH TER | Tax District: |
|
|
| City, State, Zip | OKLAHOMA CITY, OK 73159-5343 | School System: |
Oklahoma City #89 |
|
|
Country: (If noted) |
Land Size: |
0.1598 Acres |
||
|
Land Value: 24,360 |
|
|||
|
Sect 32-T11N-R3W Qtr NW |
SOUTHERN HILLS 2ND
Block
005
Lot
013
|
|||
| Full Legal Description: SOUTHERN HILLS 2ND 005 013 |
| Photo & Sketch (if available) | Comp Sales (ordered by relevancy) |
|
||||||||||||||||||
|
||||||||||||||||||||
| Value History (*The County Treasurer 405-713-1300 posts & collects actual tax amounts. Contact information HERE) | |||||||||||||
|---|---|---|---|---|---|---|---|---|---|---|---|---|---|
| Year | Market Value | Taxable Mkt Value | Gross Assessed | Exemption | Net Assessed | Millage | Est. Tax | Tax Savings | |||||
|
2025 |
143,500 |
96,798 |
10,647 |
1,000 |
9,647 |
119.02 |
$1,148 |
$730 |
|||||
|
2024 |
135,000 |
93,979 |
10,337 |
1,000 |
9,337 |
119.70 |
$1,118 |
$660 |
|||||
|
2023 |
120,500 |
91,242 |
10,036 |
1,000 |
9,036 |
118.33 |
$1,069 |
$499 |
|||||
|
2022 |
109,500 |
88,585 |
9,743 |
1,000 |
8,743 |
112.69 |
$985 |
$372 |
|||||
|
2021 |
93,500 |
86,005 |
9,460 |
1,000 |
8,460 |
112.29 |
$950 |
$205 |
|||||
| Property Account Status/Adjustments/Exemptions | ||
|---|---|---|
| Account # | Exemption Description | Amount |
|
R109811405 |
Freeze Senior Valuation |
0 |
|
R109811405 |
Homestead |
1,000 |
|
R109811405 |
3% Cap Homestead |
0 |
| Property Deed Transaction History (Recorded in the County Clerk's Office) | ||||||||||
|---|---|---|---|---|---|---|---|---|---|---|
| Date | Type | Book | Page | Price | Grantor | Grantee | ||||
|
12/28/2016 |
|
Hmstd Off & |
$0 |
SCHUFLETOWSKI HENRY L TRUST |
HALSTEAD KENNETH R |
|||||
|
9/25/2015 |
|
Deeds |
$87,500 |
HALSTEAD CAROL FAYE TRS HALSTEAD CAROL FAYE TRUST |
SCHUFLETOWSKI HENRY L TRUST |
|||||
|
2/13/2006 |
|
Deeds |
$0 |
HALSTEAD CAROL C |
HALSTEAD CAROL FAYE TRS HALSTEAD CAROL FAYE TRUST |
|||||
|
11/2/2005 |
|
Deeds |
$0 |
HALSTEAD KENNETH R & CAROL F |
HALSTEAD CAROL C |
|||||
|
8/15/1988 |
|
Historical |
$0 |
HALSTEAD CAROL F |
HALSTEAD KENNETH R & CAROL F |
|||||
| Last Mailed Notice of Value (N.O.V.) Information/History | ||||||||
|---|---|---|---|---|---|---|---|---|
| Year | Date | Market Value | Taxable Market Value | Gross Assessed | Exemption | Net Assessed | ||
|
2025 |
01/31/2025 |
143,500 |
96,798 |
10,647 |
1,000 |
9,647 |
||
|
2024 |
01/22/2024 |
135,000 |
93,979 |
10,337 |
1,000 |
9,337 |
||
|
2023 |
01/23/2023 |
120,500 |
91,242 |
10,036 |
1,000 |
9,036 |
||
|
2022 |
02/22/2022 |
109,500 |
88,585 |
9,743 |
1,000 |
8,743 |
||
|
2021 |
02/24/2021 |
93,500 |
86,005 |
9,460 |
1,000 |
8,460 |
||
| Property Building Permit History | |||||||||||
|---|---|---|---|---|---|---|---|---|---|---|---|
| Issued | Permit # | Provided by | Bldg # | Description | Est Construction Cost | Status | |||||
| No Building Permit records returned. | |||||||||||
| Click button on building number to access detailed information: | ||||||
|---|---|---|---|---|---|---|
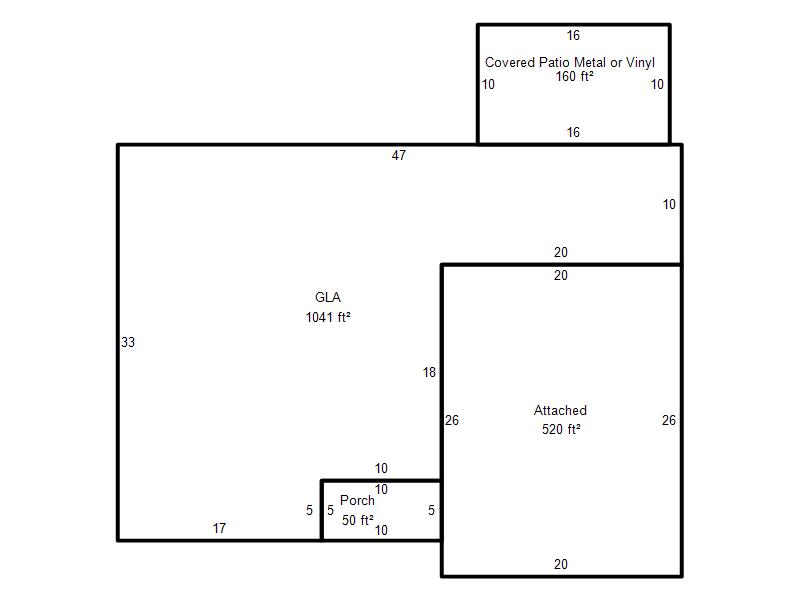
| Bldg # | Vacant/Improved Land | Bldg Description | Year Built | SqFt | # Stories | |
|
1 |
Improved |
Ranch 1 Story |
1963 |
1,041 |
1 Stories |
|