|
|
|
| Larry Stein Oklahoma County Assessor (405) 713-1200 - Public Access System |
|
|
|
|
|
|
| Real Property Display - Screen Produced 3/21/2026 10:12:36 AM | ||||
|---|---|---|---|---|
| Account: R109811435 | Type: Residential | Location: |
1528 SW 79TH TER |
|
| Building Name/Occupant: |
|
OKLAHOMA CITY |
||
| Owner Name 1: | WELGE WILLIAM D |
Parcel PIN#: |
1728-10-981-1435 |
|
| Owner Name 2: | 1/4 section #: |
1728 |
||
| Owner Name 3: | Parent Acct: |
|
||
| Billing Address: | 9826 BUSH BUCK WAY | Tax District: |
|
|
| City, State, Zip | SAN ANTONIO, TX 78251 | School System: |
Oklahoma City #89 |
|
|
Country: (If noted) |
UNITED STATES |
Land Size: |
0.1598 Acres |
|
|
Land Value: 24,360 |
|
|||
|
Sect 32-T11N-R3W Qtr NW |
SOUTHERN HILLS 2ND
Block
005
Lot
016
|
|||
| Full Legal Description: SOUTHERN HILLS 2ND 005 016 |
| Photo & Sketch (if available) | Comp Sales (ordered by relevancy) |
|
||||||||||||||||||
|
||||||||||||||||||||
| Value History (*The County Treasurer 405-713-1300 posts & collects actual tax amounts. Contact information HERE) | |||||||||||||
|---|---|---|---|---|---|---|---|---|---|---|---|---|---|
| Year | Market Value | Taxable Mkt Value | Gross Assessed | Exemption | Net Assessed | Millage | Est. Tax | Tax Savings | |||||
|
2025 |
144,000 |
98,677 |
10,853 |
0 |
10,853 |
119.02 |
$1,292 |
$593 |
|||||
|
2024 |
135,500 |
93,979 |
10,337 |
1,000 |
9,337 |
119.70 |
$1,118 |
$666 |
|||||
|
2023 |
120,000 |
91,242 |
10,036 |
1,000 |
9,036 |
118.33 |
$1,069 |
$493 |
|||||
|
2022 |
109,500 |
88,585 |
9,743 |
1,000 |
8,743 |
112.69 |
$985 |
$372 |
|||||
|
2021 |
94,000 |
86,005 |
9,460 |
1,000 |
8,460 |
112.29 |
$950 |
$211 |
|||||
| Property Account Status/Adjustments/Exemptions | ||
|---|---|---|
| Account # | Exemption Description | Amount |
|
R109811435 |
5% Capped Account |
0 |
| Property Deed Transaction History (Recorded in the County Clerk's Office) | |||||||
|---|---|---|---|---|---|---|---|
| Date | Type | Book | Page | Price | Grantor | Grantee | |
|
8/24/1988 |
|
Historical |
$0 |
WELGE FRED C & IVA L |
WELGE WILLIAM D |
||
|
11/11/1911 |
|
Historical |
$0 |
|
WELGE FRED C & IVA L |
||
| Last Mailed Notice of Value (N.O.V.) Information/History | ||||||||
|---|---|---|---|---|---|---|---|---|
| Year | Date | Market Value | Taxable Market Value | Gross Assessed | Exemption | Net Assessed | ||
|
2026 |
02/06/2026 |
142,000 |
103,610 |
11,396 |
0 |
11,396 |
||
|
2025 |
01/31/2025 |
144,000 |
98,677 |
10,853 |
0 |
10,853 |
||
|
2024 |
01/22/2024 |
135,500 |
93,979 |
10,337 |
1,000 |
9,337 |
||
|
2023 |
01/23/2023 |
120,000 |
91,242 |
10,036 |
1,000 |
9,036 |
||
|
2022 |
02/22/2022 |
109,500 |
88,585 |
9,743 |
1,000 |
8,743 |
||
| Property Building Permit History | |||||||||||
|---|---|---|---|---|---|---|---|---|---|---|---|
| Issued | Permit # | Provided by | Bldg # | Description | Est Construction Cost | Status | |||||
| No Building Permit records returned. | |||||||||||
| Click button on building number to access detailed information: | ||||||
|---|---|---|---|---|---|---|
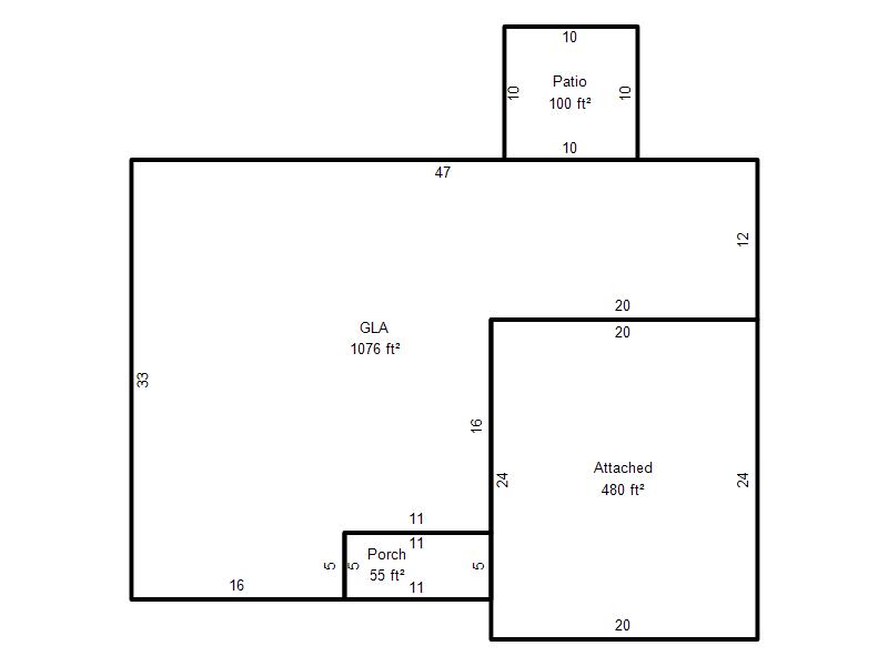
| Bldg # | Vacant/Improved Land | Bldg Description | Year Built | SqFt | # Stories | |
|
1 |
Improved |
Ranch 1 Story |
1963 |
1,076 |
1 Stories |
|