|
|
|
| Larry Stein Oklahoma County Assessor (405) 713-1200 - Public Access System |
|
|
|
|
|
|
| Real Property Display - Screen Produced 3/21/2026 10:12:37 AM | ||||
|---|---|---|---|---|
| Account: R109811655 | Type: Residential | Location: |
1317 SW 77TH PL |
|
| Building Name/Occupant: |
|
OKLAHOMA CITY |
||
| Owner Name 1: | VENABLE BILLY D & CAROLYN SUE |
Parcel PIN#: |
1728-10-981-1655 |
|
| Owner Name 2: | FAMILY LIVING TRUST | 1/4 section #: |
1728 |
|
| Owner Name 3: | Parent Acct: |
|
||
| Billing Address: | 902 N 8TH ST | Tax District: |
|
|
| City, State, Zip | VAN BUREN, AR 72956-2710 | School System: |
Oklahoma City #89 |
|
|
Country: (If noted) |
Land Size: |
0.1680 Acres |
||
|
Land Value: 25,620 |
|
|||
|
Sect 32-T11N-R3W Qtr NW |
SOUTHERN HILLS 2ND
Block
011
Lot
044
|
|||
| Full Legal Description: SOUTHERN HILLS 2ND 011 044 |
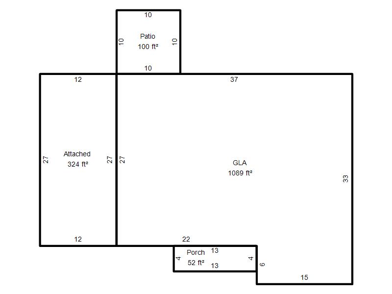
| Photo & Sketch (if available) | Comp Sales (ordered by relevancy) |
|
||||||||||||||||||
|
||||||||||||||||||||
| Value History (*The County Treasurer 405-713-1300 posts & collects actual tax amounts. Contact information HERE) | |||||||||||||
|---|---|---|---|---|---|---|---|---|---|---|---|---|---|
| Year | Market Value | Taxable Mkt Value | Gross Assessed | Exemption | Net Assessed | Millage | Est. Tax | Tax Savings | |||||
|
2025 |
144,500 |
107,207 |
11,792 |
0 |
11,792 |
119.02 |
$1,404 |
$488 |
|||||
|
2024 |
136,000 |
102,102 |
11,230 |
0 |
11,230 |
119.70 |
$1,344 |
$446 |
|||||
|
2023 |
120,500 |
97,240 |
10,696 |
0 |
10,696 |
118.33 |
$1,266 |
$303 |
|||||
|
2022 |
109,500 |
92,610 |
10,187 |
0 |
10,187 |
112.69 |
$1,148 |
$209 |
|||||
|
2021 |
95,000 |
88,200 |
9,702 |
0 |
9,702 |
112.29 |
$1,089 |
$84 |
|||||
| Property Account Status/Adjustments/Exemptions | ||
|---|---|---|
| Account # | Exemption Description | Amount |
|
R109811655 |
5% Capped Account |
0 |
| Property Deed Transaction History (Recorded in the County Clerk's Office) | |||||||
|---|---|---|---|---|---|---|---|
| Date | Type | Book | Page | Price | Grantor | Grantee | |
|
1/6/1999 |
|
Historical |
$0 |
VENABLE BILLY D & CAROLYN SUE |
VENABLE BILLY D & CAROLYN SUE |
||
|
8/1/1991 |
|
Historical |
$29,250 |
SECRETARY OF VETERANS AFFAIRS |
VENABLE BILLY D & CAROLYN SUE |
||
|
4/29/1991 |
|
Historical |
$0 |
TENNANT GERALD W & SHARRON K |
SECRETARY OF VETERANS AFFAIRS |
||
|
5/1/1981 |
|
Historical |
$0 |
|
TENNANT GERALD W & SHARRON K |
||
| Last Mailed Notice of Value (N.O.V.) Information/History | ||||||||
|---|---|---|---|---|---|---|---|---|
| Year | Date | Market Value | Taxable Market Value | Gross Assessed | Exemption | Net Assessed | ||
|
2026 |
02/06/2026 |
142,000 |
112,567 |
12,381 |
0 |
12,381 |
||
|
2025 |
01/31/2025 |
144,500 |
107,207 |
11,792 |
0 |
11,792 |
||
|
2024 |
01/22/2024 |
136,000 |
102,102 |
11,230 |
0 |
11,230 |
||
|
2023 |
01/23/2023 |
120,500 |
97,240 |
10,696 |
0 |
10,696 |
||
|
2022 |
02/22/2022 |
109,500 |
92,610 |
10,187 |
0 |
10,187 |
||
| Property Building Permit History | |||||||||||
|---|---|---|---|---|---|---|---|---|---|---|---|
| Issued | Permit # | Provided by | Bldg # | Description | Est Construction Cost | Status | |||||
| No Building Permit records returned. | |||||||||||
| Click button on building number to access detailed information: | ||||||
|---|---|---|---|---|---|---|
| Bldg # | Vacant/Improved Land | Bldg Description | Year Built | SqFt | # Stories | |
|
1 |
Improved |
Ranch 1 Story |
1963 |
1,089 |
1 Stories |
|